物件画像を詳しく見る

エレベーター、配膳用昇降機あり
物件概要
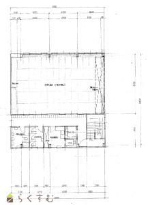
手前が2階建、奥が4階建て 渡り廊下で繋がっています
-
物件コード
00037-200171
-
物件名
四谷2丁目 割烹・料亭向き
-
交通
駅:越後線 東柏崎駅から徒歩9分、バス:四谷から徒歩2分
-
所在地
新潟県柏崎市四谷2丁目2-11
物件へのルート表示
-
物件種別
投資物件・その他
-
物件区分
その他
-
構造
鉄骨
-
階建
地上4階建
-
建ぺい率/容積率
60%/200%
-
建物面積
1,233.95㎡
/373.26坪
-
土地面積
654.54㎡
/197.99坪
-
築年月
1967年1月(築58年)
-
入居時期
相談
-
用途地域
第1種住居地域
-
地目
宅地 (現状:宅地)
-
都市計画
非線引き都市計画区域
-
形状
-
-
道路
北側県道
-
私道
-
-
その他の制限
-
物件詳細情報
-
所在階/階数
-
-
号室
-
-
販売価格
33,000,000円
-
表面利回り
(満室想定時)
-
-
満室想定年収
-
(想定月収:
-
)
-
現行利回り
-
-
現行年間年収
-
-
住戸数
-
-
方位
-
-
間取り
-
-
専有面積
-
-
バルコニー面積
-
-
その他面積
-
-
駐車場
4~5台可能
-
管理費
-
-
修繕積立金
-
-
現況
指定なし
-
仲介手数料
1,155,000円
-
おすすめ条件
-
-
学校区
比角小学校(232m)・第二中学校(247m)
-
設備
エレベーター、駐車場(近隣含む)、公営水道、下水道、事業向け
-
取引態様
一般
-
情報登録日
2025/07/12
-
次回更新予定日
2026/01/01
-
取引条件有効期限
2025/12/31
備考
築年月は目安です。
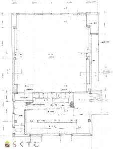
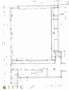
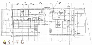
新館2階建、旧館4階建て鉄骨造
取扱い会社
株式会社 ai-will
-
TEL
0257-35-5370
-
所在地
新潟県柏崎市田中10-31
-
交通
国道8号線よりすぐ
-
営業時間
平日9:00~18:00土日祝10:00~16:0/定休日:当社規定 (お盆・年末年始・GW)
-
免許番号
新潟県知事(4)4821号
-
所属団体名
新潟県宅地建物取引協会 柏崎支部
-
取引態様
一般