物件画像を詳しく見る

柏崎駅南口まで徒歩約6分
物件概要
当社売主につき仲介手数料不要!
-
物件コード
00037-200114
-
物件名
柳橋町77坪売土地
-
交通
駅:信越線 柏崎駅から徒歩12分、バス:枇杷島から徒歩2分
-
所在地
新潟県柏崎市柳橋町732-1
物件へのルート表示
-
物件種別
売土地・分譲地
-
物件区分
売土地
-
構造
-
-
階建
-
-
建ぺい率/容積率
60%/200%
-
建物面積
-
-
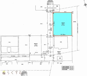
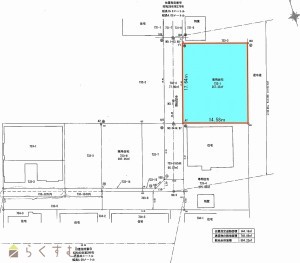
土地面積
257.25㎡
/77.81坪
-
築年月
-
-
入居時期
相談
-
用途地域
第1種住居地域
-
地目
宅地 (現状:宅地)
-
都市計画
非線引き都市計画区域
-
形状
間口 17.64m × 奥行 14.58m
-
道路
西側:幅員4m位置指定道路第276号
-
私道
-
-
その他の制限
-
物件詳細情報
-
所在階/階数
-
-
号室
-
-
販売価格
7,781,000円
-
方位
-
-
間取り
-
-
専有面積
-
-
バルコニー面積
-
-
その他面積
-
-
駐車場
-
-
管理費
-
-
修繕積立金
-
-
現況
更地
-
仲介手数料
なし
-
おすすめ条件
-
-
学校区
枇杷島小学校(217m)・鏡が沖中学校(1,164m)
-
設備
更地、学校近く、最寄り駅近く、建築条件なし、所有権、側溝、都市ガス(前面道路)、上水道(前面道路)、下水道(前面道路)、都市ガス(宅地内)、上水道(宅地内)、下水道(宅地内)、住宅向け
-
取引態様
売主
-
情報登録日
2023/05/24
-
次回更新予定日
2025/12/31
-
取引条件有効期限
2023/06/30
備考
柏崎駅南口まで徒歩約6分☆当社売主につき仲介手数料不要!☆2023.5.24 9,337,200円より値下げしました☆
取扱い会社
株式会社 ai-will
-
TEL
0257-35-5370
-
所在地
新潟県柏崎市田中10-31
-
交通
国道8号線よりすぐ
-
営業時間
平日9:00~18:00土日祝10:00~16:0/定休日:当社規定 (お盆・年末年始・GW)
-
免許番号
新潟県知事(4)4821号
-
所属団体名
新潟県宅地建物取引協会 柏崎支部
-
取引態様
売主