※画像はイメージとなり実物と異なる場合があります。
前面道路は消雪パイプがありますので、冬も安心です。
物件画像を詳しく見る

近隣商業施設充実◆対面キッチン◆4帖のWIC♪◆前面道路に消雪パイプあり!
物件概要
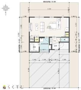
<令和7年12月完成予定>◆商業施設やスーパーが徒歩圏内に充実していて生活に便利な立地です。 ◆月岡小学校・こども園も徒歩圏内。お子様も安心の環境です。 ◆前面道路は消雪パイプが設置されていますので、冬も安心です。 ◆LDKは15.4帖と広々とした間取り♪対面キッチン仕様です。 ◆洗濯機と物干し場を一緒にし、重い洗濯物を運ぶことなく干せ、家事効率UP! ◆4帖のウォークインクローゼットは、家族みんなの衣類や荷物をまとめて収納できる大容量サイズです。
-
物件コード
00007-200745
-
物件名
三条市曲渕3丁目 建売住宅②
-
交通
駅:信越線 三条駅から徒歩17分、バス:曲渕二丁目から徒歩5分
-
所在地
新潟県三条市曲渕3丁目137番16
物件へのルート表示
-
物件種別
新築一戸建て
-
構造
木造
-
階建
地上2階建
-
建ぺい率/容積率
50%/100%
-
建物面積
86.75㎡
/26.24坪
-
土地面積
165.72㎡
/50.13坪
-
築年月
2025年12月完成予定
-
入居時期
相談
-
用途地域
第1種低層住居専用地域
-
地目
宅地
-
都市計画
非線引き都市計画区域
-
形状
-
-
道路
北側:市道 6.0m
-
私道
-
-
その他の制限
-
物件詳細情報
-
所在階/階数
-
-
号室
-
-
販売価格
23,900,000円
-
方位
西
-
間取り
3LDK (洋室:7、6、6)、LDK15.4、建築確認番号:NK第25長00080号
-
専有面積
-
-
バルコニー面積
-
-
その他面積
-
-
駐車場
-
-
管理費
-
-
修繕積立金
-
-
現況
指定なし
-
仲介手数料
なし
-
利用制限
-
-
学校区
月岡小学校(351m)・本成寺中学校(1,698m)
-
設備
整形地、前面道路6m以上、日当り良好、スーパー近く、BELS/省エネ基準適合認定建物、フラット35S適合、LDK15畳以上、全室フローリング、駐車場2台以上、南向き、TVインターホン、複層ガラス、ディンプルキー、システムキッチン、IHクッキングヒーター、3口コンロ、追いだき機能付き、バス1坪以上、温水洗浄便座、シャワー付き洗面台、エアコン、24時間換気システム、省エネ給湯、高気密高断熱住宅、都市ガス、上水道、浄化槽、電気、ウォークインクローゼット、全居室収納あり、シューズBOX、照明器具付き
-
取引態様
売主
-
情報登録日
2025/12/06
-
次回更新予定日
2025/12/22
-
取引条件有効期限
2026/02/01
備考
・22条指定区域
・高さ制限:10m
・外壁後退:1.5m
・消雪パイプ管理費:20,000円/年
※物件掲載内容と現況に相違がある場合は現況を優先と致します。
詳細はお気軽にお問い合わせください。
担当:小林
携帯:090-1438-1795
取扱い会社
有限会社 一代工務店