前面道路は消雪パイプが設置されていて冬も安心です。
物件画像を詳しく見る

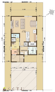
スーパー・コンビニ・ドラッグストア・駅など近く、生活しやすい立地です。 LDKは3面採光で明るさを確保しました。水回りをまとめることで、家事動線を短くし家事の負担を軽減。
物件概要
「子育てグリーン住宅支援事業」対象物件。家族団欒を眺めながら料理ができる、開放感のある対面キッチンを採用。 主寝室にはウォークインクロークを設けましたので、洋服の多い方にもしっかり対応できます。
-
物件コード
00007-200720
-
物件名
燕市吉田春日町 建売住宅 1号棟
-
交通
駅:弥彦線 吉田駅から徒歩10分、バス:吉田庁舎前から徒歩6分
-
所在地
新潟県燕市吉田春日町612番78
物件へのルート表示
-
物件種別
新築一戸建て
-
構造
木造
-
階建
地上2階建
-
建ぺい率/容積率
60%/200%
-
建物面積
89.22㎡
/26.98坪
-
土地面積
151.93㎡
/45.95坪
-
築年月
2025年9月(築3ヶ月)
-
入居時期
随時入居(引き渡し)可
-
用途地域
第1種住居地域
-
地目
宅地
-
都市計画
非線引き都市計画区域
-
形状
-
-
道路
北西側:市道6.8m
-
私道
-
-
その他の制限
-
物件詳細情報
-
所在階/階数
-
-
号室
-
-
販売価格
23,800,000円
-
方位
北西
-
間取り
3LDK (洋室:8、6、6)、LDK16.5
-
専有面積
-
-
バルコニー面積
-
-
その他面積
-
-
駐車場
-
-
管理費
-
-
修繕積立金
-
-
現況
指定なし
-
仲介手数料
なし
-
利用制限
-
-
学校区
吉田南小学校(862m)・吉田中学校(2,068m)
-
設備
前面道路6m以上、日当り良好、閑静な住宅街、スーパー近く、BELS/省エネ基準適合認定建物、フラット35S適合、LDK15畳以上、全室フローリング、駐車場2台以上、南向き、庭あり、TVインターホン、複層ガラス、ディンプルキー、システムキッチン、IHクッキングヒーター、3口コンロ、追いだき機能付き、バス1坪以上、温水洗浄便座、シャワー付き洗面台、エアコン、24時間換気システム、省エネ給湯、高気密高断熱住宅、都市ガス、上水道、下水道、電気、ウォークインクローゼット、全居室収納あり、床下収納、シューズBOX、照明器具付き、即引き渡し可能
-
取引態様
売主
-
情報登録日
2025/12/06
-
次回更新予定日
2025/12/22
-
取引条件有効期限
2026/02/01
備考
※物件掲載内容と現況に相違がある場合は現況を優先と致します。
詳細はお気軽にお問い合わせください。
担当:竹之内
携帯:090-7815-6720
取扱い会社
有限会社 一代工務店