前面道路は消雪パイプが設置されていて冬も安心です。
物件画像を詳しく見る

並列駐車3台可!近隣商業施設充実! 上組小学校、宮内中学校区の新築3LDK♪ 前面道路には消雪パイプ完備で冬も安心!
物件概要
「子育てグリーン住宅支援事業」対象物件。広々とした洗面脱衣室は物干しスペースとしても利用可。2階洋室にウォークインクローゼット完備で収納スペースも充実。 家族同士のコミュニケーションが取りやすい対面キッチン、リビング階段。
-
物件コード
00007-200718
-
物件名
長岡市曲新町1丁目 建売住宅
-
交通
駅:信越線 宮内駅から徒歩12分、バス:曲新町1丁目から徒歩4分
-
所在地
新潟県長岡市曲新町1丁目1574番4、1574番5
物件へのルート表示
-
物件種別
新築一戸建て
-
構造
木造
-
階建
地上2階建
-
建ぺい率/容積率
50%/100%
-
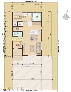
建物面積
86.75㎡
/26.24坪
-
土地面積
165㎡
/49.91坪
-
築年月
2025年9月(築3ヶ月)
-
入居時期
随時入居(引き渡し)可
-
用途地域
第1種低層住居専用地域
-
地目
宅地
-
都市計画
市街化区域
-
形状
-
-
道路
-
-
私道
南側:位置指定道路 約4m
-
その他の制限
-
物件詳細情報
-
所在階/階数
-
-
号室
-
-
販売価格
21,800,000円
-
方位
南
-
間取り
3LDK (洋室:8、6、6)、LDK14
-
専有面積
-
-
バルコニー面積
-
-
その他面積
-
-
駐車場
-
-
管理費
-
-
修繕積立金
-
-
現況
指定なし
-
仲介手数料
なし
-
利用制限
-
-
学校区
上組小学校(888m)・宮内中学校(851m)
-
設備
整形地、日当り良好、閑静な住宅街、BELS/省エネ基準適合認定建物、フラット35S適合、全室フローリング、駐車場2台以上、駐車場3台以上、南向き、庭あり、TVインターホン、複層ガラス、ディンプルキー、システムキッチン、IHクッキングヒーター、3口コンロ、追いだき機能付き、バス1坪以上、温水洗浄便座、シャワー付き洗面台、エアコン、24時間換気システム、省エネ給湯、高気密高断熱住宅、都市ガス、上水道、下水道、電気、ウォークインクローゼット、全居室収納あり、床下収納、シューズBOX、照明器具付き、即引き渡し可能
-
取引態様
売主
-
情報登録日
2025/12/06
-
次回更新予定日
2025/12/22
-
取引条件有効期限
2026/02/01
備考
・絶対高さの制限:10m
・外壁後退:なし
・第一種高度地区
・22条指定区域
・位置指定道路あり:20㎡(6.05坪)
※物件掲載内容と現況に相違がある場合は現況を優先と致します。
詳細はお気軽にお問い合わせください。
担当:沼田
携帯:070-8449-3715
取扱い会社
有限会社 一代工務店