物件画像を詳しく見る

小中学校や保育園が近くにあり、商業施設が徒歩圏内に多数あります! 東三条駅まで徒歩7分♪通勤通学も便利! キッチン→洗面脱衣室→物干しスペースが隣に続き、スムーズな家事動線で時短を実現♪
物件概要
「子育てグリーン住宅支援事業」対象物件。料理をしながらでもご家族やお客様との対話を楽しめる対面キッチン! 2階洋室にウォークインクローゼット完備で収納スペースも充実。 1階・2階にトイレ完備!
-
物件コード
00007-200706
-
物件名
三条市興野3丁目 建売住宅
-
交通
駅:信越線 東三条駅から徒歩13分、バス:興野3丁目から徒歩1分
-
所在地
新潟県三条市興野3丁目158番2
物件へのルート表示
-
物件種別
新築一戸建て
-
構造
木造
-
階建
地上2階建
-
建ぺい率/容積率
70%/200%
-
建物面積
92.53㎡
/27.99坪
-
土地面積
202.48㎡
/61.25坪
-
築年月
2025年7月(築5ヶ月)
-
入居時期
随時入居(引き渡し)可
-
用途地域
第1種住居地域
-
地目
宅地
-
都市計画
非線引き都市計画区域
-
形状
-
-
道路
東側:市道4.8m~4.9m
-
私道
-
-
その他の制限
-
物件詳細情報
-
所在階/階数
-
-
号室
-
-
販売価格
22,900,000円
-
方位
東
-
間取り
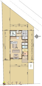
3LDK (洋室:8、6.7、6.7)、LDK15.1、物干しスペースあり
-
専有面積
-
-
バルコニー面積
-
-
その他面積
-
-
駐車場
-
-
管理費
-
-
修繕積立金
-
-
現況
指定なし
-
仲介手数料
なし
-
利用制限
-
-
学校区
一ノ木戸小学校(778m)・第二中学校(778m)
-
設備
角地、日当り良好、スーパー近く、BELS/省エネ基準適合認定建物、フラット35S適合、LDK15畳以上、全室フローリング、駐車場2台以上、南向き、TVインターホン、複層ガラス、ディンプルキー、システムキッチン、IHクッキングヒーター、3口コンロ、追いだき機能付き、バス1坪以上、温水洗浄便座、シャワー付き洗面台、エアコン、24時間換気システム、省エネ給湯、高気密高断熱住宅、都市ガス、上水道、浄化槽、電気、ウォークインクローゼット、全居室収納あり、床下収納、シューズBOX、照明器具付き、即引き渡し可能
-
取引態様
売主
-
情報登録日
2025/12/06
-
次回更新予定日
2025/12/22
-
取引条件有効期限
2026/02/01
備考
※物件掲載内容と現況に相違がある場合は現況を優先と致します。
詳細はお気軽にお問い合わせください。
担当:須加
携帯:090-2644-9734
取扱い会社
有限会社 一代工務店