| 人気の西津グリーンヒルズ希望が丘エリア | |||
| 物件コード | 00385-200001 | ||
|---|---|---|---|
| 物件名 | 長岡市西津 グリーンヒルズ希望が丘 | ||
| 交通 | 駅:信越線 宮内駅から徒歩51分、バス:大山2丁目から徒歩4分 | ||
| 物件所在地 | 長岡市西津町2305 | ||
| 物件種別 | 売土地・分譲地 | ||
| 物件区分 | 分譲地 | ||
| 構造 | - | 階建 | - |
| 建ぺい率 | 60% | ||
| 容積率 | 200% | ||
| 建物面積 | - | ||
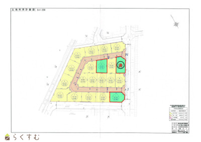
| 土地面積 | 176.14㎡ /53.28坪 ~ 181.54㎡ /54.91坪 | ||
| 販売区画数 | 2区画 | ||
| 総区画数 | 3区画 | ||
| 開発面積 | - | ||
| 築年月 | - | ||
| 入居時期 | 随時入居(引き渡し)可 | ||
| 用途地域 | 第1種中高層住居専用地域 | 地目 | 宅地 |
| 都市計画 | 市街化区域 | 学校区 | 希望が丘小学校(165m)・西中学校(346m) |
| 形状 | - | 道路 | 長岡市道 幅員6m |
| 私道 | - | ||
| 造成完成時期 | 完成済み | ||
| 許認可番号 | 長岡市指令開都第89号 | ||
| 開発スケジュール | - | ||
| 所在階/階数 | - | 号室 | - |
|---|---|---|---|
| 販売価格 | 11,521,000円 ~ 12,894,000円 | 方位 | - |
| 最多価格帯 | - | ||
| 間取り | - | ||
| 専有面積 | - | バルコニー面積 | - |
| その他面積 | - | 駐車場 | - |
| 管理費 | - | 修繕積立金 | - |
| 現況 | 更地 | ||
| 仲介手数料 | なし | ||
| 利用制限 | - | ||
| 設備 | 角地、前道6m以上、更地、学校近く、閑静な住宅街、所有権、即引き渡し可、側溝、都市ガス(前面道路)、上水道(前面道路)、下水道(前面道路)、電気、都市ガス(宅地内)、上水道(宅地内)、下水道(宅地内)、前面道路融雪設備あり、住宅向け | ||
| 取引態様 | 売主 | ||
| 備考 | 建築条件付き、アサヒアレックスの高気密高断熱、長期優良住宅を人気のエリアで! スーパーや学校・病院など徒歩圏内にあり、また長岡左岸バイパスまで車で3分とアクセスも良好! 子育て世帯からシニア世帯まで幅広い世帯の方におススメ!! 残り2区画! |
||
| 情報登録日 | 2025/06/26 | 次回更新予定日 | 2026/03/30 |
| 取引条件有効期限 | 2026/06/24 | ||
|
|
|
|
|
|
| TEL: | 025-285-1112 |
|---|---|
| 所在地: | 新潟県新潟市中央区美咲町1-9-48 |
| 交通: | |
| 営業時間: | 9:00~18:00/定休日:毎週火曜日・水曜日 |
| 免許番号: | 新潟県知事(1)第5534号 |
| 所属団体名: | 公社 新潟県宅地建物取引協会 新潟支部 |
| 取引態様: | 売主 |