| 物件コード | 00362-200002 | ||
|---|---|---|---|
| 物件名 | 西区小針4丁目 新築建売住宅 | ||
| 交通 | 駅:越後線 小針駅から徒歩10分、バス:小針五丁目から徒歩2分 | ||
| 物件所在地 | 新潟県新潟市西区小針4丁目623-3 | ||
| 物件種別 | 新築一戸建て | ||
| 構造 | 木造 | 階建 | 地上2階建 |
| 建ぺい率/容積率 | 60%/200% | ||
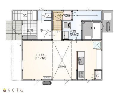
| 建物面積 | 1階 47.2㎡/ 2階 45.54㎡/ 計 92.74㎡ /28.05坪 | ||
| 土地面積 | 211.67㎡ /64.03坪 | ||
| 築年月 | 2024年8月(築1年) | ||
| 入居時期 | 相談 | ||
| 用途地域 | 第2種中高層住居専用地域 | 地目 | 宅地 |
| 都市計画 | 市街化区域 | 学校区 | 小針小学校(485m)・小針中学校(870m) |
| 形状 | 間口 6.8m × 奥行 21m | 道路 | 北西(道路幅:16m/接道幅:9.8m) |
| 私道 | - | ||
| 所在階/階数 | - | 号室 | - |
|---|---|---|---|
| 販売価格 | 29,800,000円 | 方位 | - |
| 間取り | 3LDK | ||
| 専有面積 | - | バルコニー面積 | - |
| その他面積 | - | 駐車場 | - |
| 管理費 | - | 修繕積立金 | - |
| 現況 | 指定なし | ||
| 仲介手数料 | なし | ||
| 利用制限 | - | ||
| 設備 | 整形地、前面道路6m以上、日当り良好、スーパー近く、建物確認・完了検査済証あり、LDK15畳以上、全室フローリング、駐車場2台以上、TVインターホン、複層ガラス、システムキッチン、カウンターキッチン、IHクッキングヒーター、追いだき機能付き、バス1坪以上、温水洗浄便座、シャワー付き洗面台、エアコン、24時間換気システム、オール電化、省エネ給湯、高気密高断熱住宅、上水道、下水道、電気、ウォークインクローゼット、全居室収納あり、シューズインクローゼット、シューズBOX、照明器具付き | ||
| 取引態様 | 一般 | ||
| 備考 | *お家の見どころポイント* ・シューズクロークやキッチンパントリー、階段下収納などたっぷりと収納が可能☆ ・2階トイレ付き♪1階まで下りなくても良いのはラクですよね! ・土間コンが車2台分!乗り入れも広いので駐車しやすい◎ *周辺エリア* ・小針小学校まで 徒歩6分 ・小針中学校まで 徒歩12分 ・小針駅まで 徒歩10分 物件のことや住宅ローンのことなど、どんな不安や疑問にもお答えします! お気軽にお問い合わせください(*^^*) |
||
| 情報登録日 | 2025/11/11 | 次回更新予定日 | 2026/01/02 |
| 取引条件有効期限 | 2025/08/31 | ||
|
|
|
|
| TEL: | 0258-94-4638 |
|---|---|
| 所在地: | 新潟県長岡市古正寺3-116 |
| 交通: | |
| 営業時間: | 10:00~17:00/定休日:水・木 年末年始 夏季冬季GW |
| 免許番号: | 新潟県知事(2)第5485号 |
| 所属団体名: | 公社 新潟県宅地建物取引協会 長岡支部 |
| 取引態様: | 一般 |