| 居室、リビングにベランダがあり、最上階の解放感と眺望の良さが抜群 | |||
| 物件コード | 00322-200026 | ||
|---|---|---|---|
| 物件名 | 【蔵王】売マンション1DK(ダイアパレス長岡蔵王) | ||
| 交通 | 駅:信越線 北長岡駅から徒歩15分、バス:蔵王から徒歩4分 | ||
| 物件所在地 | 新潟県長岡市蔵王1丁目1-31ダイアパレス長岡蔵王808 | ||
| 物件種別 | 中古マンション | ||
| 構造 | 鉄筋コン | 階建 | 地上8階建 |
| 建ぺい率/容積率 | 60%/200% | ||
| 建物面積 | 計 5,181.89㎡ /1,567.52坪 | ||
| 土地面積 | 2,444.2㎡ /739.37坪 | ||
| 築年月 | 1993年1月(築32年) | ||
| 入居時期 | 相談 | ||
| 用途地域 | 準工業地域 | 地目 | 宅地 |
| 都市計画 | 市街化区域 | 学校区 | 新町小学校(253m)・北中学校(967m) |
| 形状 | - | 道路 | - |
| 私道 | - | ||
| 所在階/階数 | 8階/8階 | 号室 | 808号室 |
|---|---|---|---|
| 販売価格 | 6,800,000円 | 方位 | - |
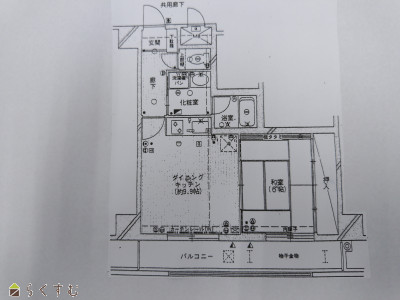
| 間取り | 1DK (和室:6畳) (洋室:8) | ||
| 専有面積 | 39.45㎡ /11.93坪 | バルコニー面積 | 8.85㎡ /2.67坪 |
| その他面積 | - | 駐車場 | - |
| 管理費 | 5240円/月 | 修繕積立金 | 1660円/月 |
| 現況 | 賃貸中 | ||
| 仲介手数料 | 330,000円 | ||
| 利用制限 | - | ||
| 設備 | 最上階、2階以上、閑静な住宅街、スーパー近く、最寄駅近く、外観タイル張り、洗濯機置き場、エレベーター、和室あり、平面駐車場、駐輪場、管理人常駐(日中)、エントランスオートロック、システムキッチン、浴室1坪以上、エアコン、公営水道、下水道 | ||
| 取引態様 | 一般 | ||
| 備考 | 小中学校やコミュニティセンター、スーパーマーケットにもほど近いアーバンライフを楽しめる立地環境。現在、賃貸中のオーナーチェンジに伴う譲渡用物件です。家賃57,000円での表面利回りは10.58%。 | ||
| 情報登録日 | 2025/08/08 | 次回更新予定日 | 2025/12/19 |
| 取引条件有効期限 | 2025/10/30 | ||
|
|
|
|
|
|
| TEL: | 0258-94-4545 |
|---|---|
| 所在地: | 新潟県長岡市福住2-1-24高野ビル1階 |
| 交通: | 長岡駅 |
| 営業時間: | 9:00~18:00/定休日:土・日・祝 |
| 免許番号: | 新潟県知事(1)第5634号 |
| 所属団体名: | 公社 新潟県宅地建物取引協会 長岡支部 |
| 取引態様: | 一般 |