| 洗面脱衣室には収納スペースを設け、日用品も整理しやすくなっています。 全居室にウォークインクローゼットを備え、収納力を確保しています。 衣類や荷物をまとめて収納でき、居住空間をすっきり保てます。 生活動線と収納計画のバランスに配慮した設計です。 駐車スペースは2台分を確保しています。 | |||
| 物件コード | 00320-200261 | ||
|---|---|---|---|
| 物件名 | 東栄3丁目 新築戸建 | ||
| 交通 | 駅:信越線 北長岡駅から徒歩15分、バス:新町1丁目から徒歩6分 | ||
| 物件所在地 | 新潟県長岡市東栄3丁目-1-22 | ||
| 物件種別 | 新築一戸建て | ||
| 構造 | 木造 | 階建 | 地上2階建 |
| 建ぺい率/容積率 | 60%/200% | ||
| 建物面積 | 計 86.11㎡ /26.04坪 | ||
| 土地面積 | 132.23㎡ /39.99坪 | ||
| 築年月 | 2026年2月(築2ヶ月) | ||
| 入居時期 | 随時入居(引き渡し)可 | ||
| 用途地域 | 第1種住居地域 | 地目 | 宅地 |
| 都市計画 | 市街化区域 | 学校区 | 川崎東小学校(576m)・東北中学校(838m) |
| 形状 | 間口 7.3m × 奥行 17.7m | 道路 | 北東3.8m幅 |
| 私道 | - | ||
| 所在階/階数 | - | 号室 | - |
|---|---|---|---|
| 販売価格 | 25,800,000円 | 方位 | 北東 |
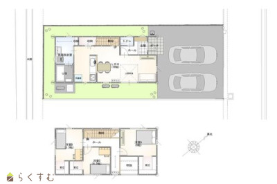
| 間取り |
3LDK (洋室:6.0、5.3、4.5) LDK16 |
||
| 専有面積 | - | バルコニー面積 | - |
| その他面積 | - | 駐車場 | - |
| 管理費 | - | 修繕積立金 | - |
| 現況 | 空家 | ||
| 仲介手数料 | 917,400円 | ||
| 利用制限 | - | ||
| 設備 | 整形地、日当り良好、閑静な住宅街、BELS/省エネ基準適合認定建物、LDK15畳以上、全室フローリング、駐車場2台以上、TVインターホン、複層ガラス、システムキッチン、カウンターキッチン、IHクッキングヒーター、バス1坪以上、温水洗浄便座、シャワー付き洗面台、エアコン、24時間換気システム、オール電化、省エネ給湯、高気密高断熱住宅、上水道、下水道、電気、ウォークインクローゼット、全居室収納あり、床下収納、シューズBOX、即引き渡し可能 | ||
| 取引態様 | 仲介 | ||
| 備考 | ◯ダブル断熱(充填+外張り)の高断熱仕様 ◯エアコン2台付き ◯24時間熱交換換気扇付き ◯エコキュートを利用したオール電化仕様 ◯住宅設備全てLIXIL製 ◯吹抜で開放感のあるリビング ◯天井断熱には断熱性・防音性に優れた「セルロースファイバー」を使用 ◯キッチンはタッチレス水栓仕様 |
||
| 情報登録日 | 2026/04/28 | 次回更新予定日 | 2026/05/13 |
| 取引条件有効期限 | 2027/04/22 | ||
|
|
|
|
| TEL: | 0258-35-2220 |
|---|---|
| 所在地: | 新潟県長岡市新町1-1-2 |
| 交通: | 長岡駅 |
| 営業時間: | 午前10時00分~午後7時 /定休日:オンラインサービス:午前9時30分~午後9時 |
| 免許番号: | 新潟県知事(1)第5629号 |
| 所属団体名: | 公社 新潟県宅地建物取引協会 新潟支部 |
| 取引態様: | 仲介 |