| ■ アクロスプラザ長岡まで車で約5分 ■ システムキッチン・浄水器付き ■ 浴室乾燥機・シャンプードレッサーなど水回り設備充実 ■ トイレ2か所で朝の時間帯にも使いやすい配置 ■ 各室収納に加え床下収納を確保 ■ モニター付きインターホン・防犯カメラなど防犯面にも配慮 | |||
| 物件コード | 00320-200248 | ||
|---|---|---|---|
| 物件名 | 中沢2丁目 新築戸建① | ||
| 交通 | 駅:信越線 長岡駅から徒歩33分、バス:中沢から徒歩4分 | ||
| 物件所在地 | 新潟県長岡市中沢2丁目1146番5 | ||
| 物件種別 | 新築一戸建て | ||
| 構造 | 木造 | 階建 | 地上2階建 |
| 建ぺい率/容積率 | 60%/160% | ||
| 建物面積 | 計 95.58㎡ /28.91坪 | ||
| 土地面積 | 150.63㎡ /45.56坪 | ||
| 築年月 | 2026年8月完成予定 | ||
| 入居時期 | 2026年8月予定 | ||
| 用途地域 | 第1種中高層住居専用地域 | 地目 | 宅地 |
| 都市計画 | 市街化区域 | 学校区 | 栖吉小学校(660m)・栖吉中学校(815m) |
| 形状 | 間口 8.89m × 奥行 16.91m | 道路 | 南側前面道路幅員4m |
| 私道 | 218㎡ 持分有1/14 | ||
| 所在階/階数 | - | 号室 | - |
|---|---|---|---|
| 販売価格 | 25,800,000円 | 方位 | 南 |
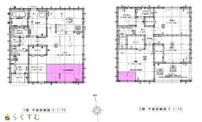
| 間取り |
3LDK (洋室:7.2、6、5) LDK16.5 ルーフバルコニー約6.48㎡有り |
||
| 専有面積 | - | バルコニー面積 | - |
| その他面積 | 畳コーナー:3帖 テレワークルーム:2帖 | 駐車場 | - |
| 管理費 | - | 修繕積立金 | - |
| 現況 | 指定なし | ||
| 仲介手数料 | 917,400円 | ||
| 利用制限 | - | ||
| 設備 | 整形地、前面道路6m以上、日当り良好、閑静な住宅街、設計住宅性能評価付き、フラット35S適合、LDK15畳以上、駐車場3台以上、南向き、庭あり、TVインターホン、複層ガラス、ディンプルキー、システムキッチン、カウンターキッチン、浄水器、3口コンロ、浴室暖房乾燥機、バス1坪以上、温水洗浄便座、シャワー付き洗面台、24時間換気システム、省エネ給湯、ルーフバルコニー、都市ガス、上水道、下水道、全居室収納あり、床下収納 | ||
| 取引態様 | 仲介 | ||
| 備考 | - | ||
| 情報登録日 | 2026/04/20 | 次回更新予定日 | 2026/05/13 |
| 取引条件有効期限 | 2027/03/06 | ||
|
|
|
|
| TEL: | 0258-35-2220 |
|---|---|
| 所在地: | 新潟県長岡市新町1-1-2 |
| 交通: | 長岡駅 |
| 営業時間: | 午前10時00分~午後7時 /定休日:オンラインサービス:午前9時30分~午後9時 |
| 免許番号: | 新潟県知事(1)第5629号 |
| 所属団体名: | 公社 新潟県宅地建物取引協会 新潟支部 |
| 取引態様: | 仲介 |