| 300坪を超える敷地 | |||
| 物件コード | 00265-200198 | ||
|---|---|---|---|
| 物件名 | 姫川原中古 50万円 ※内覧は雪解け後! | ||
| 交通 | 駅:妙高はねうまライン 新井駅から徒歩31分、バス:姫川原小学校前から徒歩2分 | ||
| 物件所在地 | 新潟県妙高市姫川原799番地 | ||
| 物件種別 | 中古一戸建て | ||
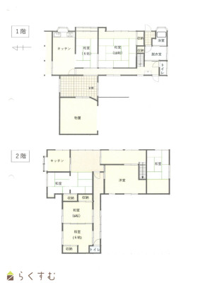
| 構造 | 木造 | 階建 | 地上2階建 |
| 建ぺい率/容積率 | 60%/200% | ||
| 建物面積 | 1階 125.54㎡/ 2階 122.55㎡/ 計 248.09㎡ /75.04坪 | ||
| 土地面積 | 1,059.47㎡ /320.48坪 | ||
| 築年月 | 1968年5月(築57年) | ||
| 入居時期 | 相談 | ||
| 用途地域 | 用途の指定のない地域 | 地目 | 宅地 (現状:宅地) |
| 都市計画 | 非線引き都市計画区域 | 学校区 | 新井小学校(2,143m)・新井中学校(2,204m) |
| 形状 | - | 道路 | - |
| 私道 | - | ||
| 所在階/階数 | - | 号室 | - |
|---|---|---|---|
| 販売価格 | 500,000円 | 方位 | 西 |
| 間取り | 7DK | ||
| 専有面積 | - | バルコニー面積 | - |
| その他面積 | - | 駐車場 | - |
| 管理費 | - | 修繕積立金 | - |
| 現況 | 空家 | ||
| 仲介手数料 | 330,000円 | ||
| 利用制限 | - | ||
| 設備 | 日当り良好、駐車3台以上可能 | ||
| 取引態様 | 専任 | ||
| 備考 | リフォームなしでは居住不可 | ||
| 情報登録日 | 2026/02/26 | 次回更新予定日 | 2026/03/13 |
| 取引条件有効期限 | 2026/05/31 | ||
|
|
|
|
| TEL: | 0255-72-0003 |
|---|---|
| 所在地: | 新潟県妙高市雪森645-1 |
| 交通: | 妙高はねうまライン北井駅 |
| 営業時間: | 8時~17時/定休日:土・日・祝日、その他夏季・年末年始 |
| 免許番号: | 新潟県知事(12)第2463号 |
| 所属団体名: | 公社 新潟県宅地建物取引協会 上越支部 |
| 取引態様: | 専任 |