| ◆毎日営業中!当日のご内覧大歓迎!いつでもご案内します!!◆急なご来店でも相談出来ます◆豊富な知識と経験を基に丁寧にアドバイスします!先ずはお電話、メール、LINEにてお問合せ下さい♪ | |||
| 物件コード | 00239-200636 | ||
|---|---|---|---|
| 物件名 | (新築住宅)長岡市美沢 第1 1号棟 | ||
| 交通 | 駅:上越新幹線 長岡駅から徒歩22分、バス:中沢入口から徒歩4分 | ||
| 物件所在地 | 新潟県長岡市美沢2丁目190-3付近 | ||
| 物件種別 | 新築一戸建て | ||
| 構造 | 木造 | 階建 | 地上2階建 |
| 建ぺい率/容積率 | 60%/200% | ||
| 建物面積 | 1階 51.84㎡/ 2階 43.74㎡/ 計 95.58㎡ /28.91坪 | ||
| 土地面積 | 148.74㎡ /44.99坪 | ||
| 築年月 | 2026年7月完成予定 | ||
| 入居時期 | 2026年7月中旬 | ||
| 用途地域 | 第1種住居地域 | 地目 | 宅地 |
| 都市計画 | 市街化区域 | 学校区 | 四郎丸小学校(1,000m)・南中学校(2,100m) |
| 形状 | - | 道路 | 東側4.0m私道(位置指定) |
| 私道 | 約71㎡ 持分1/2 | ||
| 所在階/階数 | - | 号室 | - |
|---|---|---|---|
| 販売価格 | 28,800,000円 | 方位 | 南 |
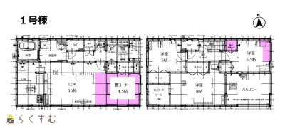
| 間取り |
3LDK (洋室:8.0、5.5、5.0) LDK20.5 2階に2帖のテレワークルーム有 |
||
| 専有面積 | - | バルコニー面積 | - |
| その他面積 | - | 駐車場 | - |
| 管理費 | - | 修繕積立金 | - |
| 現況 | 空家 | ||
| 仲介手数料 | 1,016,400円 | ||
| 利用制限 | - | ||
| 設備 | 日当り良好、閑静な住宅街、スーパー近く、耐震構造、LDK15畳以上、全室フローリング、駐車場2台以上、駐車場3台以上、南向き、TVインターホン、複層ガラス、ディンプルキー、システムキッチン、カウンターキッチン、浄水器、3口コンロ、ガスコンロ設置済み、追いだき機能付き、浴室暖房乾燥機、バス1坪以上、温水洗浄便座、シャワー付き洗面台、24時間換気システム、省エネ給湯、高気密高断熱住宅、都市ガス、上水道、下水道、電気、全居室収納あり、床下収納、シューズBOX | ||
| 取引態様 | 一般 | ||
| 備考 | 【教育】 四郎丸小学校 約1000m 徒歩約13分 南中学校 約2100m 徒歩約27分 【交通】 JR上越新幹線 長岡駅 徒歩約22分 越後交通 中沢入口 徒歩約4分 ■■売って終わりにしない、充実のアフターサービス体制■■ ◎アフターサービスの専門スタッフが、迅速・丁寧にご対応 ◎独自のメンテナンス制度で設備の故障や建物の傷を無償修理 ◎ご購入後のお困り事も、充実した体制で手厚くサポート ■■選べるプレゼント■■ ◎エアコンや照明などの新生活に必要な設備を無料でプレゼント |
||
| 情報登録日 | 2026/04/21 | 次回更新予定日 | 2026/05/18 |
| 取引条件有効期限 | 2026/12/31 | ||
|
|
|
|
| TEL: | 0258-89-8245 |
|---|---|
| 所在地: | 新潟県長岡市台町1-7-331階 |
| 交通: | 長岡駅 |
| 営業時間: | 9:00~18:00/定休日:なし |
| 免許番号: | 新潟県知事(3)第5151号 |
| 所属団体名: | 公社 新潟県宅地建物取引協会 新潟支部 |
| 取引態様: | 一般 |