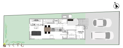
| 2箇所のWICやリビング収納、パントリーなど収納充実♪コンパクトながらも住空間を充分に確保できる間取りです。1階の洗面脱衣室で室内干しもできるので天候に左右されず安心です◎ | |||
| 物件コード | 00239-200615 | ||
|---|---|---|---|
| 物件名 | ( 新築住宅)長岡市草生津 | ||
| 交通 | 駅:上越新幹線 長岡駅から徒歩19分、バス:長生橋東詰から徒歩4分 | ||
| 物件所在地 | 新潟県長岡市草生津3丁目3-26付近 | ||
| 物件種別 | 新築一戸建て | ||
| 構造 | 木造 | 階建 | 地上2階建 |
| 建ぺい率/容積率 | 60%/200% | ||
| 建物面積 | 1階 44.71㎡/ 2階 45.95㎡/ 計 90.66㎡ /27.42坪 | ||
| 土地面積 | 152.86㎡ /46.24坪 | ||
| 築年月 | 2026年4月完成予定 | ||
| 入居時期 | 相談 | ||
| 用途地域 | 第1種住居地域 | 地目 | 宅地 |
| 都市計画 | 市街化区域 | 学校区 | 千手小学校(300m)・南中学校(850m) |
| 形状 | - | 道路 | 東側8.0m公道 |
| 私道 | - | ||
| 所在階/階数 | - | 号室 | - |
|---|---|---|---|
| 販売価格 | 26,900,000円 | 方位 | 南西 |
| 間取り |
3LDK (洋室:6.7、6.0、4.5) LDK15.3 |
||
| 専有面積 | - | バルコニー面積 | - |
| その他面積 | - | 駐車場 | - |
| 管理費 | - | 修繕積立金 | - |
| 現況 | 空家 | ||
| 仲介手数料 | 953,700円 | ||
| 利用制限 | - | ||
| 設備 | 整形地、前面道路6m以上、日当り良好、閑静な住宅街、LDK15畳以上、全室フローリング、駐車場2台以上、TVインターホン、複層ガラス、システムキッチン、カウンターキッチン、IHクッキングヒーター、3口コンロ、追いだき機能付き、バス1坪以上、温水洗浄便座、シャワー付き洗面台、エアコン、24時間換気システム、オール電化、省エネ給湯、高気密高断熱住宅、上水道、下水道、電気、ウォークインクローゼット、全居室収納あり、照明器具付き、バリアフリー | ||
| 取引態様 | 一般 | ||
| 備考 | 【教育】 千手小学校 約300m 徒歩約4分 南中学校 約850m 徒歩約11分 【交通】 JR上越新幹線 長岡駅 徒歩約19分 越後交通バス 長生橋東詰 徒歩約4分 【備考】 町内会費 12,000円 消雪組合費 6,000円 -物件情報- ■リビング収納・パントリー・ウォークインクローゼットなどの収納が充実 ■火を使わない安心安全なオール電化 ■全居室に収納スペースを完備 ■3帖の脱衣室・ランドリールームで家事動線スムーズ ■トイレ1,2階に完備 |
||
| 情報登録日 | 2025/11/21 | 次回更新予定日 | 2026/02/16 |
| 取引条件有効期限 | 2027/12/31 | ||
|
|
|
|
| TEL: | 0258-89-8245 |
|---|---|
| 所在地: | 新潟県長岡市台町1-7-331階 |
| 交通: | 長岡駅 |
| 営業時間: | 9:00~18:00/定休日:なし |
| 免許番号: | 新潟県知事(3)第5151号 |
| 所属団体名: | 公社 新潟県宅地建物取引協会 新潟支部 |
| 取引態様: | 一般 |