| ~物件PR~ ・使い方いろいろなフリースペースをご用意♪ ・たっぷり収納可能な小屋裏収納あり ・前面道路は消雪パイプ有り!冬場も安心♪ | |||
| 物件コード | 00239-200330 | ||
|---|---|---|---|
| 物件名 | (新築住宅)長岡市陽光台 | ||
| 交通 | 駅:信越線 来迎寺駅から徒歩98分、バス:陽光台4丁目から徒歩4分 | ||
| 物件所在地 | 新潟県長岡市陽光台4丁目1379-130付近 | ||
| 物件種別 | 新築一戸建て | ||
| 構造 | 木造 | 階建 | 地上2階建 |
| 建ぺい率/容積率 | 60%/200% | ||
| 建物面積 | 計 115.09㎡ /34.81坪 | ||
| 土地面積 | 205.22㎡ /62.07坪 | ||
| 築年月 | 2024年4月(築1年) | ||
| 入居時期 | 相談 | ||
| 用途地域 | 第1種中高層住居専用地域 | 地目 | 宅地 |
| 都市計画 | 市街化区域 | 学校区 | 青葉台小学校(1,600m)・青葉台中学校(2,600m) |
| 形状 | - | 道路 | 東側6m市道 |
| 私道 | - | ||
| 所在階/階数 | - | 号室 | - |
|---|---|---|---|
| 販売価格 | 25,800,000円 | 方位 | 南西 |
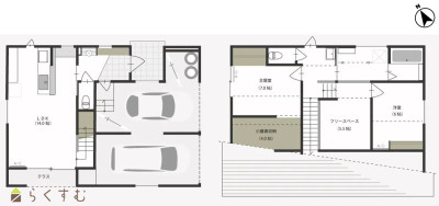
| 間取り |
3LDK (洋室:7、6、5.5) LDK14 小屋裏収納4帖 |
||
| 専有面積 | - | バルコニー面積 | - |
| その他面積 | - | 駐車場 | - |
| 管理費 | - | 修繕積立金 | - |
| 現況 | - | ||
| 仲介手数料 | 917,400円 | ||
| 利用制限 | - | ||
| 設備 | 高台に立地、整形地、前面道路6m以上、日当り良好、閑静な住宅街、全室フローリング、駐車場2台以上、庭あり、カウンターキッチン、IHクッキングヒーター、追いだき機能付き、バス1坪以上、温水洗浄便座、シャワー付き洗面台、エアコン、太陽光発電システム、ウッドデッキ・テラス、上水道、下水道、電気、シューズBOX、バリアフリー | ||
| 取引態様 | 一般 | ||
| 備考 | 【教育機関】 青葉台小学校 約1600m 徒歩約20分 青葉台中学校 約2600m 徒歩約33分 【交通機関】 JR信越本線 来迎寺駅 車約15分 越後交通バス 陽光台4丁目 徒歩約4分 |
||
| 情報登録日 | 2025/09/03 | 次回更新予定日 | 2026/03/18 |
| 取引条件有効期限 | 2026/12/31 | ||
|
|
|
|
| TEL: | 0258-89-8245 |
|---|---|
| 所在地: | 新潟県長岡市台町1-7-331階 |
| 交通: | 長岡駅 |
| 営業時間: | 9:00~18:00/定休日:なし |
| 免許番号: | 新潟県知事(3)第5151号 |
| 所属団体名: | 公社 新潟県宅地建物取引協会 新潟支部 |
| 取引態様: | 一般 |