| 物件コード | 00205-200089 | ||
|---|---|---|---|
| 物件名 | 半田3丁目店舗(ビューティーライフ) | ||
| 交通 | 駅:信越線 茨目駅から徒歩16分、バス:半田コミュニティセンター前から徒歩2分 | ||
| 物件所在地 | 新潟県柏崎市半田3丁目6-14ビューティーライフ | ||
| 物件種別 | 投資物件・その他 | ||
| 物件区分 | その他 | ||
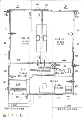
| 構造 | 木造 | 階建 | 地上1階建 |
| 建ぺい率/容積率 | 70%/200% | ||
| 建物面積 | - | ||
| 土地面積 | 132.24㎡ /40坪 | ||
| 築年月 | 2012年12月(築13年) | ||
| 入居時期 | 随時入居(引き渡し)可 | ||
| 用途地域 | 無指定 | 地目 | 宅地 |
| 都市計画 | 非線引き都市計画区域 | 学校区 | 半田小学校(553m)・鏡が沖中学校(961m) |
| 形状 | 間口 8.45m × 奥行 15.82m | 道路 | 東南側 位置指定道路 幅員6m |
| 私道 | - | ||
| 所在階/階数 | - | 号室 | - |
|---|---|---|---|
| 販売価格 | 15,000,000円 | 方位 | - |
| 表面利回り (満室想定時) |
- | 満室想定年収 | - (想定月収: - ) |
| 現行利回り | - | 現行年間年収 | - |
| 住戸数 | - | ||
| 間取り | 3室 | ||
| 専有面積 | - | バルコニー面積 | - |
| その他面積 | - | 駐車場 | 3台分 |
| 管理費 | - | 修繕積立金 | - |
| 現況 | 空家 | ||
| 仲介手数料 | 561,000円 | ||
| 利用制限 | - | ||
| 設備 | 駐車場(近隣含む)、公営水道、下水道、事業向け | ||
| 取引態様 | 一般 | ||
| 備考 | 現況有姿での引渡しとなります。 | ||
| 情報登録日 | 2025/12/27 | 次回更新予定日 | 2026/05/18 |
| 取引条件有効期限 | 2026/12/31 | ||
|
|
|
|
|
| TEL: | 0257-22-1422 |
|---|---|
| 所在地: | 新潟県柏崎市錦町8-29 |
| 交通: | 駅前公園、向かい♪ |
| 営業時間: | 9:00~17:30 土曜日10:00~15:00/定休日:日曜・祝日 |
| 免許番号: | 新潟県知事(8)第3675号 |
| 所属団体名: | 公社 新潟県宅地建物取引業協会 柏崎支部 |
| 取引態様: | 一般 |