| 周辺は自然豊かで野鳥の鳴き声も聞こえてきます。 | |||
| 物件コード | 00190-200345 | ||
|---|---|---|---|
| 物件名 | 出雲崎町 中古住宅 土地557坪・建物74坪【価格改定】 | ||
| 交通 | 駅:越後線 出雲崎駅から徒歩14分、バス:出雲崎役場前から徒歩13分 | ||
| 物件所在地 | 新潟県三島郡出雲崎町大字川西字泉根366番地1 | ||
| 物件種別 | 中古一戸建て | ||
| 構造 | 木造 | 階建 | 地上2階建 |
| 建ぺい率/容積率 | - | ||
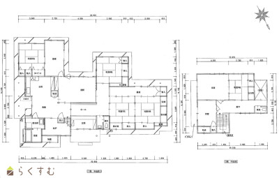
| 建物面積 | 1階 187.59㎡/ 2階 59.63㎡/ 計 247.22㎡ /74.78坪 | ||
| 土地面積 | 1,842.32㎡ /557.3坪 | ||
| 築年月 | 1990年11月(築35年) | ||
| 入居時期 | 随時入居(引き渡し)可 | ||
| 用途地域 | 無指定 | 地目 | 宅地、雑種地 |
| 都市計画 | 都市計画区域外 | 学校区 | 出雲崎小学校(816m)・出雲崎中学校(1,239m) |
| 形状 | 間口 70.05m × 奥行 49.62m | 道路 | 北東側、町道中ノ谷線(幅員:6.1m~11.6m) |
| 私道 | - | ||
| 所在階/階数 | - | 号室 | - |
|---|---|---|---|
| 販売価格 | 9,800,000円 | 方位 | 北東 |
| 間取り | 9DK (和室:6畳、8畳、8畳、8畳、8畳) (洋室:6、8、10、12) | ||
| 専有面積 | - | バルコニー面積 | - |
| その他面積 | 58.53㎡ /17.7坪 敷地内、作業所 | 駐車場 | - |
| 管理費 | - | 修繕積立金 | - |
| 現況 | 空家 | ||
| 仲介手数料 | 389,400円 | ||
| 利用制限 | - | ||
| 設備 | 日当り良好、閑静な住宅街、駐車3台以上可能、3口コンロ、ガスコンロ設置済み、追いだき機能付き、バス1坪以上、トイレ2か所以上、シャワー付き洗面台、LPG、上水道、下水道、2世帯向き、即引き渡し可能、別荘、田舎暮らし、事業向け | ||
| 取引態様 | 一般 | ||
| 備考 | ・建物内外部の家財類は、引渡時までに売主にて撤去します。※一部写真は、CGで家具等を消したものであり、現況と異なる可能性がございます。 ・現況でのお引渡しとなります。(令和7年6月、建物内部調査記録あり)※建物に傾きがあります。 ・居宅面積は、247.22㎡(74.78坪)。その他、敷地内に作業所があります。(58.53㎡/17.70坪) ・価格改定 1,200万円→980万円 (旧価格公表日:令和7年6月16日)(新価格公表日:令和8年4月21日) |
||
| 情報登録日 | 2026/04/21 | 次回更新予定日 | 2026/05/05 |
| 取引条件有効期限 | 2026/07/31 | ||
|
|
|
|
|
|
| TEL: | 0257-23-0500 |
|---|---|
| 所在地: | 新潟県柏崎市半田2-1-17 |
| 交通: | R8バイパス「半田中央」交差点角 |
| 営業時間: | 9:00~17:30/定休日:土・日・祝(ご予約にて対応可能です。) |
| 免許番号: | 新潟県知事(9)第3314号 |
| 所属団体名: | 公社 宅地建物取引業協会 柏崎支部 |
| 取引態様: | 一般 |