| 【新築プラン付売り土地】その他、売土地Bもあり* | |||
| 物件コード | 00167-200036 | ||
|---|---|---|---|
| 物件名 | 見附市今町5丁目【売土地A】 | ||
| 交通 | 駅:信越線 見附駅から徒歩24分、バス:今町5丁目から徒歩6分 | ||
| 物件所在地 | 新潟県見附市今町5丁目3235番地5 / 3220番16 | ||
| 物件種別 | 売土地・分譲地 | ||
| 物件区分 | 売土地 | ||
| 構造 | - | 階建 | - |
| 建ぺい率/容積率 | 60%/200% | ||
| 建物面積 | - | ||
| 土地面積 | 115.74㎡ /35.01坪 | ||
| 築年月 | - | ||
| 入居時期 | 相談 | ||
| 用途地域 | 第1種住居地域 | 地目 | 宅地 |
| 都市計画 | 市街化区域 | 学校区 | 今町小学校(1,100m)・今町中学校(400m) |
| 形状 | 間口 7.04m × 奥行 16.57m | 道路 | 北側公道6M |
| 私道 | - | ||
| 所在階/階数 | - | 号室 | - |
|---|---|---|---|
| 販売価格 | 3,800,000円 | 方位 | - |
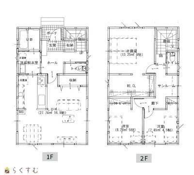
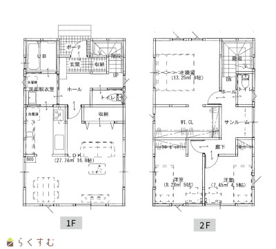
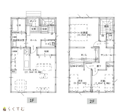
| 間取り |
LDK (洋室:8、5、4.5) LDK16.8 |
||
| 専有面積 | - | バルコニー面積 | - |
| その他面積 | - | 駐車場 | - |
| 管理費 | - | 修繕積立金 | - |
| 現況 | - | ||
| 仲介手数料 | なし | ||
| 利用制限 | - | ||
| 設備 | 整形地、前道6m以上、学校近く、スーパー近く、閑静な住宅街、電気、都市ガス(宅地内)、上水道(宅地内)、下水道(宅地内)、住宅向け | ||
| 取引態様 | 売主 | ||
| 備考 | 3LDK・駐車2台可能、新築プラン付売土地 参考価格 【土地:380万円+建物2150万円=2530万円※諸経費別途負担あり】 ※建築条件付 |
||
| 情報登録日 | 2025/10/09 | 次回更新予定日 | 2025/12/20 |
| 取引条件有効期限 | 2026/03/08 | ||
|
|
|
|
| TEL: | 0258-52-3517 |
|---|---|
| 所在地: | 新潟県長岡市赤谷56-1 |
| 交通: | |
| 営業時間: | 9:00~18:00/定休日:水曜日 |
| 免許番号: | 新潟県知事(4)第4845号 |
| 所属団体名: | 新潟県宅地建物取引業協会 長岡支部 |
| 取引態様: | 売主 |