| ☆低炭素住宅 ☆自然素材の風合いを生かしたナチュラルなデザイン《カンパーニュ》 | |||
| 物件コード | 00160-200273 | ||
|---|---|---|---|
| 物件名 | 中田原 築浅未入居住宅 | ||
| 交通 | 駅:妙高はねうまライン 南高田駅から徒歩11分、バス:商業高校前から徒歩4分 | ||
| 物件所在地 | 新潟県上越市中田原105-35 | ||
| 物件種別 | 中古一戸建て | ||
| 構造 | 木造 | 階建 | 地上2階建 |
| 建ぺい率/容積率 | 60%/200% | ||
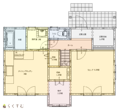
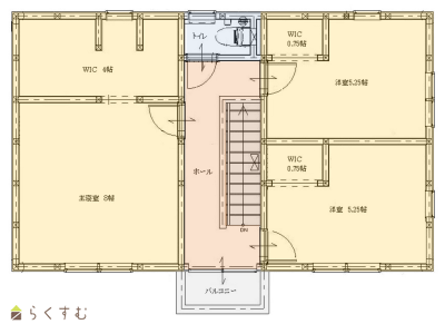
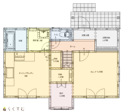
| 建物面積 | 1階 51.34㎡/ 2階 49.68㎡/ 計 101.02㎡ /30.55坪 | ||
| 土地面積 | 238.06㎡ /72.01坪 | ||
| 築年月 | 2021年5月(築5年) | ||
| 入居時期 | 随時入居(引き渡し)可 | ||
| 用途地域 | 準工業地域 | 地目 | 宅地 (現状:宅地) |
| 都市計画 | 市街化区域 | 学校区 | 黒田小学校(1,463m)・城西中学校(758m) |
| 形状 | 間口 13.17m × 奥行 18.08m | 道路 | 上越市道 北西側幅員7m |
| 私道 | - | ||
| 所在階/階数 | - | 号室 | - |
|---|---|---|---|
| 販売価格 | 31,000,000円 | 方位 | 東 |
| 間取り |
3LDK (洋室:8、5.25、5.25) リビング8.35帖 ダイニングキッチン8帖 物干室2.25帖 玄関収納1.67帖 WIC4帖 |
||
| 専有面積 | - | バルコニー面積 | - |
| その他面積 | - | 駐車場 | - |
| 管理費 | - | 修繕積立金 | - |
| 現況 | 空家 | ||
| 仲介手数料 | なし | ||
| 利用制限 | - | ||
| 設備 | 日当り良好、閑静な住宅街、瑕疵担保保険対象、新築時図面あり、建物確認・完了検査済証あり、全室フローリング、築10年以内、駐車2台可能、駐車3台以上可能、南向き、TVインターホン、複層ガラス、システムキッチン、IHクッキングヒーター、食器洗浄乾燥機、追いだき機能付き、浴室乾燥機、バス1坪以上、温水洗浄便座、エアコンあり、24時間換気システム、オール電化、上水道、下水道、バリアフリー、ウォークインクローゼット、全居室収納あり、シューズBOX、シューズインクローゼット | ||
| 取引態様 | 仲介 | ||
| 備考 | リネンカーテン・照明・エアコン付 床下冷暖房空調 トリプルサッシと木質断熱材使用 高気密高断熱”超高性能住宅” |
||
| 情報登録日 | 2025/06/19 | 次回更新予定日 | 2026/05/20 |
| 取引条件有効期限 | 2026/06/04 | ||
|
|
|
|
|
| TEL: | 025-520-7103 |
|---|---|
| 所在地: | 新潟県上越市下門前1705 |
| 交通: | はねうまライン 直江津駅 |
| 営業時間: | 9:00~18:00/定休日:日曜・祝祭日 |
| 免許番号: | 新潟県知事(4)第4991号 |
| 所属団体名: | 新潟県宅地建物取引業協会 上越支部 |
| 取引態様: | 仲介 |