| 物件コード | 00088-200790 | ||
|---|---|---|---|
| 物件名 | 柏崎市中浜2丁目売住宅 | ||
| 交通 | 駅:信越線 柏崎駅から徒歩22分、バス:赤坂山陸橋前から徒歩2分 | ||
| 物件所在地 | 新潟県柏崎市中浜2丁目10-24 | ||
| 物件種別 | 中古一戸建て | ||
| 構造 | 木造 | 階建 | 地上2階建 |
| 建ぺい率/容積率 | 60%/200% | ||
| 建物面積 | 1階 73.5㎡/ 計 73.5㎡ /22.23坪 | ||
| 土地面積 | 162.85㎡ /49.26坪 | ||
| 築年月 | 不詳 | ||
| 入居時期 | 相談 | ||
| 用途地域 | 第1種住居地域 | 地目 | 宅地 |
| 都市計画 | 非線引き都市計画区域 | 学校区 | 大洲小学校(278m)・第三中学校(1,014m) |
| 形状 | - | 道路 | 公道 |
| 私道 | - | ||
| 所在階/階数 | - | 号室 | - |
|---|---|---|---|
| 販売価格 | 5,000,000円 | 方位 | 北 |
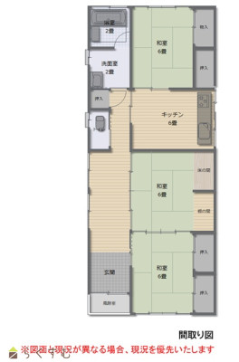
| 間取り |
3DK (和室:6畳、6畳、6畳) DK6 |
||
| 専有面積 | - | バルコニー面積 | - |
| その他面積 | - | 駐車場 | - |
| 管理費 | - | 修繕積立金 | - |
| 現況 | 空家 | ||
| 仲介手数料 | 330,000円 | ||
| 利用制限 | - | ||
| 設備 | 閑静な住宅街、駐車2台可能、システムキッチン、3口コンロ、バス1坪以上、エアコンあり、都市ガス、上水道、下水道 | ||
| 取引態様 | 一般 | ||
| 備考 | □平成10年建築 □建物は登記されておりません。 □建物保存登記をする場合は別途費用がかかります。 □現況有姿での売買となります。 □再建築の際には、東側のセットバックが必要になる場合があります。 |
||
| 情報登録日 | 2026/02/13 | 次回更新予定日 | 2026/04/14 |
| 取引条件有効期限 | 2025/08/15 | ||
|
|
|
|
| TEL: | 0257-24-0034 |
|---|---|
| 所在地: | 新潟県柏崎市土合628-1 |
| 交通: | |
| 営業時間: | 8:30~17:30/定休日:土・日・祝(対応可能です) 年末年始・お盆・GW |
| 免許番号: | 新潟県知事(9)第3199号 |
| 所属団体名: | 新潟県宅地建物取引業協会 柏崎支部 |
| 取引態様: | 一般 |