| アフターメンテナンスも継続します。田舎暮らしにも最適です。 | |||
| 物件コード | 00080-200194 | ||
|---|---|---|---|
| 物件名 | 【ミサワホームのスムストック:高床式5LDK】小国町桐沢 | ||
| 交通 | バス:法坂から徒歩14分 | ||
| 物件所在地 | 新潟県長岡市小国町桐沢1825-3 | ||
| 物件種別 | 中古一戸建て | ||
| 構造 | 木造 | 階建 | 地上3階建 |
| 建ぺい率/容積率 | 70%/200% | ||
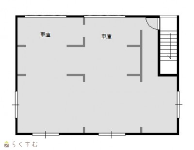
| 建物面積 | 1階 68.72㎡/ 2階 71.83㎡/ 3階 64.59㎡/ 計 205.14㎡ /62.05坪 | ||
| 土地面積 | 314.42㎡ /95.11坪 | ||
| 築年月 | 2000年11月(築25年) | ||
| 入居時期 | 相談 | ||
| 用途地域 | 用途の指定のない地域 | 地目 | 宅地 |
| 都市計画 | 都市計画区域外 | 学校区 | 小国小学校(1,665m)・小国中学校(1,868m) |
| 形状 | - | 道路 | 北側11M県道(消雪あり) |
| 私道 | - | ||
| 所在階/階数 | - | 号室 | - |
|---|---|---|---|
| 販売価格 | 8,500,000円 | 方位 | 指定なし |
| 間取り | 5LDK | ||
| 専有面積 | - | バルコニー面積 | - |
| その他面積 | 68.72㎡ /20.78坪 高床 | 駐車場 | - |
| 管理費 | - | 修繕積立金 | - |
| 現況 | 空家 | ||
| 仲介手数料 | 346,500円 | ||
| 利用制限 | - | ||
| 設備 | 日当り良好、耐震構造、駐車3台以上可能、複層ガラス、システムキッチン、追いだき機能付き、バス1坪以上、温水洗浄便座、トイレ2か所以上、シャワー付き洗面台、24時間換気システム、ルーフバルコニー、LPG、上水道、下水道、ウォークインクローゼット、全居室収納あり、BS端子、別荘、田舎暮らし | ||
| 取引態様 | 専任 | ||
| 備考 | - | ||
| 情報登録日 | 2025/05/03 | 次回更新予定日 | 2026/05/14 |
| 取引条件有効期限 | 2025/09/30 | ||
|
|
|
|
|
| TEL: | 0120-486-330 |
|---|---|
| 所在地: | 新潟県長岡市古正寺2丁目71番地 |
| 交通: | 長岡駅 |
| 営業時間: | 9:00~18:00/定休日:火・水 |
| 免許番号: | 国土交通大臣(3)8557号 |
| 所属団体名: | 新潟県宅地建物取引協会 長岡支部 |
| 取引態様: | 専任 |