| 物件コード | 00063-200094 | ||
|---|---|---|---|
| 物件名 | 出雲崎町船橋中古住宅 | ||
| 交通 | 駅:越後線 小木ノ城駅から徒歩5分、バス:出雲崎駅前から徒歩33分 | ||
| 物件所在地 | 新潟県三島郡出雲崎町船橋18 | ||
| 物件種別 | 中古一戸建て | ||
| 構造 | 木造 | 階建 | 地上2階建 |
| 建ぺい率/容積率 | - | ||
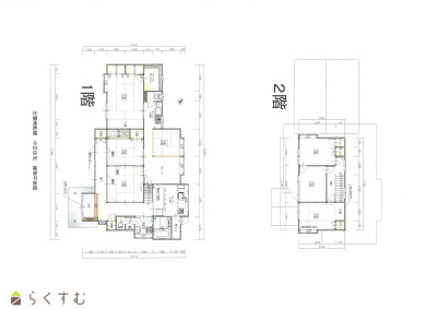
| 建物面積 | 1階 123.82㎡/ 2階 41.95㎡/ 計 165.77㎡ /50.14坪 | ||
| 土地面積 | 396.69㎡ /119.99坪 | ||
| 築年月 | 1983年9月(築42年) | ||
| 入居時期 | 相談 | ||
| 用途地域 | 用途の指定のない地域 | 地目 | 宅地 |
| 都市計画 | 都市計画区域外 | 学校区 | 出雲崎小学校(2,207m)・出雲崎中学校(2,413m) |
| 形状 | 間口 22m | 道路 | 南側:町道 |
| 私道 | - | ||
| 所在階/階数 | - | 号室 | - |
|---|---|---|---|
| 販売価格 | 5,500,000円 | 方位 | - |
| 間取り | 7K (和室:8畳、6畳、4.5畳、10畳、6畳) (洋室:6、6) | ||
| 専有面積 | - | バルコニー面積 | - |
| その他面積 | - | 駐車場 | - |
| 管理費 | - | 修繕積立金 | - |
| 現況 | 空家 | ||
| 仲介手数料 | 330,000円 | ||
| 利用制限 | - | ||
| 設備 | 日当り良好、閑静な住宅街、駐車2台可能、追いだき機能付き、トイレ2か所以上、LPG、上水道、下水道、別荘、田舎暮らし | ||
| 取引態様 | 一般 | ||
| 備考 | ・未登記建物(車庫) ・車庫2棟あり ・トイレ2か所あり、ミニキッチン、洗面 ・現況有姿取引となります。 |
||
| 情報登録日 | 2025/04/24 | 次回更新予定日 | 2025/12/20 |
| 取引条件有効期限 | 2025/07/31 | ||
|
|
|
|
|
|
| TEL: | 0258-78-4413 |
|---|---|
| 所在地: | 新潟県三島郡出雲崎町松本99-1 |
| 交通: | JR 出雲崎駅 |
| 営業時間: | 8:15~17:30/定休日:水曜・年末年始休暇、GW、夏季休暇 |
| 免許番号: | 新潟県知事(3)第5114号 |
| 所属団体名: | 新潟県宅地建物取引協会 長岡支部 |
| 取引態様: | 一般 |