| 物件コード | 00063-200083 | ||
|---|---|---|---|
| 物件名 | 出雲崎町上野山別荘 | ||
| 交通 | 駅:越後線 出雲崎駅から徒歩52分 | ||
| 物件所在地 | 新潟県三島郡出雲崎町大字上野山字滝ノ上甲375番乙 | ||
| 物件種別 | 中古一戸建て | ||
| 構造 | 木造鉄筋コン | 階建 | 地上2階建 |
| 建ぺい率/容積率 | - | ||
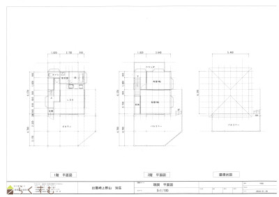
| 建物面積 | 1階 34.78㎡/ 2階 34.78㎡/ 計 69.56㎡ /21.04坪 | ||
| 土地面積 | 69.42㎡ /20.99坪 | ||
| 築年月 | 不詳 | ||
| 入居時期 | 相談 | ||
| 用途地域 | 用途の指定のない地域 | 地目 | 宅地 |
| 都市計画 | 都市計画区域外 | 学校区 | 出雲崎小学校(2,315m)・出雲崎中学校(1,482m) |
| 形状 | - | 道路 | 町道 東側 鳴滝町上野山線 |
| 私道 | - | ||
| 所在階/階数 | - | 号室 | - |
|---|---|---|---|
| 販売価格 | 3,000,000円 | 方位 | - |
| 間取り | 2DK (和室:6畳、10畳) (洋室:8) | ||
| 専有面積 | - | バルコニー面積 | - |
| その他面積 | - | 駐車場 | - |
| 管理費 | - | 修繕積立金 | - |
| 現況 | 空家 | ||
| 仲介手数料 | 154,000円 | ||
| 利用制限 | - | ||
| 設備 | 高台に立地、日当り良好、LPG、上水道、下水道、別荘 | ||
| 取引態様 | 一般 | ||
| 備考 | 建物未登記、建築年:平成5年 駐車場なし 海側からは物件まで徒歩、車の通行できません。 町道鳴滝町上野山線は車(軽自動車)1台通行可能。 トイレ、洗面、ベランダ修繕必要。 |
||
| 情報登録日 | 2024/01/26 | 次回更新予定日 | 2026/05/14 |
| 取引条件有効期限 | 2024/03/23 | ||
|
|
|
|
| TEL: | 0258-78-4413 |
|---|---|
| 所在地: | 新潟県三島郡出雲崎町松本99-1 |
| 交通: | JR 出雲崎駅 |
| 営業時間: | 8:15~17:30/定休日:水曜・年末年始休暇、GW、夏季休暇 |
| 免許番号: | 新潟県知事(3)第5114号 |
| 所属団体名: | 新潟県宅地建物取引協会 長岡支部 |
| 取引態様: | 一般 |