| 物件コード | 00050-200417 | ||
|---|---|---|---|
| 物件名 | 上方 | ||
| 交通 | 駅:信越線 柏崎駅から徒歩45分、バス:上方(R353)から徒歩6分 | ||
| 物件所在地 | 新潟県柏崎市大字上方342番、348番2、他 | ||
| 物件種別 | 中古一戸建て | ||
| 構造 | 木造 | 階建 | 地上2階建 |
| 建ぺい率/容積率 | 70%/200% | ||
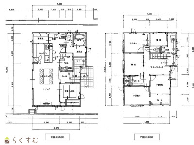
| 建物面積 | 1階 67.9㎡/ 2階 66.66㎡/ 計 134.56㎡ /40.7坪 | ||
| 土地面積 | 265.5㎡ /80.31坪 | ||
| 築年月 | 2017年3月(築9年) | ||
| 入居時期 | 相談 | ||
| 用途地域 | 無指定 | 地目 | 宅地 (現状:宅地) |
| 都市計画 | 非線引き都市計画区域 | 学校区 | 新道小学校(1,019m)・南中学校(612m) |
| 形状 | - | 道路 | 東側:市道(除雪あり) |
| 私道 | - | ||
| 所在階/階数 | - | 号室 | - |
|---|---|---|---|
| 販売価格 | 22,000,000円 | 方位 | 西 |
| 間取り |
6LDK (和室:3.8畳) (洋室:5.1、5.9、6.1、4.6) LDK19.5 書斎2.7帖 |
||
| 専有面積 | - | バルコニー面積 | - |
| その他面積 | - | 駐車場 | - |
| 管理費 | - | 修繕積立金 | - |
| 現況 | 空家 | ||
| 仲介手数料 | 792,000円 | ||
| 利用制限 | - | ||
| 設備 | 日当り良好、閑静な住宅街、LDK15帖以上、築10年以内、駐車2台可能、駐車3台以上可能、TVインターホン、複層ガラス、デインプルキー、システムキッチン、IHクッキングヒーター、食器洗浄乾燥機、3口コンロ、追いだき機能付き、温水洗浄便座、トイレ2か所以上、シャワー付き洗面台、エアコンあり、24時間換気システム、オール電化、ウッドデッキ・テラス、上水道、下水道、ウォークインクローゼット、全居室収納あり、シューズインクローゼット | ||
| 取引態様 | 専任 | ||
| 備考 | - | ||
| 情報登録日 | 2025/07/07 | 次回更新予定日 | 2026/05/14 |
| 取引条件有効期限 | 2025/12/26 | ||
|
|
|
|
|
| TEL: | 0257-22-3357 |
|---|---|
| 所在地: | 新潟県柏崎市横山440番地1 |
| 交通: | 柏崎駅 |
| 営業時間: | 9:00~17:30/定休日:日曜・祭日 |
| 免許番号: | 新潟県知事(14)第1377号 |
| 所属団体名: | 新潟県宅地建物取引業協会 柏崎支部 |
| 取引態様: | 専任 |