| 物件コード | 00044-200696 | ||
|---|---|---|---|
| 物件名 | 小千谷市三仏生 中古住宅 | ||
| 交通 | 駅:上越線 小千谷駅から徒歩40分、バス:すみれ保育園前から徒歩3分 | ||
| 物件所在地 | 新潟県小千谷市三仏生3588-3 | ||
| 物件種別 | 中古一戸建て | ||
| 構造 | 木造 | 階建 | 地上2階建 |
| 建ぺい率/容積率 | 70%/200% | ||
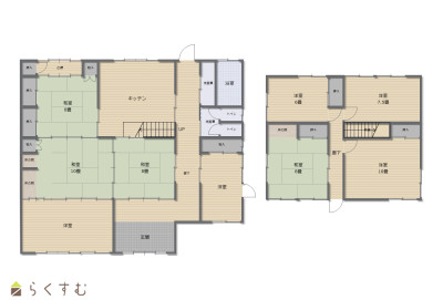
| 建物面積 | 1階 135.25㎡/ 2階 68.26㎡/ 計 203.51㎡ /61.56坪 | ||
| 土地面積 | 425.26㎡ /128.64坪 | ||
| 築年月 | 1980年12月(築45年) | ||
| 入居時期 | 2026年5月頃 | ||
| 用途地域 | 用途の指定のない地域 | 地目 | 宅地 |
| 都市計画 | 非線引き都市計画区域 | 学校区 | 千田小学校(990m)・千田中学校(847m) |
| 形状 | - | 道路 | 南側:公道 11m |
| 私道 | - | ||
| 所在階/階数 | - | 号室 | - |
|---|---|---|---|
| 販売価格 | 12,800,000円 | 方位 | 南 |
| 間取り | 8DK | ||
| 専有面積 | - | バルコニー面積 | - |
| その他面積 | - | 駐車場 | - |
| 管理費 | - | 修繕積立金 | - |
| 現況 | 居住中 | ||
| 仲介手数料 | 488,400円 | ||
| 利用制限 | - | ||
| 設備 | 日当り良好、閑静な住宅街、駐車2台可能、都市ガス、上水道、下水道 | ||
| 取引態様 | 一般 | ||
| 備考 | ■現況有姿での引渡し、売主による契約不適合責任は免責 ■隣地と共有の融雪井戸有り ■現在、下水道は隣地と共有していますが売主にの負担により新たに下水道公共桝を設置し配管完了後引渡しとなります。■現在居住中です内覧は事前予約必要です | ||
| 情報登録日 | 2025/09/18 | 次回更新予定日 | 2026/02/16 |
| 取引条件有効期限 | 2025/12/03 | ||
|
|
|
|
|
|
| TEL: | 0258-86-6934 |
|---|---|
| 所在地: | 新潟県長岡市大島本町3丁目10番8号202号室 |
| 交通: | |
| 営業時間: | 9:30~18:00/定休日:水曜日、日曜日 |
| 免許番号: | 新潟県知事(4)第4978号 |
| 所属団体名: | ブレインリアルエステート合同会社 |
| 取引態様: | 一般 |