| 学校や公園が近く、子育て世代に最適な環境です。南向きのリビングで日当たり良好。3階はホールが広く、趣味のスペースとしてもご利用いただけます。屋上にはテラスもあり、晴れた日は日光浴もできます。 | |||
| 物件コード | 00017-200338 | ||
|---|---|---|---|
| 物件名 | 【中古住宅】長岡市下々条町 中古住宅 | ||
| 交通 | 駅:信越線 押切駅から徒歩28分、バス:大野から徒歩1分 | ||
| 物件所在地 | 新潟県長岡市下々条町2476番地13 | ||
| 物件種別 | 中古一戸建て | ||
| 構造 | 木造鉄筋コン | 階建 | 地上3階建 |
| 建ぺい率/容積率 | 70%/200% | ||
| 建物面積 | 1階 67.44㎡/ 2階 63.89㎡/ 3階 71.75㎡/ 計 203.08㎡ /61.43坪 | ||
| 土地面積 | 225.93㎡ /68.34坪 | ||
| 築年月 | 2000年10月(築25年) | ||
| 入居時期 | 相談 | ||
| 用途地域 | 第2種中高層住居専用地域 | 地目 | 宅地 (現状:宅地) |
| 都市計画 | 市街化区域 | 学校区 | 黒条小学校(654m)・堤岡中学校(248m) |
| 形状 | 間口 9.7m × 奥行 17.5m | 道路 | 北東:長岡市道6m/北西:長岡市道6m ※いずれも消雪道路 |
| 私道 | - | ||
| 所在階/階数 | - | 号室 | - |
|---|---|---|---|
| 販売価格 | 18,400,000円 | 方位 | - |
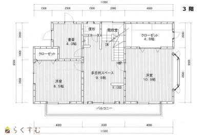
| 間取り |
3LDK (洋室:4.3、8.5、10.9) LDK22.9 3階:9.8帖(多目的スペース)/R階:ルーフテラス |
||
| 専有面積 | - | バルコニー面積 | - |
| その他面積 | 9.5㎡ /2.87坪 3階:バルコニー(物干しスペース) | 駐車場 | - |
| 管理費 | - | 修繕積立金 | - |
| 現況 | 空家 | ||
| 仲介手数料 | 673,200円 | ||
| 利用制限 | - | ||
| 設備 | 角地、日当り良好、閑静な住宅街、スーパー近く、新築時図面あり、LDK15帖以上、全室フローリング、駐車3台以上可能、南向き、TVインターホン、IHクッキングヒーター、浄水器、3口コンロ、追いだき機能付き、バス1坪以上、温水洗浄便座、トイレ2か所以上、シャワー付き洗面台、エアコンあり、都市ガス、上水道、下水道、ウォークインクローゼット、シューズBOX | ||
| 取引態様 | 一般 | ||
| 備考 | 前面道路は消雪道路です | ||
| 情報登録日 | 2024/11/25 | 次回更新予定日 | 2025/11/25 |
| 取引条件有効期限 | 2025/02/20 | ||
|
|
|
|
|
| TEL: | 0258-35-6682 |
|---|---|
| 所在地: | 新潟県長岡市曙1-1-7 |
| 交通: | |
| 営業時間: | 9:00~18:00/定休日: |
| 免許番号: | 新潟県知事(4)4781号 |
| 所属団体名: | 新潟県宅地建物取引業協会 長岡支部 |
| 取引態様: | 一般 |