| 物件コード | 00014-200164 | ||
|---|---|---|---|
| 物件名 | 宮内町 売店舗 土地40坪 建物15坪 | ||
| 交通 | バス:東宮内から徒歩1分 | ||
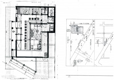
| 物件所在地 | 新潟県長岡市宮内町3404-2 他1筆 | ||
| 物件種別 | 投資物件・その他 | ||
| 物件区分 | その他 | ||
| 構造 | 木造 | 階建 | 地上2階建 |
| 建ぺい率/容積率 | 80%/200% | ||
| 建物面積 | 1階 36.36㎡/ 2階 16.52㎡/ 計 52.88㎡ /15.99坪 | ||
| 土地面積 | 133.94㎡ /40.51坪 | ||
| 築年月 | 1980年10月(築45年) | ||
| 入居時期 | 相談 | ||
| 用途地域 | 近隣商業地域 | 地目 | 田 (現状:建物有) |
| 都市計画 | 市街化区域 | 学校区 | 宮内小学校(647m)・宮内中学校(785m) |
| 形状 | - | 道路 | 北側市道幅員20m・南側市道幅員3.8m |
| 私道 | - | ||
| 所在階/階数 | - | 号室 | - |
|---|---|---|---|
| 販売価格 | 9,800,000円 | 方位 | - |
| 表面利回り (満室想定時) |
- | 満室想定年収 | - (想定月収: - ) |
| 現行利回り | - | 現行年間年収 | - |
| 住戸数 | - | ||
| 間取り | - | ||
| 専有面積 | - | バルコニー面積 | - |
| その他面積 | - | 駐車場 | 付無料 |
| 管理費 | - | 修繕積立金 | - |
| 現況 | 空家 | ||
| 仲介手数料 | 389,400円 | ||
| 利用制限 | - | ||
| 設備 | 角地、駐車場(近隣含む)、事業向け | ||
| 取引態様 | 一般 | ||
| 備考 | フェニックス大橋に至る幹線道路沿い | ||
| 情報登録日 | 2023/06/17 | 次回更新予定日 | 2026/05/14 |
| 取引条件有効期限 | 2023/09/30 | ||
|
|
|
|
|
|
| TEL: | 0120-35-3901 |
|---|---|
| 所在地: | 新潟県長岡市要町3-1-26 |
| 交通: | 長岡駅大手口①バス乗場より乗車~溝橋下車徒歩約4分 |
| 営業時間: | 9:30~18:00/定休日:日曜・祝祭日 |
| 免許番号: | 新潟県知事(16)第495号 |
| 所属団体名: | 新潟県宅地建物取引業協会 長岡支部 |
| 取引態様: | 一般 |