新潟県上越市高土町2丁目11-22 中古一戸建て 3LDK 24,800,000円の物件情報

金額交渉可能!カーポートと屋外収納付きの2017年建築平家建です!

物件名/所在地 詳細 価格
高土町2丁目
新潟県上越市高土町2丁目11-22
  • 土地面積
    :210.78㎡ /63.76坪
  • 建物面積
    :62.89㎡ /19.02坪
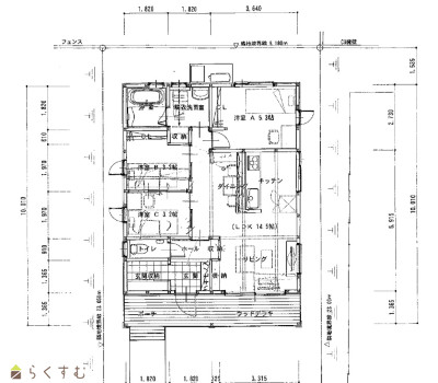
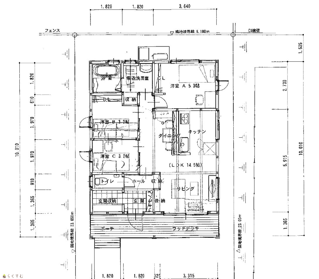
  • 間取り
    :3LDK
  • 築年月
    :2017年10月
24,800,000
  • 高土町2丁目
    頸城自動車 株式会社
  • この物件を問い合わせる/無料
  • TEL: 025-531-2151 025-531-2151

物件画像

外観
間取り
物件画像
※画像クリックで拡大表示
外観1
物件画像
※画像クリックで拡大表示
間取り図
詳細画像
物件画像
外観2
物件画像
外観3
物件画像
外観4
物件画像
外観5
物件画像
屋外収納
物件画像
前面道路より
物件画像
LDK1
物件画像
LDK2
物件画像
LDK3
物件画像
キッチン
物件画像
洋室①
物件画像
洋室②
物件画像
トイレ
物件画像
脱衣室
物件画像
浴室


物件概要

日当たりの良い南面にはウッドデッキと畑があり、野菜やお花を楽しみながらデッキでくつろいだり、内と外を繋いだホームパーティーを楽しんだりと、お好きにご活用いただけます!
物件コード 00347-200008
物件名 高土町2丁目
交通 駅:妙高はねうまライン 高田駅から徒歩29分、バス:高土町から徒歩8分
物件所在地 新潟県上越市高土町2丁目11-22
物件種別 中古一戸建て
構造 木造 階建 地上1階建
建ぺい率/容積率 50%/80%
建物面積 1階 62.89㎡/ 計 62.89㎡ /19.02坪
土地面積 210.78㎡ /63.76坪
築年月 2017年10月(築8年)
入居(引き渡し)時期 相談
用途地域 第1種低層住居専用地域 地目 宅地
都市計画 市街化区域 学校区 東本町小学校(975m)・城北中学校(654m)
形状 間口 9.5m 道路 南5.3m 公道
私道 なし その他の制限 景観法
  • 高土町2丁目
    頸城自動車 株式会社
  • この物件を問い合わせる/無料
  • TEL: 025-531-2151 025-531-2151

物件詳細情報

所在階/階数 - 号室 -
販売価格 24,800,000円 方位 指定なし
間取り 3LDK (洋室:3.2、3.2、5.3)
専有面積 - バルコニー面積 -
その他面積 9.9㎡ /2.99坪  ウッドデッキ 駐車場 -
管理費 - 修繕積立金 -
現況 空家
仲介手数料 884,400円
利用制限 -
設備 閑静な住宅街、全室フローリング、築10年以内、駐車2台可能、南向き、カウンターキッチン、IHクッキングヒーター、追いだき機能付き、オール電化、ウッドデッキ・テラス、上水道、下水道、シューズインクローゼット
取引態様 一般
備考 全ての機能がワンフロアに集まるつながりの空間は、リビングを中心に各お部屋・水回りへスムーズに移動でき、階段もないため怪我の原因も少なく、子育て世代の方やご高齢の方も安心して暮らせる造りとなっております。
取り扱い会社

頸城自動車 株式会社

新潟県上越市石橋2-12-52

情報登録日 2025/10/27 次回更新予定日 2025/12/31
取引条件有効期限 2026/01/30
  • 高土町2丁目
    頸城自動車 株式会社
  • この物件を問い合わせる/無料
  • TEL: 025-531-2151 025-531-2151

この物件の地図・周辺情報・行政情報

この物件の周辺情報・行政情報を詳しく見る
【周辺情報】
物件の近くにあるコンビニや銀行・学校など、アイコン付のマップで詳しく表示できます!
【行政情報】
水道料や下水道料・ガス料金など、暮らしに関係のある情報を表示しています。

担当取扱い店舗情報

取扱い店舗画像
頸城自動車 株式会社
TEL: 025-531-2151
所在地: 新潟県上越市石橋2-12-52
交通:
営業時間: /定休日:日・祝日
免許番号: 新潟県知事(15)第725号
所属団体名: 公社 新潟県宅地建物取引協会 上越支部
取引態様: 一般
ホームページ: https://www.kubiki-fudo3.jp/