新潟県長岡市新保1丁目6-3 新築一戸建て 3LDK 23,300,000円の物件情報

【完成前なので好みのデザイン選べます!】住宅街が広がる閑静な街並み。徒歩15分圏内に原信・ドン・キホーテ・ニトリやジョーシンなどショッピング施設が充実♪長岡バイパス・東幹線86号線が近くマイカー通勤もスムーズ。

物件名/所在地 詳細 価格
長岡市新保1丁目Bright新築戸建
新潟県長岡市新保1丁目6-3
  • 土地面積
    :138㎡ /41.74坪
  • 建物面積
    :86.11㎡ /26.04坪
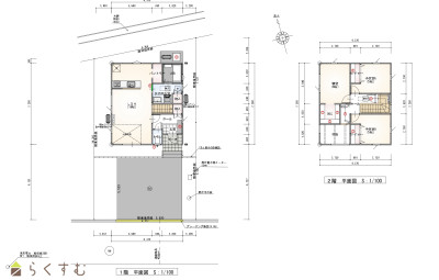
  • 間取り
    :3LDK
  • 築年月
    :2026年6月
23,300,000
  • 長岡市新保1丁目Bright新築戸建
    有限会社 ブライトサクセス
  • この物件を問い合わせる/無料
  • TEL: 0258-35-2220 0258-35-2220

物件画像

外観
間取り
物件画像
※画像クリックで拡大表示
完成予想外観
物件画像
※画像クリックで拡大表示
完成予想間取り
詳細画像
物件画像
区画図
物件画像
立面図
物件画像
平面図
物件画像
IH
物件画像
エアコン
物件画像
室外機
物件画像
インターホン
物件画像
蛇口
物件画像
断熱
物件画像
複層ガラス
物件画像
地図画像
動画


物件概要

南を空けた配置がしやすい、採光にこだわった家づくりが可能。富曽亀小学校・東北中学校まで徒歩10分圏内で通学も安心。
物件コード 00320-200133
物件名 長岡市新保1丁目Bright新築戸建
交通 駅:信越線 北長岡駅から徒歩17分、バス:新保1丁目から徒歩3分
物件所在地 新潟県長岡市新保1丁目6-3
物件種別 新築一戸建て
構造 木造 階建 地上2階建
建ぺい率/容積率 60%/200%
建物面積 計 86.11㎡ /26.04坪
土地面積 138㎡ /41.74坪
築年月 2026年6月完成予定
入居(引き渡し)時期 相談
用途地域 第1種中高層住居専用地域 地目 宅地
都市計画 市街化区域 学校区 富曾亀小学校(501m)・東北中学校(760m)
形状 間口 9.1m 道路 前面道路幅員4.0m
私道 - その他の制限 -
  • 長岡市新保1丁目Bright新築戸建
    有限会社 ブライトサクセス
  • この物件を問い合わせる/無料
  • TEL: 0258-35-2220 0258-35-2220

物件詳細情報

所在階/階数 - 号室 -
販売価格 23,300,000円 方位
間取り 3LDK (洋室:6.0、5.0、5.0)
LDK16
専有面積 - バルコニー面積 -
その他面積 - 駐車場 -
管理費 - 修繕積立金 -
現況 指定なし
仲介手数料 834,900円
利用制限 -
設備 整形地、日当り良好、閑静な住宅街、スーパー近く、LDK15畳以上、全室フローリング、駐車場2台以上、南向き、TVインターホン、複層ガラス、システムキッチン、カウンターキッチン、IHクッキングヒーター、バス1坪以上、シャワー付き洗面台、オール電化、省エネ給湯、高気密高断熱住宅、上水道、下水道、ウォークインクローゼット、全居室収納あり
取引態様 一般
備考 -
取り扱い会社

有限会社 ブライトサクセス

新潟県長岡市新町1-1-2

情報登録日 2025/11/21 次回更新予定日 2025/12/20
取引条件有効期限 2026/04/27
  • 長岡市新保1丁目Bright新築戸建
    有限会社 ブライトサクセス
  • この物件を問い合わせる/無料
  • TEL: 0258-35-2220 0258-35-2220

この物件の地図・周辺情報・行政情報

この物件の周辺情報・行政情報を詳しく見る
【周辺情報】
物件の近くにあるコンビニや銀行・学校など、アイコン付のマップで詳しく表示できます!
【行政情報】
水道料や下水道料・ガス料金など、暮らしに関係のある情報を表示しています。
セブン-イレブン 長岡永田店(コンビニ)まで350m
良食生活館 川崎店(スーパー)まで590m
ドラッグトップス 新保薬局(ドラッグストア)まで810m
大光銀行 新保支店(銀行)まで200m
長岡永田郵便局(郵便局)まで280m

※カメラのアイコンがある場合は、マウスをポイントするとその施設の画像がご覧いただけます。


担当取扱い店舗情報

取扱い店舗画像
有限会社 ブライトサクセス
TEL: 0258-35-2220
所在地: 新潟県長岡市新町1-1-2
交通: 長岡駅
営業時間: 月~金:午前8時00分~午後6時 土日:午前10時00分~午後6時 /定休日:オンラインサービス:午前9時30分~午後9時
免許番号: 新潟県知事(1)第5629号
所属団体名: 公社 新潟県宅地建物取引協会 新潟支部
取引態様: 一般
ホームページ: https://bright-success.net/