新潟県上越市池180 中古一戸建て 7DK 13,000,000円の物件情報

☆敷地が広々とした田舎暮らし物件です☆

物件名/所在地 詳細 価格

新潟県上越市池180
  • 土地面積
    :1,439.53㎡ /435.45坪
  • 建物面積
    :188.72㎡ /57.08坪
  • 間取り
    :7DK
  • 築年月
    :1971年5月
13,000,000

  • 有限会社田村家具店
  • この物件を問い合わせる/無料
  • TEL: 025-523-2438 025-523-2438

物件画像

外観
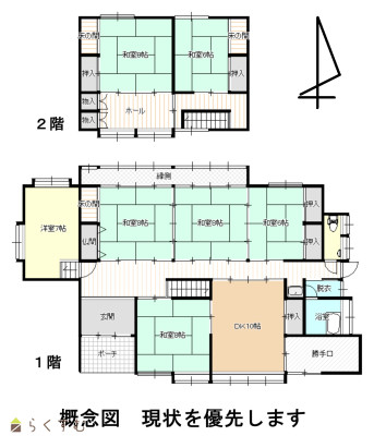
間取り
物件画像
※画像クリックで拡大表示
外観
物件画像
※画像クリックで拡大表示
間取り
詳細画像
物件画像
玄関
物件画像
和室
物件画像
和室
物件画像
和室
物件画像
和室
物件画像
洋室
物件画像
和室
物件画像
キッチン
物件画像
トイレ
物件画像
バスルーム
物件画像
脱衣所
物件画像
洗面所
物件画像
物件画像
倉庫
物件画像
前面道路を含む現地
物件画像
印刷用地図


物件概要

物件コード 00277-200458
物件名
交通 駅:妙高はねうまライン 上越妙高駅から徒歩72分
物件所在地 新潟県上越市池180
物件種別 中古一戸建て
構造 木造 階建 地上2階建
建ぺい率/容積率 70%/200%
建物面積 計 188.72㎡ /57.08坪
土地面積 1,439.53㎡ /435.45坪
築年月 1971年5月(築54年)
入居(引き渡し)時期 相談
用途地域 無指定 地目 宅地  (現状:宅地)
都市計画 市街化調整区域 学校区 上雲寺小学校(1,005m)・雄志中学校(2,076m)
形状 間口 31.5m 道路 西側約5.8m
私道 - その他の制限 -

  • 有限会社田村家具店
  • この物件を問い合わせる/無料
  • TEL: 025-523-2438 025-523-2438

物件詳細情報

所在階/階数 - 号室 -
販売価格 13,000,000円 方位
間取り 7DK (和室:6畳、6畳、8畳、8畳、8畳、8畳) (洋室:7)
DK7
専有面積 - バルコニー面積 -
その他面積 - 駐車場 -
管理費 - 修繕積立金 -
現況 空家
仲介手数料 495,000円
固定資産税 51,370円
年額の金額となります。
利用制限 -
設備 駐車3台以上可能、南向き、温水洗浄便座、エアコンあり、LPG、上水道、下水道、田舎暮らし
取引態様 一般
備考 ・敷地435坪!昔ながらの佇まいが魅力的な中古住宅です☆
・敷地内には蔵があり、古き良き雰囲気を倍増してくれます♪
・下水道にも接続されていて衛生的☆
・土地、建物、設備に関しては現状渡しです。

※本体代金に別途諸費用が掛かります。
取り扱い会社

有限会社田村家具店

新潟県上越市稲田4-5-21

情報登録日 2025/10/21 次回更新予定日 2026/01/04
取引条件有効期限 2035/12/31

  • 有限会社田村家具店
  • この物件を問い合わせる/無料
  • TEL: 025-523-2438 025-523-2438

この物件の地図・周辺情報・行政情報

この物件の周辺情報・行政情報を詳しく見る
【周辺情報】
物件の近くにあるコンビニや銀行・学校など、アイコン付のマップで詳しく表示できます!
【行政情報】
水道料や下水道料・ガス料金など、暮らしに関係のある情報を表示しています。

担当取扱い店舗情報

取扱い店舗画像
有限会社田村家具店
TEL: 025-523-2438
所在地: 新潟県上越市稲田4-5-21
交通: 高田駅
営業時間: 午前9:00~午後18:00/定休日:水曜日 第1、第3日曜日
免許番号: 新潟県知事(10)第2792号
所属団体名: 公社 新潟県宅地建物取引協会 上越支部
取引態様: 一般