新潟県妙高市桶海1017-2 中古マンション 1LDK 8,520,000円の物件情報

11階のお部屋です!アパホテル&リゾート上越妙高の大浴殿が利用できます。

物件名/所在地 詳細 価格
妙高パインバレーロジュマン
  号室
新潟県妙高市桶海1017-2
  • 専有面積
    :43.9㎡ /13.27坪
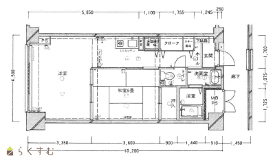
  • 間取り
    :1LDK
  • 築年月
    :1991年6月
8,520,000
  • 妙高パインバレーロジュマン
    楽栄不動産株式会社
  • この物件を問い合わせる/無料
  • TEL: 0255-72-0003 0255-72-0003

物件画像

外観
間取り
物件画像
※画像クリックで拡大表示
外観
物件画像
※画像クリックで拡大表示
間取り
詳細画像
物件画像
マンション内廊下
物件画像
リビング
物件画像
リビング
物件画像
景色
物件画像
キッチン
物件画像
トイレ
物件画像
洗面化粧台
物件画像
バスルーム
物件画像
コインランドリー
物件画像
製氷機(アネックス棟)
物件画像
印刷用地図


物件概要

会社の保養所にも最適です。
物件コード 00265-200183
物件名 妙高パインバレーロジュマン
交通 駅:妙高はねうまライン 関山駅から徒歩77分、バス:坂口新田から徒歩74分
物件所在地 新潟県妙高市桶海1017-2
物件種別 中古マンション
構造 鉄骨鉄筋コン 階建 地上14階地下1階建
建ぺい率/容積率 70%/200%
建物面積 計 10,306.56㎡ /3,117.73坪
土地面積 1,000.37㎡ /302.61坪
築年月 1991年6月(築34年)
入居(引き渡し)時期 相談
用途地域 無指定 地目 宅地
都市計画 非線引き都市計画区域 学校区 妙高小学校(4,615m)・妙高中学校(4,238m)
形状 - 道路 妙高市道
私道 - その他の制限 -
  • 妙高パインバレーロジュマン
    楽栄不動産株式会社
  • この物件を問い合わせる/無料
  • TEL: 0255-72-0003 0255-72-0003

物件詳細情報

所在階/階数 11階/14階 号室   号室
販売価格 8,520,000円 方位 -
間取り 1LDK (和室:6.0畳)
LDK16.8
専有面積 43.9㎡ /13.27坪 バルコニー面積 -
その他面積 - 駐車場 -
管理費 - 修繕積立金 -
現況 居住中
仲介手数料 347,160円
組合費他 2,311円
冷暖房基本料他 6,424円
利用制限 ペット:不可、楽器:不可
設備 10階建て以上、2階以上、洗濯機置き場、エレベーター、和室あり、管理人常駐(日中)、IHクッキングヒーター、温水洗浄便座、エアコン、公営水道、下水道、別荘
取引態様 一般
備考 フローリングとトイレはリフォーム済みです!シーズン使いに最適な1LDKのマンションです。部屋の窓からは妙高山を眺めることが出来、周辺には赤倉スキー場や苗名滝、上越海水浴場や長野の善光寺へも車で1時間で行くことができます。アパホテルでは、焚火や花火イベントも開催しています。夜は星空を眺め、時期や天候によっては、ホタルも見れるようです。
取り扱い会社

楽栄不動産株式会社

新潟県妙高市雪森645-1

情報登録日 2025/11/28 次回更新予定日 2025/12/25
取引条件有効期限 2025/12/31
  • 妙高パインバレーロジュマン
    楽栄不動産株式会社
  • この物件を問い合わせる/無料
  • TEL: 0255-72-0003 0255-72-0003

この物件の地図・周辺情報・行政情報

この物件の周辺情報・行政情報を詳しく見る
【周辺情報】
物件の近くにあるコンビニや銀行・学校など、アイコン付のマップで詳しく表示できます!
【行政情報】
水道料や下水道料・ガス料金など、暮らしに関係のある情報を表示しています。

担当取扱い店舗情報

取扱い店舗画像
楽栄不動産株式会社
TEL: 0255-72-0003
所在地: 新潟県妙高市雪森645-1
交通: 妙高はねうまライン北井駅
営業時間: 8時~17時/定休日:土・日・祝日、その他夏季・年末年始
免許番号: 新潟県知事(12)第2463号
所属団体名: 公社 新潟県宅地建物取引協会 上越支部
取引態様: 一般
ホームページ: https://rakuei.info/