新潟県上越市夷浜119番19 中古一戸建て 5LDK 5,000,000円の物件情報

保育園~中学校まで徒歩圏内。近隣に運動広場。海浜道路まで270m。

物件名/所在地 詳細 価格
夷浜売家・駐車場500万円
新潟県上越市夷浜119番19
  • 土地面積
    :500.02㎡ /151.25坪
  • 建物面積
    :171.94㎡ /52.01坪
  • 間取り
    :5LDK
  • 築年月
    :1979年9月
5,000,000
  • 夷浜売家・駐車場500万円
    信濃土地株式会社 上越支店
  • この物件を問い合わせる/無料
  • TEL: 070-6663-1348 070-6663-1348

物件画像

外観
間取り
物件画像
※画像クリックで拡大表示
南側の県道から住宅撮影
物件画像
※画像クリックで拡大表示
間取り
詳細画像
物件画像
前面道路から住宅撮影
物件画像
南側のドッグランと物置
物件画像
カーポート付の駐車場
物件画像
家から280mで海岸道路。釣りの名所
物件画像
案内図周辺施設
物件画像
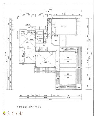
1階平面図
物件画像
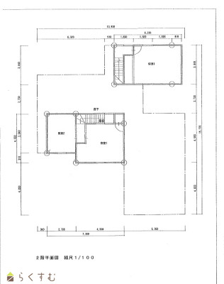
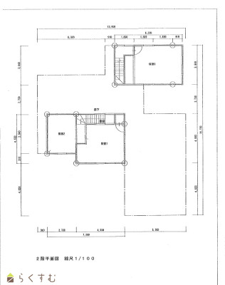
2階平面図
物件画像
地図画像


物件概要

LDKフルリフォーム済。
物件コード 00260-200046
物件名 夷浜売家・駐車場500万円
交通 駅:ほくほく線 犀潟駅から徒歩23分、バス:夷浜中から徒歩2分
物件所在地 新潟県上越市夷浜119番19
物件種別 中古一戸建て
構造 木造 階建 地上1階地下2階建
建ぺい率/容積率 60%/200%
建物面積 1階 142.13㎡/ 2階 29.81㎡/ 計 171.94㎡ /52.01坪
土地面積 500.02㎡ /151.25坪
築年月 1979年9月(築46年)
入居(引き渡し)時期 相談
用途地域 第1種中高層住居専用地域 地目 宅地  (現状:宅地)
都市計画 市街化区域 学校区 八千浦小学校(935m)・八千浦中学校(1,328m)
形状 間口 16m × 奥行 20m 道路 宅地部分私道幅員3.8m、市道幅員4m
私道 - その他の制限 法22条指定区域
  • 夷浜売家・駐車場500万円
    信濃土地株式会社 上越支店
  • この物件を問い合わせる/無料
  • TEL: 070-6663-1348 070-6663-1348

物件詳細情報

所在階/階数 - 号室 -
販売価格 5,000,000円 方位
間取り 5LDK (和室:8畳、8畳) (洋室:10、9、6)
LDK26
専有面積 - バルコニー面積 -
その他面積 - 駐車場 -
管理費 - 修繕積立金 -
現況 空家
仲介手数料 330,000円
利用制限 -
設備 日当り良好、閑静な住宅街、スーパー近く、LDK15帖以上、駐車3台以上可能、南向き、システムキッチン、3口コンロ、追いだき機能付き、バス1坪以上、温水洗浄便座、シャワー付き洗面台、エアコンあり、省エネ給湯機、ウッドデッキ・テラス、都市ガス、上水道、浄化槽、2世帯向き、即引き渡し可能
取引態様 専任
備考 建物南側は道路と共有耕作の畑が広がり、県道まで眺望が広がり開放的です。
取り扱い会社

信濃土地株式会社 上越支店

新潟県上越市大豆1-8-1グランディールビル

情報登録日 2025/11/22 次回更新予定日 2025/12/22
取引条件有効期限 2024/11/09
  • 夷浜売家・駐車場500万円
    信濃土地株式会社 上越支店
  • この物件を問い合わせる/無料
  • TEL: 070-6663-1348 070-6663-1348

この物件の地図・周辺情報・行政情報

この物件の周辺情報・行政情報を詳しく見る
【周辺情報】
物件の近くにあるコンビニや銀行・学校など、アイコン付のマップで詳しく表示できます!
【行政情報】
水道料や下水道料・ガス料金など、暮らしに関係のある情報を表示しています。

担当取扱い店舗情報

取扱い店舗画像
信濃土地株式会社 上越支店
TEL: 070-6663-1348
所在地: 新潟県上越市大豆1-8-1グランディールビル
交通: 妙高はねうまライン春日山駅
営業時間: 10:00~17:00/定休日:水曜日
免許番号: 新潟県知事(12)第2097号
所属団体名: 公社 新潟県宅地建物取引協会 上越支部
取引態様: 専任
ホームページ: http://www.sinano-tochi.co.jp/