新潟県上越市吉川区神田町1771-1 中古一戸建て 10LDK 8,000,000円の物件情報

物件名/所在地 詳細 価格
吉川区神田町売家
新潟県上越市吉川区神田町1771-1
  • 土地面積
    :2,156.68㎡ /652.39坪
  • 建物面積
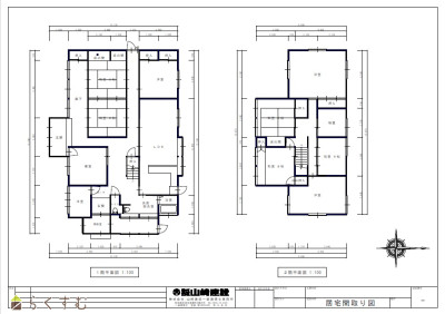
    :201.29㎡ /60.89坪
  • 間取り
    :10LDK
  • 築年月
    :1973年10月
8,000,000
  • 吉川区神田町売家
    株式会社山崎建設
  • この物件を問い合わせる/無料
  • TEL: 0255-72-3129 0255-72-3129

物件画像

外観
間取り
物件画像
※画像クリックで拡大表示
外観
物件画像
※画像クリックで拡大表示
間取り
詳細画像
物件画像
玄関
物件画像
和室
物件画像
和室
物件画像
キッチン
物件画像
バスルーム
物件画像
トイレ
物件画像
洗面所
物件画像
洋室
物件画像
洋室
物件画像
駐車場
物件画像
倉庫
物件画像
印刷用地図


物件概要

物件コード 00259-200079
物件名 吉川区神田町売家
交通 駅:ほくほく線 くびき駅から徒歩52分、バス:神田町から徒歩4分
物件所在地 新潟県上越市吉川区神田町1771-1
物件種別 中古一戸建て
構造 木造 階建 地上2階建
建ぺい率/容積率 -
建物面積 1階 161.21㎡/ 2階 40.08㎡/ 計 201.29㎡ /60.89坪
土地面積 2,156.68㎡ /652.39坪
築年月 1973年10月(築52年)
入居(引き渡し)時期 随時入居(引き渡し)可
用途地域 無指定 地目 宅地  (現状:宅地)
都市計画 都市計画区域外 学校区 吉川小学校(1,811m)・吉川中学校(2,149m)
形状 間口 30m × 奥行 80m 道路 南側6.0m
私道 - その他の制限 -
  • 吉川区神田町売家
    株式会社山崎建設
  • この物件を問い合わせる/無料
  • TEL: 0255-72-3129 0255-72-3129

物件詳細情報

所在階/階数 - 号室 -
販売価格 8,000,000円 方位 -
間取り 10LDK
専有面積 - バルコニー面積 -
その他面積 - 駐車場 -
管理費 - 修繕積立金 -
現況 空家
仲介手数料 330,000円
利用制限 -
設備 -
取引態様 専任
備考 -
取り扱い会社

株式会社山崎建設

新潟県妙高市東陽町2-20

情報登録日 2026/01/06 次回更新予定日 2026/05/16
取引条件有効期限 2026/04/06
  • 吉川区神田町売家
    株式会社山崎建設
  • この物件を問い合わせる/無料
  • TEL: 0255-72-3129 0255-72-3129

この物件の地図・周辺情報・行政情報

この物件の周辺情報・行政情報を詳しく見る
【周辺情報】
物件の近くにあるコンビニや銀行・学校など、アイコン付のマップで詳しく表示できます!
【行政情報】
水道料や下水道料・ガス料金など、暮らしに関係のある情報を表示しています。

担当取扱い店舗情報

取扱い店舗画像
株式会社山崎建設
TEL: 0255-72-3129
所在地: 新潟県妙高市東陽町2-20
交通: えちごトキめき鉄道 新井駅から徒歩25分
営業時間: 8:00〜17:00/定休日:土日祝日
免許番号: 新潟県知事(8)第3467号
所属団体名: 公益社団法人新潟県宅地建物取引協会 上越支部
取引態様: 専任
ホームページ: https://www.yamazaki-k.co.jp/concept/