新潟県長岡市豊1丁目7-12 中古一戸建て 6LDK 21,000,000円の物件情報

【幼稚園・学校・商業施設・バイパスが徒歩圏、本格的な和風庭園付き邸宅】 ■北東角地×前面道路6m、消雪パイプ有 ■敷地面積約102坪 ■敷地内には風情ある和風庭園

物件名/所在地 詳細 価格
長岡市豊 戸建
新潟県長岡市豊1丁目7-12
  • 土地面積
    :338㎡ /102.24坪
  • 建物面積
    :203.33㎡ /61.5坪
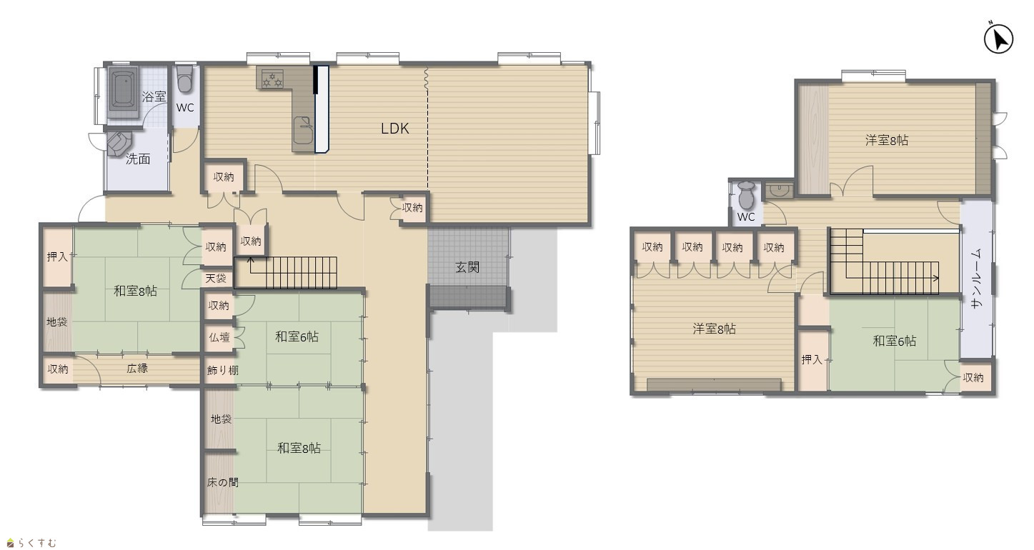
  • 間取り
    :6LDK
  • 築年月
    :1983年7月
21,000,000
  • 長岡市豊 戸建
    新潟土地建物販売センター 株式会社
  • この物件を問い合わせる/無料
  • TEL: 0258-89-8245 0258-89-8245

物件画像

外観
間取り
物件画像
※画像クリックで拡大表示
美しい庭木と門構えが和の風情を感じさせる落ち着いた住まい。
物件画像
※画像クリックで拡大表示
全室ゆとりある広さがあり、和室が4部屋ある落ち着いた住まい。
詳細画像
物件画像
広々としたLDKは、家族団らんなどゆとりをもって過ごせる空間
物件画像
カーテンで空間を区切れ、用途に応じた柔軟な使い方が可能です。
物件画像
収納スペースが豊富なキッチン!
物件画像
コーナー洗面台で空間を広くお使いいただけます。
物件画像
窓があるので換気もでき、湿気対策にも◎
物件画像
各階トイレがあるので安心ですね。
物件画像
1階和室8帖 隣接する6帖和室と続き間で、より広々♪
物件画像
1階和室6帖 仏間がある落ち着いた和室です。
物件画像
1階和室8帖 広縁がついた明るく開放的な和室。
物件画像
2階洋室 ベッドなどの大きな家具を置いても広々としております
物件画像
大きな窓が印象的な2階洋室は、開放感と採光に優れた快適空間
物件画像
2階和室6帖 押入・収納スペースが付き。
物件画像
サンルーム付きで、天候や時間を気にせずに洗濯物が干せます。
物件画像
開放感ある2階ホールから、吹抜けを通して玄関へ光が届きます。
物件画像
格子戸や木の風合いが美しい、落ち着きある和の玄関。
物件画像
石畳と植栽が織りなす、四季を感じる和風庭園。
物件画像
駐車1台可能な車庫付き
物件画像
東側6.1m市道、北側6m市道 どちらも消雪パイプ完備


物件概要

幼稚園・小中学校・商業施設・長岡バイパスまでもがすべて徒歩圏内に揃った好立地!庭には美しく剪定された松や緑豊かな植栽が配置され、四季折々の風情を楽しむことができます。お気軽にお問い合わせください♪
物件コード 00239-200580
物件名 長岡市豊 戸建
交通 駅:信越線 北長岡駅から徒歩22分、バス:豊町から徒歩4分
物件所在地 新潟県長岡市豊1丁目7-12
物件種別 中古一戸建て
構造 木造 階建 地上2階建
建ぺい率/容積率 70%/200%
建物面積 1階 133.55㎡/ 2階 69.78㎡/ 計 203.33㎡ /61.5坪
土地面積 338㎡ /102.24坪
築年月 1983年7月(築42年)
入居(引き渡し)時期 随時入居(引き渡し)可
用途地域 第1種中高層住居専用地域 地目 宅地
都市計画 市街化区域 学校区 川崎東小学校(350m)・東北中学校(450m)
形状 間口 16m × 奥行 22m 道路 東側6.1m市道、北側6.0m市道
私道 - その他の制限 第二種高度地区/日影制限/法22条/まちなか居住区域/斜線制限(道路・隣地・北側)
  • 長岡市豊 戸建
    新潟土地建物販売センター 株式会社
  • この物件を問い合わせる/無料
  • TEL: 0258-89-8245 0258-89-8245

物件詳細情報

所在階/階数 - 号室 -
販売価格 21,000,000円 方位 南東
間取り 6LDK
専有面積 - バルコニー面積 -
その他面積 - 駐車場 -
管理費 - 修繕積立金 -
現況 空家
仲介手数料 759,000円
利用制限 -
設備 角地、日当り良好、閑静な住宅街、スーパー近く、駐車場融雪設備あり、2口コンロ、ガスコンロ設置済み、追いだき機能付き、温水洗浄便座、トイレ2か所以上、エアコンあり、ウッドデッキ・テラス、都市ガス、上水道、下水道、床下収納、シューズBOX、即引き渡し可能
取引態様 一般
備考 【教育機関】
川崎東小学校 約350m 徒歩約5分
東北中学校 約450m 徒歩約6分

【交通機関】
JR信越本線 北長岡駅 徒歩約22分
越後交通バス 豊町 徒歩約4分

【お引渡し条件】
※売主契約不適合責任免責
※現況有姿引渡し

【備考】
※間口と奥行は手測量に基づく寸法の為、実際の寸法と異なる可能性があります
※残置物は売主負担で撤去
※消雪組合加入必要:24,000円/年
※シロアリ駆除工事:2022年1月11日実施済(5年間の保証有)

-物件情報-
■敷地広々約102坪・建物約61坪、6LDKのゆとりある住まい
■エアコン付きで初期費用の軽減
■天候を気にせず洗濯物が干せるサンルーム付き
取り扱い会社

新潟土地建物販売センター 株式会社

新潟県長岡市台町1-7-331階

情報登録日 2025/09/04 次回更新予定日 2026/05/16
取引条件有効期限 2026/12/31
  • 長岡市豊 戸建
    新潟土地建物販売センター 株式会社
  • この物件を問い合わせる/無料
  • TEL: 0258-89-8245 0258-89-8245

この物件の地図・周辺情報・行政情報

この物件の周辺情報・行政情報を詳しく見る
【周辺情報】
物件の近くにあるコンビニや銀行・学校など、アイコン付のマップで詳しく表示できます!
【行政情報】
水道料や下水道料・ガス料金など、暮らしに関係のある情報を表示しています。
セブン-イレブン 長岡永田店(コンビニ)まで650m
良食生活館 川崎店(スーパー)まで130m
ドラッグ・トップス 川崎店(ドラッグストア)まで430m

※カメラのアイコンがある場合は、マウスをポイントするとその施設の画像がご覧いただけます。


担当取扱い店舗情報

取扱い店舗画像
新潟土地建物販売センター 株式会社
TEL: 0258-89-8245
所在地: 新潟県長岡市台町1-7-331階
交通: 長岡駅
営業時間: 9:00~18:00/定休日:なし
免許番号: 新潟県知事(3)第5151号
所属団体名: 公社 新潟県宅地建物取引協会 新潟支部
取引態様: 一般
ホームページ: https://niigata-tochitate.jp/