新潟県柏崎市安田4112-1 投資物件・その他 98,000,000円の物件情報

売工場(食品工場)すぐ使用できます。

物件名/所在地 詳細 価格
表面利回り
柏崎市安田 売工場(食品工業)
新潟県柏崎市安田4112-1
  • 土地面積
    :7,873.98㎡ /2,381.87坪
  • 建ぺい率
    :70%
  • 容積率
    :200%
98,000,000
-
  • 柏崎市安田 売工場(食品工業)
    リメイク株式会社
  • この物件を問い合わせる/無料
  • TEL: 0257-41-6381 0257-41-6381

物件画像

外観
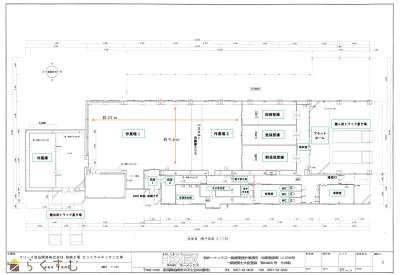
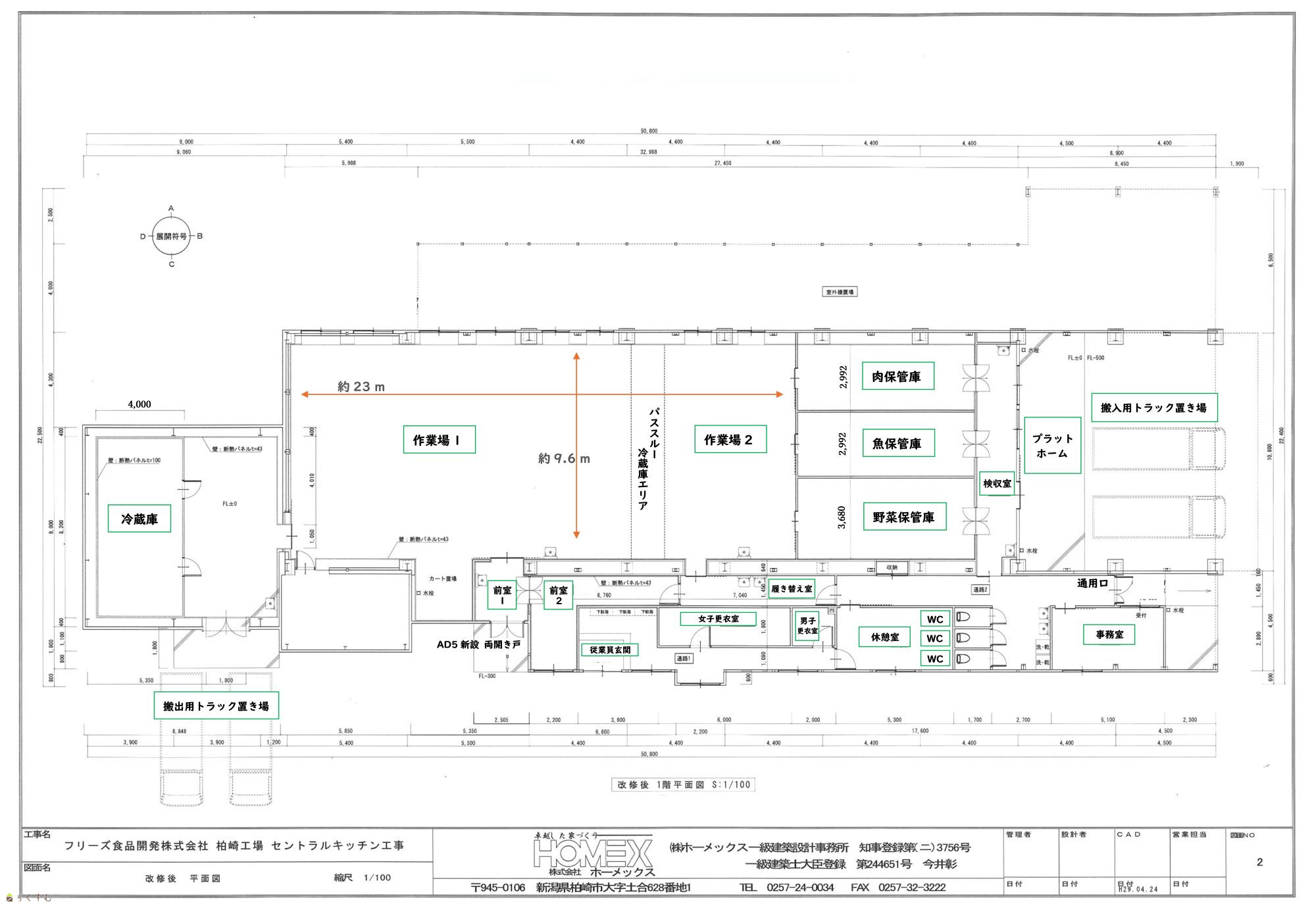
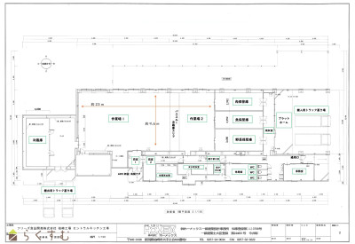
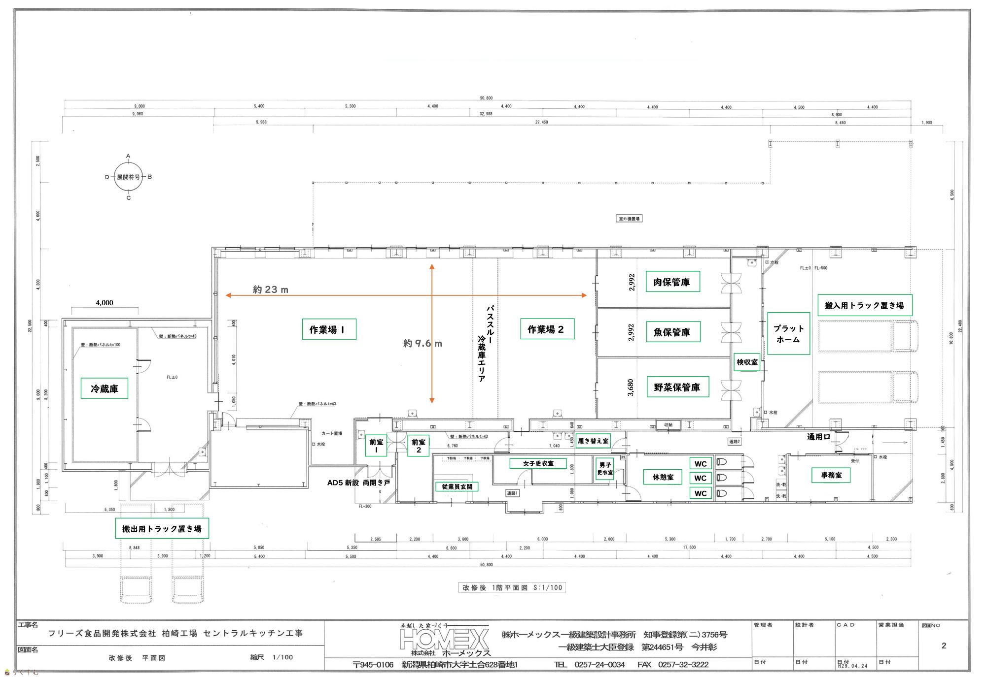
間取り
物件画像
※画像クリックで拡大表示
外観1
物件画像
※画像クリックで拡大表示
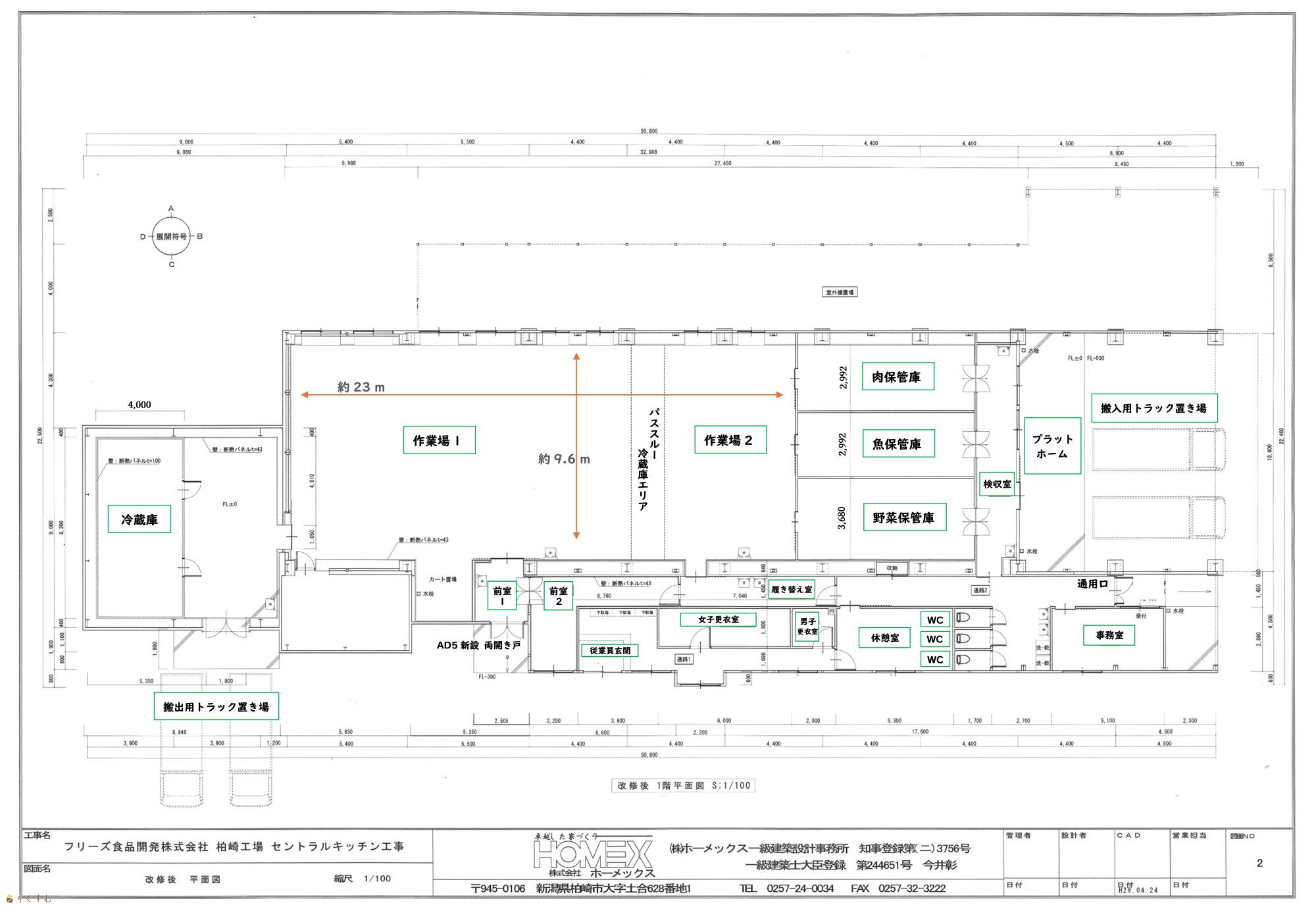
平面図
詳細画像
物件画像
出荷場
物件画像
受入れ
物件画像
別棟作業場
物件画像
駐車スペース
物件画像
事務所スペース
物件画像
トイレ
物件画像
サニタリー
物件画像
休憩室
物件画像
受入れスペース
物件画像
保管庫1
物件画像
保管庫2
物件画像
調理室1
物件画像
調理室2
物件画像
パスツルー冷蔵庫
物件画像
調理室3
物件画像
調理室4
物件画像
調理室5
物件画像
出荷室
物件画像
プレハブ冷凍庫
物件画像
地図画像


物件概要

調理用什器一式含みます。
物件コード 00227-200075
物件名 柏崎市安田 売工場(食品工業)
交通 駅:信越線 安田駅から徒歩28分、バス:平井から徒歩3分
物件所在地 新潟県柏崎市安田4112-1
物件種別 投資物件・その他
物件区分 その他
構造 鉄骨 階建 地上1階建
建ぺい率/容積率 70%/200%
建物面積 -
土地面積 7,873.98㎡ /2,381.87坪
築年月 1974年4月(築52年)
入居(引き渡し)時期 随時入居(引き渡し)可
用途地域 無指定 地目 宅地  (現状:宅地)
都市計画 非線引き都市計画区域 学校区 田尻小学校(806m)・東中学校(563m)
形状 - 道路 柏崎市道
私道 - その他の制限 -
  • 柏崎市安田 売工場(食品工業)
    リメイク株式会社
  • この物件を問い合わせる/無料
  • TEL: 0257-41-6381 0257-41-6381

物件詳細情報

所在階/階数 - 号室 -
販売価格 98,000,000円 方位 -
表面利回り(満室想定時) - 満室想定年収 - (想定月収: - )
現行利回り - 現行年間年収 -
住戸数 -
間取り -
専有面積 - バルコニー面積 -
その他面積 - 駐車場 -
管理費 - 修繕積立金 -
現況 空家
仲介手数料 3,300,000円
利用制限 -
設備 南側道路面す、公営水道、LPG、下水道、事業向け
取引態様 一般
備考 売工場(食品工場)冷凍加工食品
令和6年7月末まで稼働。すぐ使用できます。
全館空調、プレハブ冷凍庫、パスツルー冷蔵庫、エアカーテン、オゾン殺菌、調理用什器一式含みます。
駐車20台以上可能。
別棟の作業場あり。(空調有)
取り扱い会社

リメイク株式会社

新潟県柏崎市土合615番地

情報登録日 2024/09/17 次回更新予定日 2026/05/30
取引条件有効期限 2024/12/17
  • 柏崎市安田 売工場(食品工業)
    リメイク株式会社
  • この物件を問い合わせる/無料
  • TEL: 0257-41-6381 0257-41-6381

この物件の地図・周辺情報・行政情報

この物件の周辺情報・行政情報を詳しく見る
【周辺情報】
物件の近くにあるコンビニや銀行・学校など、アイコン付のマップで詳しく表示できます!
【行政情報】
水道料や下水道料・ガス料金など、暮らしに関係のある情報を表示しています。

担当取扱い店舗情報

取扱い店舗画像
リメイク株式会社
TEL: 0257-41-6381
所在地: 新潟県柏崎市土合615番地
交通:
営業時間: 8:30~17:30/定休日:土日年末年始・夏季など
免許番号: 新潟県知事(2)第5472号
所属団体名: 公社新潟県宅地建物取引業協会 柏崎支部
取引態様: 一般
ホームページ: https://remake-kabu.com/