新潟県柏崎市北条1260-1 他 中古一戸建て 6DK 3,000,000円の物件情報

色々な用途に利用可能

物件名/所在地 詳細 価格
北条売り物件
新潟県柏崎市北条1260-1 他
  • 土地面積
    :819㎡ /247.74坪
  • 建物面積
    :328.64㎡ /99.41坪
  • 間取り
    :6DK
  • 築年月
    :1968年11月
3,000,000
  • 北条売り物件
    リメイク株式会社
  • この物件を問い合わせる/無料
  • TEL: 0257-41-6381 0257-41-6381

物件画像

外観
間取り
物件画像
※画像クリックで拡大表示
店舗・居宅 全景1
物件画像
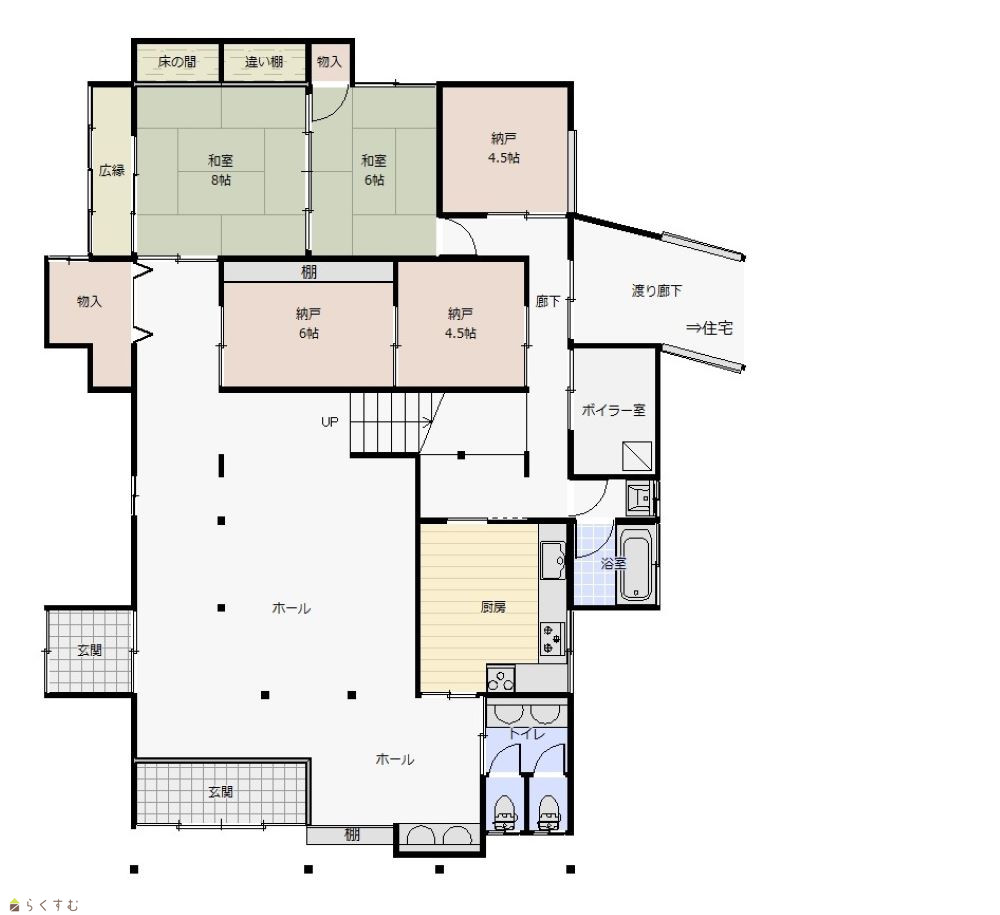
※画像クリックで拡大表示
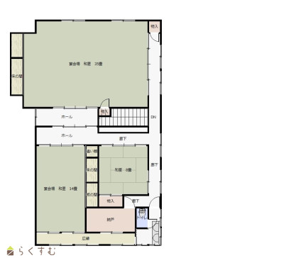
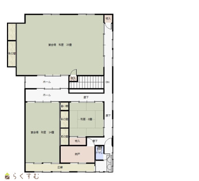
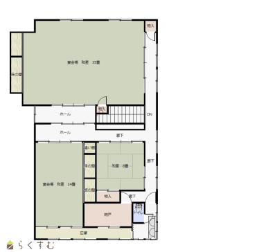
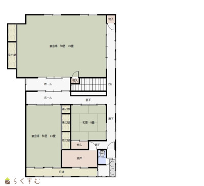
店舗・居宅 1F図面
詳細画像
物件画像
店舗・居宅2F図面
物件画像
住宅 1F図面
物件画像
住宅 2F図面
物件画像
店舗・居宅 玄関
物件画像
店舗・居宅 全景2
物件画像
居宅 全景1
物件画像
店舗 ホール1
物件画像
店舗ホール2
物件画像
店舗 トイレ
物件画像
店舗・居宅 浴室
物件画像
温水器
物件画像
和室
物件画像
キッチン
物件画像
階段
物件画像
宴会場
物件画像
2階和室 宴会


物件概要

物件コード 00227-200068
物件名 北条売り物件
交通 駅:信越線 北条駅から徒歩3分、バス:北条駅から徒歩3分
物件所在地 新潟県柏崎市北条1260-1 他
物件種別 中古一戸建て
構造 木造 階建 地上2階建
建ぺい率/容積率 -
建物面積 1階 167.99㎡/ 2階 160.07㎡/ 計 328.64㎡ /99.41坪
土地面積 819㎡ /247.74坪
築年月 1968年11月(築57年)
入居(引き渡し)時期 随時入居(引き渡し)可
用途地域 用途の指定のない地域 地目 宅地・田  (現状:宅地)
都市計画 都市計画区域外 学校区 北条小学校(818m)・北条中学校(910m)
形状 - 道路 柏崎市道
私道 - その他の制限 -
  • 北条売り物件
    リメイク株式会社
  • この物件を問い合わせる/無料
  • TEL: 0257-41-6381 0257-41-6381

物件詳細情報

所在階/階数 - 号室 -
販売価格 3,000,000円 方位
間取り 6DK
敷地内建物2棟 (①店舗・居宅 ②居宅)
専有面積 - バルコニー面積 -
その他面積 - 駐車場 -
管理費 - 修繕積立金 -
現況 空家
仲介手数料 154,000円
利用制限 -
設備 駐車3台以上可能、システムキッチン、バス1坪以上、トイレ2か所以上、都市ガス、上水道、下水道、即引き渡し可能、別荘、田舎暮らし、事業向け
取引態様 一般
備考 敷地内に建物が2棟あります。
①店舗・居宅 延べ面積328.64㎡ 仕出し・宴会場、居宅として以前使用 S.43新築
②居宅 延べ面積110.12㎡ S.52新築
*建物内残物は売主において処分します。
取り扱い会社

リメイク株式会社

新潟県柏崎市土合615番地

情報登録日 2024/01/10 次回更新予定日 2026/04/14
取引条件有効期限 2024/04/10
  • 北条売り物件
    リメイク株式会社
  • この物件を問い合わせる/無料
  • TEL: 0257-41-6381 0257-41-6381

この物件の地図・周辺情報・行政情報

この物件の周辺情報・行政情報を詳しく見る
【周辺情報】
物件の近くにあるコンビニや銀行・学校など、アイコン付のマップで詳しく表示できます!
【行政情報】
水道料や下水道料・ガス料金など、暮らしに関係のある情報を表示しています。

担当取扱い店舗情報

取扱い店舗画像
リメイク株式会社
TEL: 0257-41-6381
所在地: 新潟県柏崎市土合615番地
交通:
営業時間: 8:30~17:30/定休日:土日年末年始・夏季など
免許番号: 新潟県知事(2)第5472号
所属団体名: 公社新潟県宅地建物取引業協会 柏崎支部
取引態様: 一般
ホームページ: https://remake-kabu.com/