新潟県長岡市与板町与板459番地 中古一戸建て 12DK 8,000,000円の物件情報

与板のまちの中心地に建つ店舗併用住宅です。

物件名/所在地 詳細 価格
与板町与板店舗併用住宅
新潟県長岡市与板町与板459番地
  • 土地面積
    :436.32㎡ /131.98坪
  • 建物面積
    :326.4㎡ /98.73坪
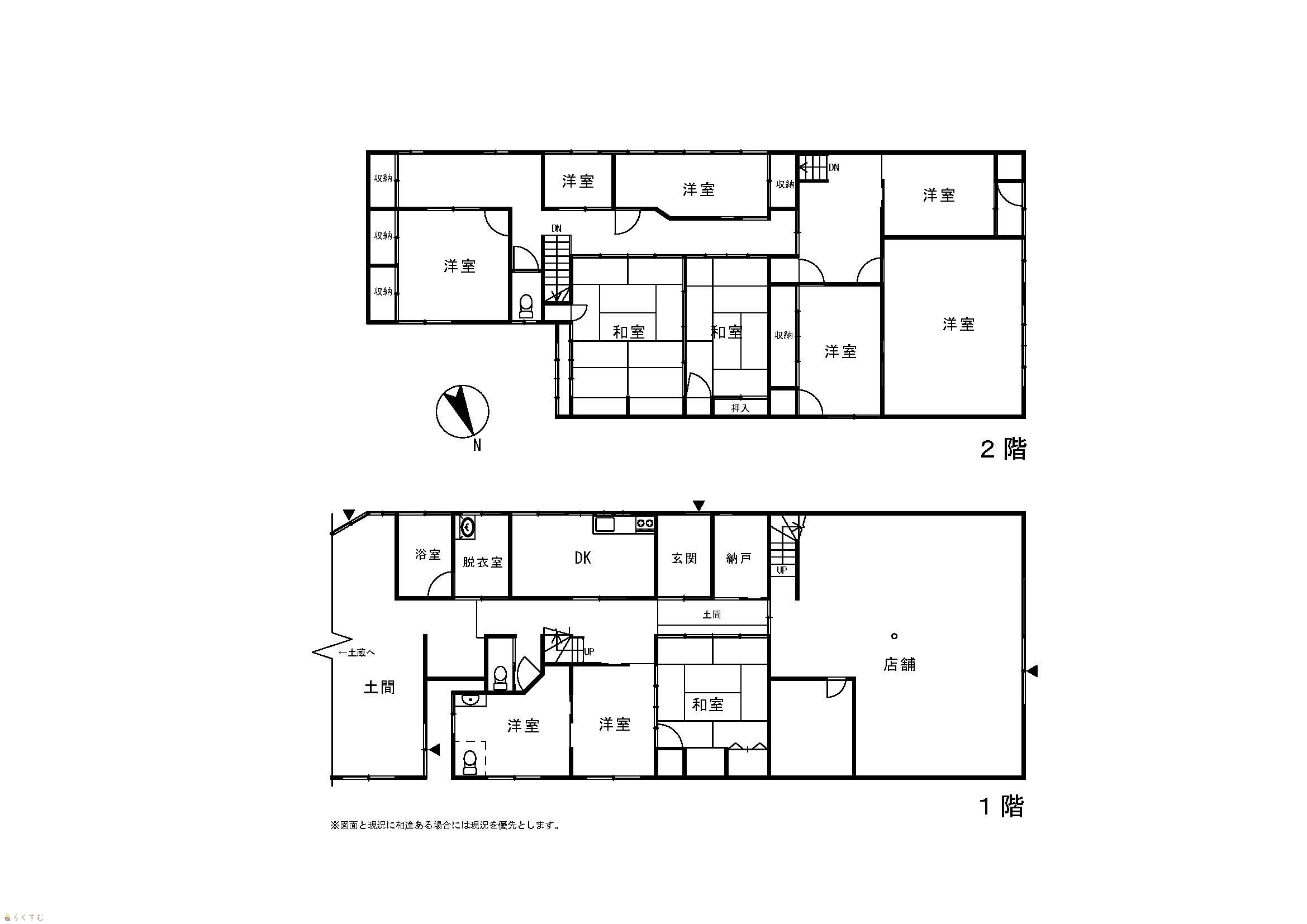
  • 間取り
    :12DK
  • 築年月
    :1935年1月
8,000,000
  • 与板町与板店舗併用住宅
    (株)池田組 
  • この物件を問い合わせる/無料
  • TEL: 0258-84-7781 0258-84-7781

物件画像

外観
間取り
物件画像
※画像クリックで拡大表示
外観
物件画像
※画像クリックで拡大表示
間取り図
詳細画像
物件画像
2階和室
物件画像
1階和室
物件画像
ダイニング
物件画像
キッチン
物件画像
2階洋室
物件画像
浴室
物件画像
洗面脱衣室
物件画像
トイレ
物件画像
物件画像
2階廊下
物件画像
店舗部分
物件画像
1階廊下


物件概要

与板のまちの中心地に建つ店舗併用住宅です。住居部分は通り土間があり、古民家の趣が感じられます。
物件コード 00192-200015
物件名 与板町与板店舗併用住宅
交通 駅:越後線 小島谷駅から徒歩81分、バス:与板仲町から徒歩3分
物件所在地 新潟県長岡市与板町与板459番地
物件種別 中古一戸建て
構造 木造 階建 地上2階建
建ぺい率/容積率 80%/400%
建物面積 1階 173.12㎡/ 2階 153.28㎡/ 計 326.4㎡ /98.73坪
土地面積 436.32㎡ /131.98坪
築年月 1935年1月(築91年)
入居(引き渡し)時期 相談
用途地域 商業地域 地目 宅地  (現状:宅地)
都市計画 市街化区域 学校区 与板小学校(428m)・与板中学校(542m)
形状 間口 14m × 奥行 29m 道路 西側幅員14.9m(歩道含む)
私道 - その他の制限 準防火地域
  • 与板町与板店舗併用住宅
    (株)池田組 
  • この物件を問い合わせる/無料
  • TEL: 0258-84-7781 0258-84-7781

物件詳細情報

所在階/階数 - 号室 -
販売価格 8,000,000円 方位 西
間取り 12DK
店舗スペースあり
専有面積 - バルコニー面積 -
その他面積 - 駐車場 -
管理費 - 修繕積立金 -
現況 空家
仲介手数料 330,000円
利用制限 -
設備 駐車2台可能、システムキッチン、トイレ2か所以上、都市ガス、上水道、下水道、2世帯向き、事業向け
取引態様 一般
備考 ・土地面積は売買対象の土地4筆を合計したものです。
・付属建物に土蔵、物置、車庫、カーポートがあります。
・現況有姿での引き渡しとなります。
取り扱い会社

(株)池田組 

新潟県長岡市中島3-8-5

情報登録日 2024/12/16 次回更新予定日 2026/05/16
取引条件有効期限 2025/03/13
  • 与板町与板店舗併用住宅
    (株)池田組 
  • この物件を問い合わせる/無料
  • TEL: 0258-84-7781 0258-84-7781

この物件の地図・周辺情報・行政情報

この物件の周辺情報・行政情報を詳しく見る
【周辺情報】
物件の近くにあるコンビニや銀行・学校など、アイコン付のマップで詳しく表示できます!
【行政情報】
水道料や下水道料・ガス料金など、暮らしに関係のある情報を表示しています。
マルイ 与板店(スーパー)まで910m
第四北越銀行 与板支店(銀行)まで30m
大光銀行 与板支店(銀行)まで370m
与板郵便局(郵便局)まで120m

※カメラのアイコンがある場合は、マウスをポイントするとその施設の画像がご覧いただけます。


担当取扱い店舗情報

取扱い店舗画像
(株)池田組 
TEL: 0258-84-7781
所在地: 新潟県長岡市中島3-8-5
交通: 長岡駅
営業時間: 8:00~17:00/定休日:日曜、祝日、第2・4土曜
免許番号: 新潟県知事(5)第4552号
所属団体名: 公社 新潟県宅地建物取引協会 長岡支部
取引態様: 一般
ホームページ: https://www.kakigawa.com/