新潟県長岡市金町1丁目4 新築一戸建て 3LDK 28,000,000円の物件情報

栃尾支所、トチオ―レに近い3LDKの家。1階の内装はヒノキ無垢材を多用しています。

物件名/所在地 詳細 価格
金町新築住宅
新潟県長岡市金町1丁目4
  • 土地面積
    :199.53㎡ /60.35坪
  • 建物面積
    :110.16㎡ /33.32坪
  • 間取り
    :3LDK
  • 築年月
    :2024年11月
28,000,000
  • 金町新築住宅
    村山ハウス(株)
  • この物件を問い合わせる/無料
  • TEL: 0258-53-2552 0258-53-2552

物件画像

外観
間取り
物件画像
※画像クリックで拡大表示
外観
物件画像
※画像クリックで拡大表示
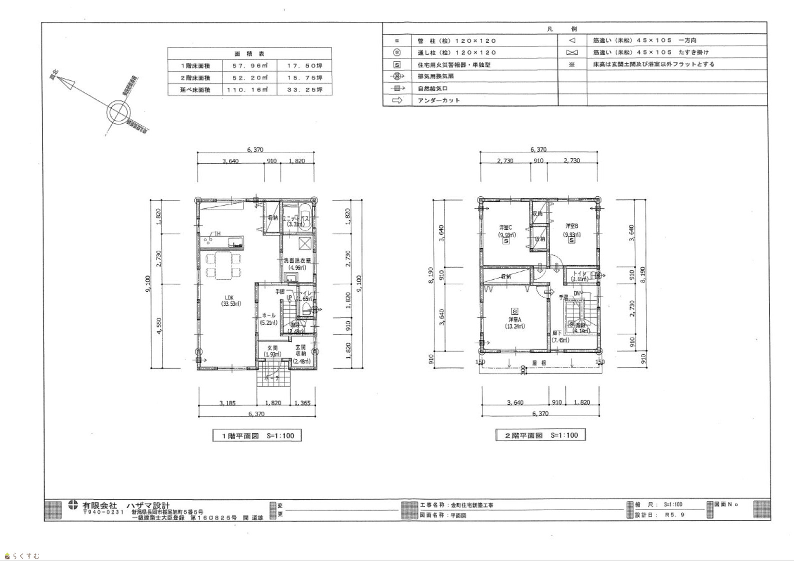
平面図
詳細画像


物件概要

日当たりが良く広々とした20帖のLDKをご体感ください。
物件コード 00189-200043
物件名 金町新築住宅
交通 駅:信越線 押切駅から徒歩152分、バス:栃尾車庫前から徒歩5分
物件所在地 新潟県長岡市金町1丁目4
物件種別 新築一戸建て
構造 木造 階建 地上2階建
建ぺい率/容積率 60%/200%
建物面積 1階 57.96㎡/ 2階 52.2㎡/ 計 110.16㎡ /33.32坪
土地面積 199.53㎡ /60.35坪
築年月 2024年11月(築1年)
入居(引き渡し)時期 相談
用途地域 第2種住居地域 地目 宅地
都市計画 市街化区域 学校区 栃尾東小学校(568m)・刈谷田中学校(1,343m)
形状 間口 12m × 奥行 16.5m 道路 公道
私道 - その他の制限 -
  • 金町新築住宅
    村山ハウス(株)
  • この物件を問い合わせる/無料
  • TEL: 0258-53-2552 0258-53-2552

物件詳細情報

所在階/階数 - 号室 -
販売価格 28,000,000円 方位 南西
間取り 3LDK (洋室:8、6、6)
LDK20
専有面積 - バルコニー面積 -
その他面積 - 駐車場 -
管理費 - 修繕積立金 -
現況 空家
仲介手数料 990,000円
利用制限 -
設備 角地、整形地、前面道路6m以上、日当り良好、閑静な住宅街、BELS/省エネ基準適合認定建物、LDK15畳以上、駐車場2台以上、TVインターホン、複層ガラス、ディンプルキー、システムキッチン、IHクッキングヒーター、食器洗浄乾燥機、3口コンロ、追いだき機能付き、浴室暖房乾燥機、バス1坪以上、温水洗浄便座、シャワー付き洗面台、エアコン、オール電化、省エネ給湯、上水道、下水道、電気、全居室収納あり、シューズインクローゼット、BS端子、照明器具付き、即引き渡し可能
取引態様 売主
備考 BELS/ZEHオリエンテッド取得物件です。
取り扱い会社

村山ハウス(株)

新潟県長岡市新栄町3-4-3

情報登録日 2025/01/12 次回更新予定日 2026/05/15
取引条件有効期限 2025/03/31
  • 金町新築住宅
    村山ハウス(株)
  • この物件を問い合わせる/無料
  • TEL: 0258-53-2552 0258-53-2552

この物件の地図・周辺情報・行政情報

この物件の周辺情報・行政情報を詳しく見る
【周辺情報】
物件の近くにあるコンビニや銀行・学校など、アイコン付のマップで詳しく表示できます!
【行政情報】
水道料や下水道料・ガス料金など、暮らしに関係のある情報を表示しています。

担当取扱い店舗情報

取扱い店舗画像
村山ハウス(株)
TEL: 0258-53-2552
所在地: 新潟県長岡市新栄町3-4-3
交通:
営業時間: 9:00~18:00/定休日:水曜日
免許番号: 新潟県知事(5)第4082号
所属団体名: 公社 新潟県宅地建物取引業協会 長岡支部
取引態様: 売主