新潟県長岡市陽光台4丁目1379-118 新築一戸建て 3LDK 43,000,000円の物件情報

【10/1~大幅価格改定!!】4,800万円→4,300万円   ◆形態と機能がひとつになった、シンプルで美しい住まい

物件名/所在地 詳細 価格
陽光台モデルハウス【ホリゾンタル】見学可
新潟県長岡市陽光台4丁目1379-118
  • 土地面積
    :205.97㎡ /62.3坪
  • 建物面積
    :118.7㎡ /35.9坪
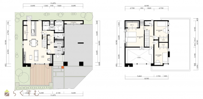
  • 間取り
    :3LDK
  • 築年月
    :2021年10月
43,000,000
  • 陽光台モデルハウス【ホリゾンタル】見学可
    株式会社 空間クリエイティブ
  • この物件を問い合わせる/無料
  • TEL: 0258-38-5488 0258-38-5488

物件画像

外観
間取り
物件画像
※画像クリックで拡大表示
伸びやかな水平ラインを強調した、心安らぐ安定感のある外観
物件画像
※画像クリックで拡大表示
詳細画像
物件画像
決して色褪せることのない、流行に左右されないデザイン
物件画像
幻想的な光が美しさを引き立てる
物件画像
外壁と同じタイルを玄関内にも採用
物件画像
自然光をたっぷりと採り込み、明るく開放感に包まれるLDK
物件画像
高さにメリハリをつけることで空間をより広く感じることが出来る
物件画像
家族が顔を合わせやすいリビング階段
物件画像
天井に無垢の木をあしらい、上質な雰囲気を楽しめる
物件画像
リビングの壁は天然石を模したデザインウォール
物件画像
落ち着いたコーディネートで色褪せることのない美しさを創出
物件画像
見せる収納を楽しめる造作カウンター
物件画像
非日常を感じることのできるホテルライクな洗面
物件画像
光と影が織りなす美しさも計算に入れて設計
物件画像
アクセントクロスが特徴的な2階トイレ
物件画像
ダーク色でまとめ上げたシックな浴室
物件画像
外との繋がりを感じることのできるウッドデッキ
物件画像
視界が斜めに抜ける特徴的な窓
物件画像
間接照明で主寝室に特別感を
物件画像
インナーガレージ直結型の玄関


物件概要

「有機的建築」の思想が息づく至高の空間
物件コード 00130-200009
物件名 陽光台モデルハウス【ホリゾンタル】見学可
交通 駅:信越線 来迎寺駅から徒歩94分、バス:陽光台3丁目から徒歩6分
物件所在地 新潟県長岡市陽光台4丁目1379-118
物件種別 新築一戸建て
構造 木造 階建 地上2階建
建ぺい率/容積率 60%/200%
建物面積 1階 62.34㎡/ 2階 56.36㎡/ 計 118.7㎡ /35.9坪
土地面積 205.97㎡ /62.3坪
築年月 2021年10月(築4年)
入居(引き渡し)時期 相談
用途地域 第1種中高層住居専用地域 地目 宅地  (現状:宅地)
都市計画 市街化区域 学校区 青葉台小学校(1,337m)・青葉台中学校(1,948m)
形状 間口 14.71m × 奥行 14.64m 道路 南側市道 幅員8m、東側市道 幅員8m
私道 - その他の制限 -
  • 陽光台モデルハウス【ホリゾンタル】見学可
    株式会社 空間クリエイティブ
  • この物件を問い合わせる/無料
  • TEL: 0258-38-5488 0258-38-5488

物件詳細情報

所在階/階数 - 号室 -
販売価格 43,000,000円 方位 南東
間取り 3LDK (洋室:8.7、6.0、5.5)
(LDK 22.0)
インナーガレージ 28.71㎡(8.68坪)
専有面積 - バルコニー面積 -
その他面積 - 駐車場 -
管理費 - 修繕積立金 -
現況 指定なし
仲介手数料 なし
利用制限 -
設備 角地、前面道路6m以上、日当り良好、閑静な住宅街、LDK15畳以上、全室フローリング、駐車場3台以上、南向き、庭あり、TVインターホン、複層ガラス、カウンターキッチン、IHクッキングヒーター、食器洗浄乾燥機、追いだき機能付き、バス1坪以上、温水洗浄便座、エアコン、24時間換気システム、オール電化、ウッドデッキ・テラス、上水道、下水道、電気、ウォークインクローゼット、全居室収納あり、即引き渡し可能
取引態様 売主
備考 本当に良いデザインは決して色褪せることはありません。流行に左右されない普遍的な家、心から満足できる上質な住まいをご体感ください。
取り扱い会社

株式会社 空間クリエイティブ

新潟県長岡市三和1-1-24

情報登録日 2023/10/23 次回更新予定日 2026/05/15
取引条件有効期限 2023/10/31
  • 陽光台モデルハウス【ホリゾンタル】見学可
    株式会社 空間クリエイティブ
  • この物件を問い合わせる/無料
  • TEL: 0258-38-5488 0258-38-5488

この物件の地図・周辺情報・行政情報

この物件の周辺情報・行政情報を詳しく見る
【周辺情報】
物件の近くにあるコンビニや銀行・学校など、アイコン付のマップで詳しく表示できます!
【行政情報】
水道料や下水道料・ガス料金など、暮らしに関係のある情報を表示しています。

担当取扱い店舗情報

取扱い店舗画像
株式会社 空間クリエイティブ
TEL: 0258-38-5488
所在地: 新潟県長岡市三和1-1-24
交通: 長岡駅
営業時間: 9:00~18:00/定休日:土・日・祝
免許番号: 新潟県知事(5)第4601号
所属団体名: 全日本不動産協会 新潟県本部
取引態様: 売主
ホームページ: http://ku-creative.com/