新潟県長岡市豊1丁目7番12号 中古一戸建て 6LDK 21,000,000円の物件情報

価格改定 2400万→2100万円 パルス徒歩1分、原信徒歩3分など商業施設が至近距離の好立地。6LDKの和洋ミックスの風情ある広々とした庭園付き住宅です!

物件名/所在地 詳細 価格
豊1丁目 売中古住宅
新潟県長岡市豊1丁目7番12号
  • 土地面積
    :338㎡ /102.24坪
  • 建物面積
    :203.33㎡ /61.5坪
  • 間取り
    :6LDK
  • 築年月
    :1983年7月
21,000,000
  • 豊1丁目 売中古住宅
    有限会社 北日本不動産
  • この物件を問い合わせる/無料
  • TEL: 0258-34-1441 0258-34-1441

物件画像

外観
間取り
物件画像
※画像クリックで拡大表示
外観正面
物件画像
※画像クリックで拡大表示
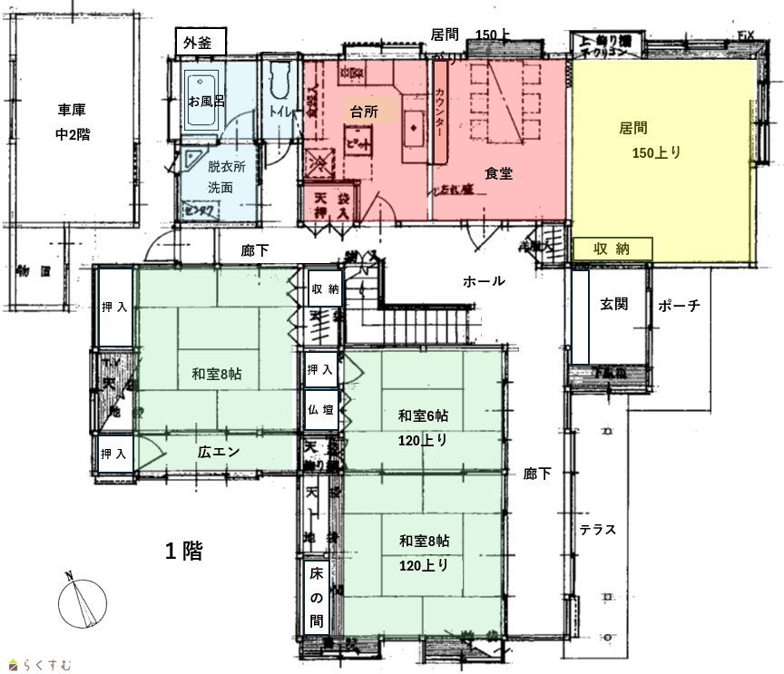
1F間取り図
詳細画像
物件画像
2F間取り図
物件画像
リビング
物件画像
物件画像
キッチン
物件画像
トイレ
物件画像
バス
物件画像
ベッドルーム
物件画像
ドレッサー
物件画像
床の間
物件画像
ダイニング
物件画像
玄関
物件画像
正面階段
物件画像
階段
物件画像
廊下
物件画像
洋室
物件画像
和室1
物件画像
和室2
物件画像
和室3
物件画像
手洗い
物件画像
案内図
動画


物件概要

近隣にショッピングセンター等の商業施設が充実している6LDKの和洋ミックスの風情ある和風住宅です!
物件コード 00129-200064
物件名 豊1丁目 売中古住宅
交通 駅:上越新幹線 長岡駅から徒歩31分
物件所在地 新潟県長岡市豊1丁目7番12号
物件種別 中古一戸建て
構造 木造 階建 地上2階建
建ぺい率/容積率 70%/200%
建物面積 1階 133.55㎡/ 2階 69.78㎡/ 計 203.33㎡ /61.5坪
土地面積 338㎡ /102.24坪
築年月 1983年7月(築42年)
入居(引き渡し)時期 相談
用途地域 第1種中高層住居専用地域 地目 宅地  (現状:空き家)
都市計画 市街化区域 学校区 川崎東小学校(305m)・東北中学校(354m)
形状 間口 16m × 奥行 22m 道路 東側市道:幅員6.1m / 北側市道:幅員6m
私道 - その他の制限 第二種高度地区・建築基準法22条区域・まちなか居住区域
  • 豊1丁目 売中古住宅
    有限会社 北日本不動産
  • この物件を問い合わせる/無料
  • TEL: 0258-34-1441 0258-34-1441

物件詳細情報

所在階/階数 - 号室 -
販売価格 21,000,000円 方位 -
間取り 6LDK (和室:8畳、8畳、6畳、6畳) (洋室:8、8)
専有面積 - バルコニー面積 -
その他面積 - 駐車場 -
管理費 - 修繕積立金 -
現況 空家
仲介手数料 759,000円
利用制限 -
設備 角地、日当り良好、閑静な住宅街、スーパー近く、エアコンあり、都市ガス、上水道、下水道
取引態様 一般
備考 ・売主契約不適合責任免責
・消雪組合加入必要 年間24,000円
・シロアリ駆除工事2022年1月11日施工済(5年間の保証有り)
・隣地(50坪)も一緒に購入可
・内覧希望の方は事前にご連絡下さい。
取り扱い会社

有限会社 北日本不動産

新潟県長岡市平島1丁目139番地

情報登録日 2025/09/01 次回更新予定日 2025/12/20
取引条件有効期限 2025/06/15
  • 豊1丁目 売中古住宅
    有限会社 北日本不動産
  • この物件を問い合わせる/無料
  • TEL: 0258-34-1441 0258-34-1441

この物件の地図・周辺情報・行政情報

この物件の周辺情報・行政情報を詳しく見る
【周辺情報】
物件の近くにあるコンビニや銀行・学校など、アイコン付のマップで詳しく表示できます!
【行政情報】
水道料や下水道料・ガス料金など、暮らしに関係のある情報を表示しています。
良食生活館 川崎店(スーパー)まで130m
原信 川崎店(スーパー)まで350m
美園内科クリニック(病院)まで290m
長岡信用金庫 美園支店(銀行)まで130m
セブン銀行ATM(銀行)まで350m

※カメラのアイコンがある場合は、マウスをポイントするとその施設の画像がご覧いただけます。


担当取扱い店舗情報

取扱い店舗画像
有限会社 北日本不動産
TEL: 0258-34-1441
所在地: 新潟県長岡市平島1丁目139番地
交通: 長岡駅
営業時間: 8:30~17:30/定休日:土日祝祭日
免許番号: 新潟県知事(16)第472号
所属団体名: 新潟県宅地建物取引協会 長岡支部
取引態様: 一般
ホームページ: http://kita2hon.co.jp