新潟県見附市下関町丙2019番地 中古一戸建て 7LDK 5,000,000円の物件情報

お買い物には車が必須の地域です。駐車場3台以上停められるスペースがあります☆ お住まいには7つのお部屋があり、ファミリーや2世帯も楽々過ごせます。

物件名/所在地 詳細 価格
見附市下関町 中古住宅
新潟県見附市下関町丙2019番地
  • 土地面積
    :399㎡ /120.69坪
  • 建物面積
    :192.94㎡ /58.36坪
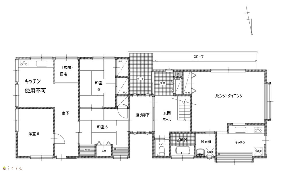
  • 間取り
    :7LDK
  • 築年月
    :1971年5月
5,000,000
  • 見附市下関町 中古住宅
    株式会社フォレス・タカダ
  • この物件を問い合わせる/無料
  • TEL: 0258-39-2919 0258-39-2919

物件画像

外観
間取り
物件画像
※画像クリックで拡大表示
外観
物件画像
※画像クリックで拡大表示
間取り
詳細画像
物件画像
間取り
物件画像
玄関
物件画像
キッチン
物件画像
キッチン/ダイニング
物件画像
洋室
物件画像
和室
物件画像
和室(仏間)
物件画像
バスルーム
物件画像
印刷用地図


物件概要

お買い物には車が必須の地域です。駐車場3台以上停められるスペースがあります☆ お住まいには7つのお部屋があり、ファミリーや2世帯も楽々過ごせます。
物件コード 00125-200109
物件名 見附市下関町 中古住宅
交通 バス:今町6丁目から徒歩15分
物件所在地 新潟県見附市下関町丙2019番地
物件種別 中古一戸建て
構造 木造 階建 地上2階建
建ぺい率/容積率 70%/200%
建物面積 1階 116.76㎡/ 2階 76.18㎡/ 計 192.94㎡ /58.36坪
土地面積 399㎡ /120.69坪
築年月 1971年5月(築55年)
入居(引き渡し)時期 相談
用途地域 用途の指定のない地域 地目 宅地  (現状:宅地)
都市計画 市街化調整区域 学校区 今町小学校(898m)・今町中学校(1,693m)
形状 - 道路 北西:市道・消雪なし ※南側:赤道 
私道 - その他の制限 北西側道路:幅員3.3m(2項道路)のため再築時セットバック要
  • 見附市下関町 中古住宅
    株式会社フォレス・タカダ
  • この物件を問い合わせる/無料
  • TEL: 0258-39-2919 0258-39-2919

物件詳細情報

所在階/階数 - 号室 -
販売価格 5,000,000円 方位 北西
間取り 7LDK (和室:6.0畳、6.0畳、4.5畳、6.0畳) (洋室:6.0、6.5、8.5)
LD13.0 K3.0
専有面積 - バルコニー面積 -
その他面積 - 駐車場 -
管理費 - 修繕積立金 -
現況 居住中
仲介手数料 330,000円
利用制限 -
設備 日当り良好、閑静な住宅街、駐車3台以上可能、南向き、トイレ2か所以上、上水道、下水道、田舎暮らし
取引態様 仲介
備考 *売主居住中のため内見は事前に連絡相談をお願いします
*建物面積:ベランダ含みません
*売主免責:契約不適合責任免責 
*本物件(丙2019番)土地1筆と同敷地内に建築された複数棟の建物一式が売買対象です。
取り扱い会社

株式会社フォレス・タカダ

新潟県長岡市摂田屋5-6-22

情報登録日 2026/02/19 次回更新予定日 2026/06/08
取引条件有効期限 2026/03/31
  • 見附市下関町 中古住宅
    株式会社フォレス・タカダ
  • この物件を問い合わせる/無料
  • TEL: 0258-39-2919 0258-39-2919

この物件の地図・周辺情報・行政情報

この物件の周辺情報・行政情報を詳しく見る
【周辺情報】
物件の近くにあるコンビニや銀行・学校など、アイコン付のマップで詳しく表示できます!
【行政情報】
水道料や下水道料・ガス料金など、暮らしに関係のある情報を表示しています。

担当取扱い店舗情報

取扱い店舗画像
株式会社フォレス・タカダ
TEL: 0258-39-2919
所在地: 新潟県長岡市摂田屋5-6-22
交通: 信越線〔宮内駅〕徒歩13分
営業時間: 8:30~17:30/定休日:隔週土曜・日曜日・祝/会社カレンダーによる
免許番号: 新潟県知事(8)第3591号
所属団体名: 新潟県宅地建物取引業協会 長岡支部
取引態様: 仲介
ホームページ: http://www.takada-arc.com