新潟県柏崎市比角1丁目 7-11 中古一戸建て 5DK 8,000,000円の物件情報

物件名/所在地 詳細 価格
比角1丁目 中古住宅
新潟県柏崎市比角1丁目 7-11
  • 土地面積
    :414.62㎡ /125.42坪
  • 建物面積
    :140.76㎡ /42.57坪
  • 間取り
    :5DK
  • 築年月
    :1998年6月
8,000,000
  • 比角1丁目 中古住宅
    有限会社小熊不動産企画
  • この物件を問い合わせる/無料
  • TEL: 0257-23-5000 0257-23-5000

物件画像

外観
間取り
物件画像
※画像クリックで拡大表示
外観
物件画像
※画像クリックで拡大表示
間取り
詳細画像
物件画像
外観
物件画像
玄関
物件画像
洋室
物件画像
和室
物件画像
和室
物件画像
キッチン
物件画像
バスルーム
物件画像
トイレ
物件画像
洗面所
物件画像
和室
物件画像
和室
物件画像
ワーキングスペース
物件画像
物件画像
物件画像
物件画像
設備


物件概要

物件コード 00095-200077
物件名 比角1丁目 中古住宅
交通 駅:越後線 東柏崎駅から徒歩6分、バス:リケン前から徒歩6分
物件所在地 新潟県柏崎市比角1丁目 7-11
物件種別 中古一戸建て
構造 木造 階建 地上2階建
建ぺい率/容積率 60%/200%
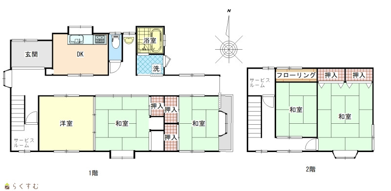
建物面積 1階 96.05㎡/ 2階 44.71㎡/ 計 140.76㎡ /42.57坪
土地面積 414.62㎡ /125.42坪
築年月 1998年6月(築27年)
入居(引き渡し)時期 随時入居(引き渡し)可
用途地域 準工業地域 地目 宅地・雑種地  (現状:宅地)
都市計画 非線引き都市計画区域 学校区 比角小学校(683m)・第二中学校(304m)
形状 - 道路 -
私道 - その他の制限 建築基準法 第22条
  • 比角1丁目 中古住宅
    有限会社小熊不動産企画
  • この物件を問い合わせる/無料
  • TEL: 0257-23-5000 0257-23-5000

物件詳細情報

所在階/階数 - 号室 -
販売価格 8,000,000円 方位
間取り 5DK (和室:8畳、6畳、6畳、8畳) (洋室:8)
6DK
敷地は建築基準法 第42条の道路に接道していません(再建築不可)
専有面積 - バルコニー面積 -
その他面積 - 駐車場 -
管理費 - 修繕積立金 -
現況 空家
仲介手数料 330,000円
利用制限 -
設備 日当り良好、閑静な住宅街、南向き、追いだき機能付き、バス1坪以上、エアコンあり、都市ガス、上水道、下水道、ウォークインクローゼット、BS端子、即引き渡し可能
取引態様 一般
備考 -
取り扱い会社

有限会社小熊不動産企画

新潟県柏崎市大久保2丁目3番2号

情報登録日 2025/11/29 次回更新予定日 2026/05/16
取引条件有効期限 2026/02/28
  • 比角1丁目 中古住宅
    有限会社小熊不動産企画
  • この物件を問い合わせる/無料
  • TEL: 0257-23-5000 0257-23-5000

この物件の地図・周辺情報・行政情報

この物件の周辺情報・行政情報を詳しく見る
【周辺情報】
物件の近くにあるコンビニや銀行・学校など、アイコン付のマップで詳しく表示できます!
【行政情報】
水道料や下水道料・ガス料金など、暮らしに関係のある情報を表示しています。

担当取扱い店舗情報

取扱い店舗画像
有限会社小熊不動産企画
TEL: 0257-23-5000
所在地: 新潟県柏崎市大久保2丁目3番2号
交通:
営業時間: 9:00~18:00/定休日:日曜・祭日
免許番号: 新潟県知事(2)第5275号
所属団体名: 新潟県宅地建物取引業協会 柏崎支部
取引態様: 一般