新潟県三条市中野原301番123 中古一戸建て 10DK 13,400,000円の物件情報

キャンプ場、温泉施設近く。有名アウトドアショップ近く

物件名/所在地 詳細 価格
三条市中野原売り住宅
新潟県三条市中野原301番123
  • 土地面積
    :936.79㎡ /283.37坪
  • 建物面積
    :348.62㎡ /105.45坪
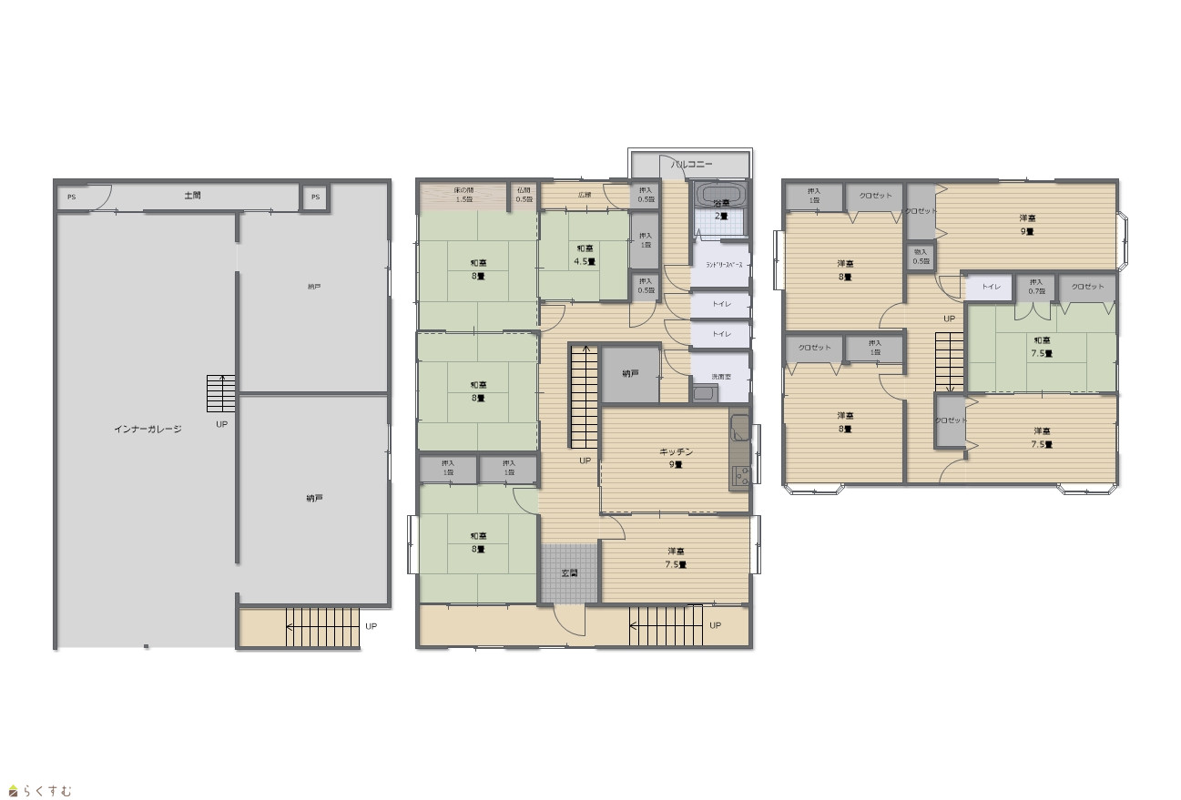
  • 間取り
    :10DK
  • 築年月
    :1993年3月
13,400,000
  • 三条市中野原売り住宅
    柏越建設 株式会社
  • この物件を問い合わせる/無料
  • TEL: 0257-24-1548 0257-24-1548

物件画像

外観
間取り
物件画像
※画像クリックで拡大表示
外観
物件画像
※画像クリックで拡大表示
間取り
詳細画像
物件画像
外観
物件画像
外観
物件画像
駐車場
物件画像
玄関
物件画像
駐車場
物件画像
洋室
物件画像
洋室
物件画像
リビング
物件画像
和室
物件画像
階段
物件画像
キッチン
物件画像
キッチン
物件画像
トイレ
物件画像
バスルーム
物件画像
洗面所
物件画像
和室
物件画像
洋室
物件画像
和室
物件画像
外観
物件画像
印刷用地図


物件概要

高床住宅!敷地内に5台駐車可能!
物件コード 00085-200018
物件名 三条市中野原売り住宅
交通 駅:信越線 東三条駅から徒歩139分、バス:中野原(上)から徒歩2分
物件所在地 新潟県三条市中野原301番123
物件種別 中古一戸建て
構造 木造鉄筋コン 階建 地上3階建
建ぺい率/容積率 70%/200%
建物面積 1階 130.01㎡/ 2階 127.52㎡/ 3階 91.09㎡/ 計 348.62㎡ /105.45坪
土地面積 936.79㎡ /283.37坪
築年月 1993年3月(築32年)
入居(引き渡し)時期 相談
用途地域 無指定 地目 宅地  (現状:宅地)
都市計画 都市計画区域外 学校区 笹岡小学校(349m)・下田中学校(1,749m)
形状 間口 17.6m 道路 市道 やまなみ線
私道 - その他の制限 -
  • 三条市中野原売り住宅
    柏越建設 株式会社
  • この物件を問い合わせる/無料
  • TEL: 0257-24-1548 0257-24-1548

物件詳細情報

所在階/階数 - 号室 -
販売価格 13,400,000円 方位 南西
間取り 10DK (和室:8.0畳、8.0畳、4.5畳、7.5畳、7.5畳) (洋室:8.0、7.0、8.5、8.0、9.0)
DK8.75
専有面積 - バルコニー面積 -
その他面積 - 駐車場 -
管理費 - 修繕積立金 -
現況 空家
仲介手数料 508,200円
利用制限 -
設備 日当り良好、駐車3台以上可能、南向き、IHクッキングヒーター、3口コンロ、追いだき機能付き、温水洗浄便座、トイレ2か所以上、エアコンあり、上水道、浄化槽、シューズBOX、内装リフォーム済み
取引態様 専任
備考 -
取り扱い会社

柏越建設 株式会社

新潟県柏崎市半田2丁目7番5号エクシードA102

情報登録日 2025/12/09 次回更新予定日 2026/02/15
取引条件有効期限 2025/11/26
  • 三条市中野原売り住宅
    柏越建設 株式会社
  • この物件を問い合わせる/無料
  • TEL: 0257-24-1548 0257-24-1548

この物件の地図・周辺情報・行政情報

この物件の周辺情報・行政情報を詳しく見る
【周辺情報】
物件の近くにあるコンビニや銀行・学校など、アイコン付のマップで詳しく表示できます!
【行政情報】
水道料や下水道料・ガス料金など、暮らしに関係のある情報を表示しています。

担当取扱い店舗情報

取扱い店舗画像
柏越建設 株式会社
TEL: 0257-24-1548
所在地: 新潟県柏崎市半田2丁目7番5号エクシードA102
交通: 柏崎駅
営業時間: 9:00~17:00/定休日:日・祝
免許番号: 新潟県知事(9)第3408号
所属団体名: 柏越建設株式会社
取引態様: 専任