新潟県刈羽郡刈羽村割町新田1463-1 中古一戸建て 6LDK 23,000,000円の物件情報

2世帯同居、企業様の社員寮をお探しの方へ

物件名/所在地 詳細 価格
刈羽村割町新田
新潟県刈羽郡刈羽村割町新田1463-1
  • 土地面積
    :669.83㎡ /202.62坪
  • 建物面積
    :448.24㎡ /135.59坪
  • 間取り
    :6LDK
  • 築年月
    :1998年8月
23,000,000
  • 刈羽村割町新田
    八幡開発株式会社
  • この物件を問い合わせる/無料
  • TEL: 0257-22-3357 0257-22-3357

物件画像

外観
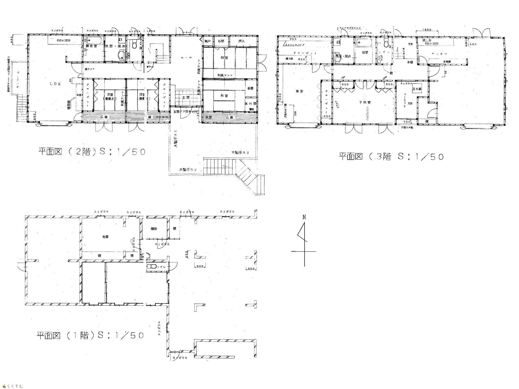
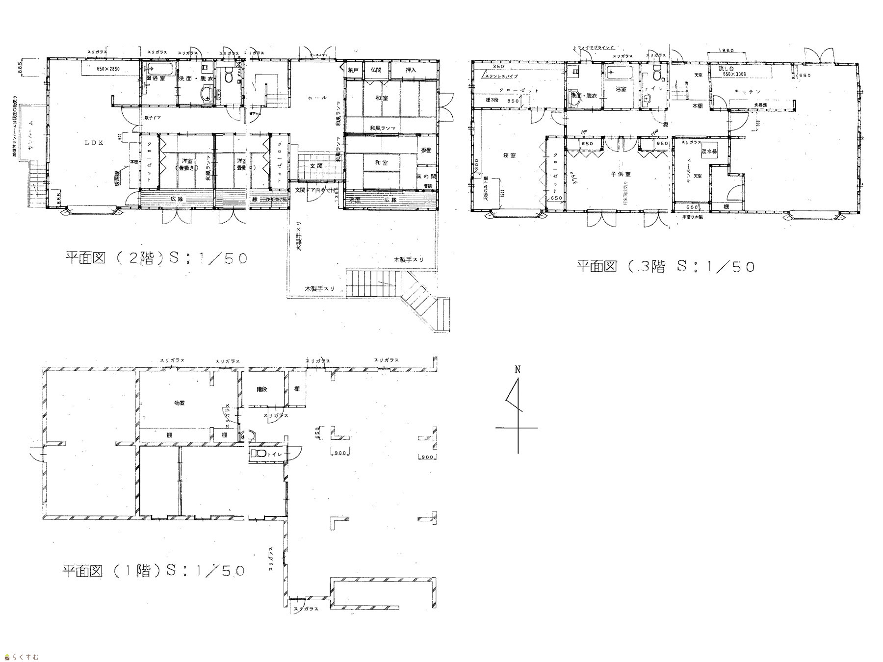
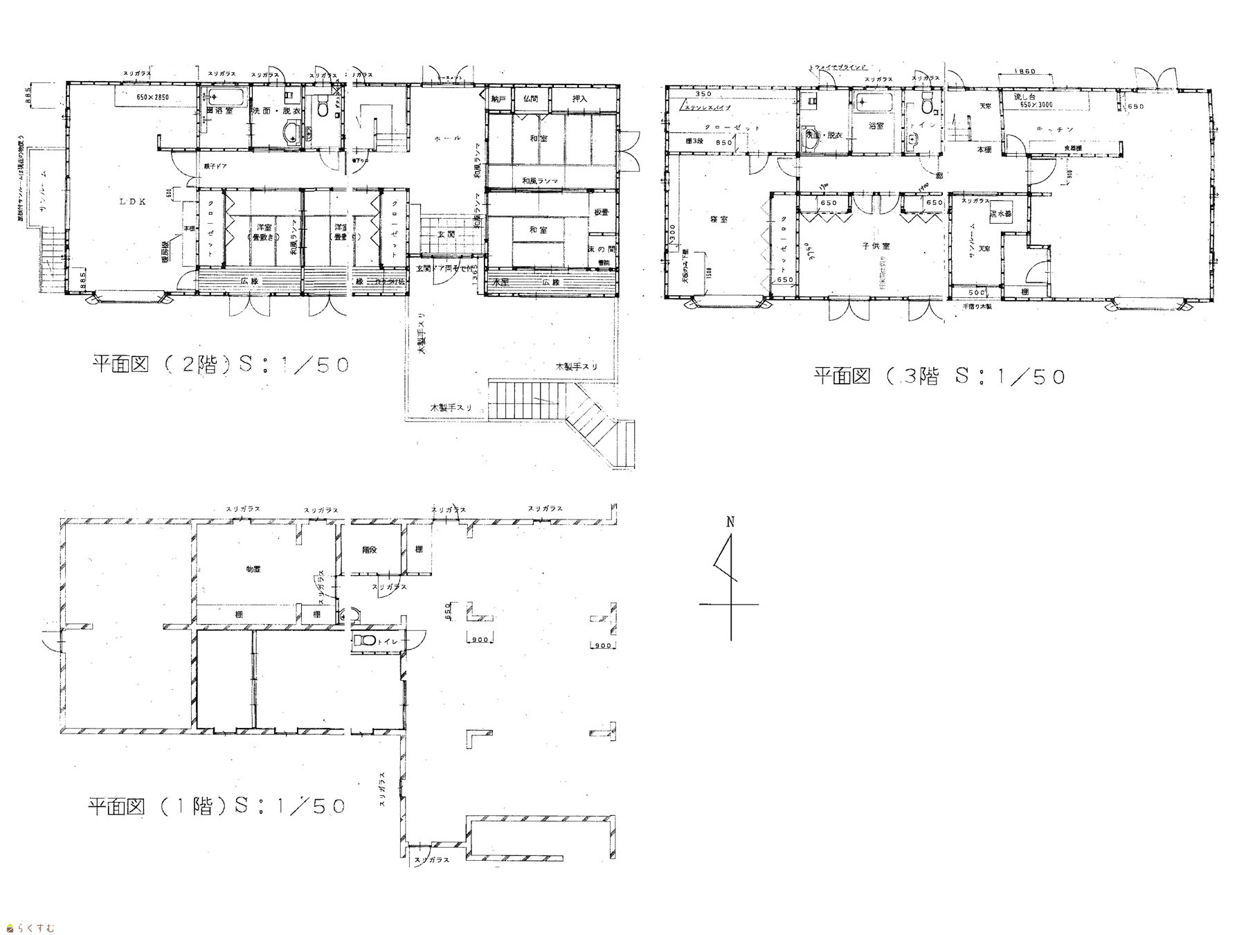
間取り
物件画像
※画像クリックで拡大表示
外観
物件画像
※画像クリックで拡大表示
間取り
詳細画像
物件画像
公図
物件画像
外観
物件画像
玄関
物件画像
玄関収納
物件画像
1階物置
物件画像
1階トイレ
物件画像
1階車庫
物件画像
1階車庫 3台分
物件画像
1階洋室
物件画像
2階和室
物件画像
2階和室収納
物件画像
3階リビング
物件画像
3階キッチン
物件画像
3階トイレ
物件画像
3階洋室
物件画像
3階浴室


物件概要

FP工法の機密性能のよい家です
物件コード 00050-200424
物件名 刈羽村割町新田
交通 駅:越後線 刈羽駅から徒歩18分、バス:割町新田神社前から徒歩1分
物件所在地 新潟県刈羽郡刈羽村割町新田1463-1
物件種別 中古一戸建て
構造 木造鉄筋コン 階建 地上3階建
建ぺい率/容積率 -
建物面積 1階 169.68㎡/ 2階 140.35㎡/ 3階 138.21㎡/ 計 448.24㎡ /135.59坪
土地面積 669.83㎡ /202.62坪
築年月 1998年8月(築27年)
入居(引き渡し)時期 相談
用途地域 無指定 地目 宅地
都市計画 都市計画区域外 学校区 刈羽小学校(662m)・刈羽中学校(801m)
形状 間口 21.9m × 奥行 35.9m 道路 県道黒部・柏崎線(369号線)
私道 - その他の制限 -
  • 刈羽村割町新田
    八幡開発株式会社
  • この物件を問い合わせる/無料
  • TEL: 0257-22-3357 0257-22-3357

物件詳細情報

所在階/階数 - 号室 -
販売価格 23,000,000円 方位 -
間取り 6LDK (和室:7.5畳、7.5畳、4.5畳、4.5畳) (洋室:13、8.5)
2階LDK約20、3階LDK約26
FP工法の機密性能のよい住宅です
専有面積 - バルコニー面積 -
その他面積 - 駐車場 -
管理費 - 修繕積立金 -
現況 空家
仲介手数料 825,000円
印紙代 10,000円
登記費用、不動産取得税別途
利用制限 -
設備 角地、日当り良好、LDK15帖以上、駐車3台以上可能、南向き、システムキッチン、IHクッキングヒーター、追いだき機能付き、温水洗浄便座、トイレ2か所以上、シャワー付き洗面台、エアコンあり、オール電化、上水道、下水道、ウォークインクローゼット、全居室収納あり、2世帯向き、別荘、事業向け
取引態様 専任
備考 FP工法の機密性能のよい家です
取り扱い会社

八幡開発株式会社

新潟県柏崎市横山440番地1

情報登録日 2025/11/20 次回更新予定日 2026/01/02
取引条件有効期限 2025/12/31
  • 刈羽村割町新田
    八幡開発株式会社
  • この物件を問い合わせる/無料
  • TEL: 0257-22-3357 0257-22-3357

この物件の地図・周辺情報・行政情報

この物件の周辺情報・行政情報を詳しく見る
【周辺情報】
物件の近くにあるコンビニや銀行・学校など、アイコン付のマップで詳しく表示できます!
【行政情報】
水道料や下水道料・ガス料金など、暮らしに関係のある情報を表示しています。

担当取扱い店舗情報

取扱い店舗画像
八幡開発株式会社
TEL: 0257-22-3357
所在地: 新潟県柏崎市横山440番地1
交通: 柏崎駅
営業時間: 9:00~17:30/定休日:日曜・祭日
免許番号: 新潟県知事(14)第1377号
所属団体名: 新潟県宅地建物取引業協会 柏崎支部
取引態様: 専任
ホームページ: http://www.hatiman.jp