新潟県柏崎市半田2丁目27-17 中古一戸建て 2LDK 28,000,000円の物件情報

人気の半田住宅団地内「もみの木の家」築浅、少人数世帯向けオール電化2LDK.

物件名/所在地 詳細 価格
半田2丁目
新潟県柏崎市半田2丁目27-17
  • 土地面積
    :217.22㎡ /65.7坪
  • 建物面積
    :100.19㎡ /30.3坪
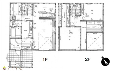
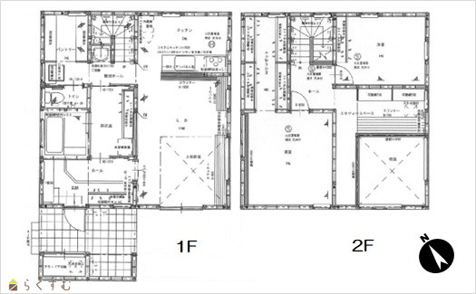
  • 間取り
    :2LDK
  • 築年月
    :2021年10月
28,000,000
  • 半田2丁目
    八幡開発株式会社
  • この物件を問い合わせる/無料
  • TEL: 0257-22-3357 0257-22-3357

物件画像

外観
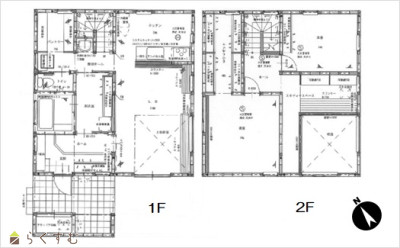
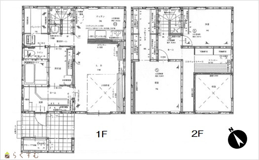
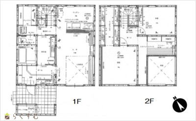
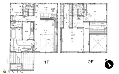
間取り
物件画像
※画像クリックで拡大表示
外観
物件画像
※画像クリックで拡大表示
間取り図
詳細画像
物件画像
玄関ポーチ
物件画像
玄関収納
物件画像
脱衣所 乾燥収納
物件画像
浴室
物件画像
1Fパントリー
物件画像
洗面所
物件画像
トイレ
物件画像
リビングからキッチン
物件画像
キッチンからリビング
物件画像
システムキッチン
物件画像
キッチン収納
物件画像
階段
物件画像
2F洋室


物件概要

玄関収納、パントリー、クローゼットは収納たっぷりですっきり片付きます。
物件コード 00050-200385
物件名 半田2丁目
交通 駅:信越線 茨目駅から徒歩12分、バス:半田西から徒歩3分
物件所在地 新潟県柏崎市半田2丁目27-17
物件種別 中古一戸建て
構造 木造 階建 地上2階建
建ぺい率/容積率 70%/200%
建物面積 1階 54.65㎡/ 2階 45.54㎡/ 計 100.19㎡ /30.3坪
土地面積 217.22㎡ /65.7坪
築年月 2021年10月(築4年)
入居(引き渡し)時期 相談
用途地域 無指定 地目 宅地
都市計画 非線引き都市計画区域 学校区 半田小学校(510m)・鏡が沖中学校(1,676m)
形状 間口 13.11m × 奥行 16.45m 道路 柏崎市道:除雪有
私道 - その他の制限 -
  • 半田2丁目
    八幡開発株式会社
  • この物件を問い合わせる/無料
  • TEL: 0257-22-3357 0257-22-3357

物件詳細情報

所在階/階数 - 号室 -
販売価格 28,000,000円 方位 南東
間取り 2LDK (洋室:8、6)
LD11
専有面積 - バルコニー面積 -
その他面積 - 駐車場 -
管理費 - 修繕積立金 -
現況 居住中
仲介手数料 990,000円
利用制限 -
設備 日当り良好、閑静な住宅街、長期優良住宅、設計住宅性能評価付、耐震基準適合証明書あり、新築時図面あり、全室フローリング、築10年以内、駐車3台以上可能、TVインターホン、複層ガラス、システムキッチン、カウンターキッチン、IHクッキングヒーター、食器洗浄乾燥機、追いだき機能付き、バス1坪以上、温水洗浄便座、シャワー付き洗面台、エアコンあり、オール電化、上水道、下水道、全居室収納あり
取引態様 一般
備考 内覧ご希望の方は、事前にご連絡ください。
取り扱い会社

八幡開発株式会社

新潟県柏崎市横山440番地1

情報登録日 2024/11/16 次回更新予定日 2026/05/30
取引条件有効期限 2025/05/31
  • 半田2丁目
    八幡開発株式会社
  • この物件を問い合わせる/無料
  • TEL: 0257-22-3357 0257-22-3357

この物件の地図・周辺情報・行政情報

この物件の周辺情報・行政情報を詳しく見る
【周辺情報】
物件の近くにあるコンビニや銀行・学校など、アイコン付のマップで詳しく表示できます!
【行政情報】
水道料や下水道料・ガス料金など、暮らしに関係のある情報を表示しています。
ファミリーマート 柏崎城塚店(コンビニ)まで700m
セブン-イレブン 柏崎半田3丁目店(コンビニ)まで1020m
(医)立川メディカルセンター 柏崎厚生病院(病院)まで660m
柏崎信用金庫 半田支店(銀行)まで940m
セブン銀行ATM(銀行)まで1020m

※カメラのアイコンがある場合は、マウスをポイントするとその施設の画像がご覧いただけます。


担当取扱い店舗情報

取扱い店舗画像
八幡開発株式会社
TEL: 0257-22-3357
所在地: 新潟県柏崎市横山440番地1
交通: 柏崎駅
営業時間: 9:00~17:30/定休日:日曜・祭日
免許番号: 新潟県知事(14)第1377号
所属団体名: 新潟県宅地建物取引業協会 柏崎支部
取引態様: 一般
ホームページ: http://www.hatiman.jp