新潟県長岡市中沢3-564-4 中古一戸建て 5LDK 24,500,000円の物件情報

陽当たり良好!状態の良い住宅です。カーポート3台駐車できます!収納も充実しています!

物件名/所在地 詳細 価格
中沢3丁目売住宅
新潟県長岡市中沢3-564-4
  • 土地面積
    :408.75㎡ /123.64坪
  • 建物面積
    :199.73㎡ /60.41坪
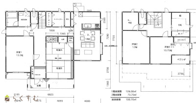
  • 間取り
    :5LDK
  • 築年月
    :1998年10月
24,500,000
  • 中沢3丁目売住宅
    髙頭不動産 株式会社
  • この物件を問い合わせる/無料
  • TEL: 0120-1818-27 0120-1818-27

物件画像

外観
間取り
物件画像
※画像クリックで拡大表示
外観
物件画像
※画像クリックで拡大表示
間取り
詳細画像
物件画像
リビング
物件画像
キッチン
物件画像
和室
物件画像
浴室
物件画像
洗面
物件画像
トイレ
物件画像
1F 洋室
物件画像
2F 洋室
物件画像
2F 洋室
物件画像
ベランダ
物件画像
納戸
物件画像
納戸2
物件画像
玄関前ホール
物件画像
2F ホール
物件画像
玄関
物件画像
和室から眺める庭
物件画像
1F 納戸
物件画像
1F ホール
物件画像


物件概要

アクロスプラザ長岡まで徒歩約11分と利便性の良い立地です♪広いお庭でゆったりとした生活をお楽しめます♪
物件コード 00040-201174
物件名 中沢3丁目売住宅
交通 駅:信越線 長岡駅から徒歩31分、バス:中沢三叉路から徒歩6分
物件所在地 新潟県長岡市中沢3-564-4
物件種別 中古一戸建て
構造 木造 階建 地上2階建
建ぺい率/容積率 60%/200%
建物面積 1階 126㎡/ 2階 73.73㎡/ 計 199.73㎡ /60.41坪
土地面積 408.75㎡ /123.64坪
築年月 1998年10月(築27年)
入居(引き渡し)時期 随時入居(引き渡し)可
用途地域 第1種低層住居専用地域 地目 宅地  (現状:宅地)
都市計画 市街化区域 学校区 栖吉小学校(852m)・栖吉中学校(1,009m)
形状 間口 2553m × 奥行 15.99m 道路 公道
私道 - その他の制限 -
  • 中沢3丁目売住宅
    髙頭不動産 株式会社
  • この物件を問い合わせる/無料
  • TEL: 0120-1818-27 0120-1818-27

物件詳細情報

所在階/階数 - 号室 -
販売価格 24,500,000円 方位 南東
間取り 5LDK (和室:6畳、6畳) (洋室:13.5、12、10.75)
LDK18
専有面積 - バルコニー面積 -
その他面積 - 駐車場 -
管理費 - 修繕積立金 -
現況 空家
仲介手数料 874,500円
利用制限 -
設備 日当り良好、閑静な住宅街、LDK15帖以上、駐車3台以上可能、南向き、複層ガラス、システムキッチン、カウンターキッチン、追いだき機能付き、バス1坪以上、温水洗浄便座、トイレ2か所以上、エアコンあり、都市ガス、上水道、下水道、バリアフリー、全居室収納あり、即引き渡し可能
取引態様 一般
備考 -
取り扱い会社

髙頭不動産 株式会社

新潟県長岡市千歳1-3-25

情報登録日 2025/11/06 次回更新予定日 2026/05/16
取引条件有効期限 2026/02/04
  • 中沢3丁目売住宅
    髙頭不動産 株式会社
  • この物件を問い合わせる/無料
  • TEL: 0120-1818-27 0120-1818-27

この物件の地図・周辺情報・行政情報

この物件の周辺情報・行政情報を詳しく見る
【周辺情報】
物件の近くにあるコンビニや銀行・学校など、アイコン付のマップで詳しく表示できます!
【行政情報】
水道料や下水道料・ガス料金など、暮らしに関係のある情報を表示しています。

担当取扱い店舗情報

取扱い店舗画像
髙頭不動産 株式会社
TEL: 0120-1818-27
所在地: 新潟県長岡市千歳1-3-25
交通: 長岡駅
営業時間: 8時30分~17時30分(大手支店は9時~18時)/定休日:本社:土日祝日(事前予約での対応可能)、支店:日曜祝日第5土曜(毎年2月下旬から3月は休みなし)
免許番号: 新潟県知事(17)第191号
所属団体名: 新潟県宅地建物取引協会 長岡支部
取引態様: 一般
ホームページ: http://www.takato-f.com