新潟県長岡市豊1丁目7-12 中古一戸建て 6LDK 21,000,000円の物件情報

ショッピングセンターまで徒歩圏内!バイパスへのアクセス良好!立派な庭のある、和式住宅!

物件名/所在地 詳細 価格
豊1丁目 中古住宅
新潟県長岡市豊1丁目7-12
  • 土地面積
    :338㎡ /102.24坪
  • 建物面積
    :203.33㎡ /61.5坪
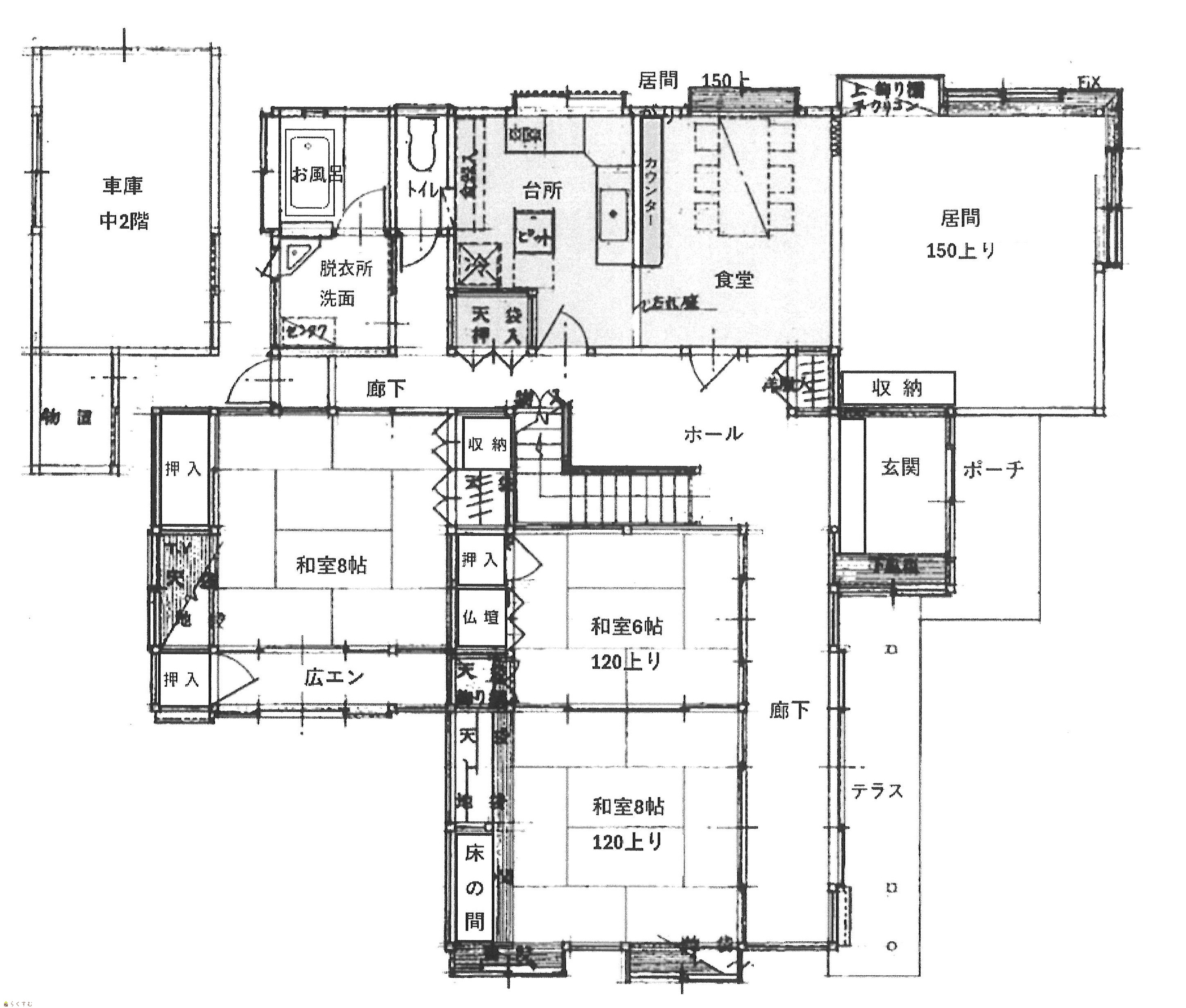
  • 間取り
    :6LDK
  • 築年月
    :1983年7月
21,000,000
  • 豊1丁目 中古住宅
    髙頭不動産 株式会社
  • この物件を問い合わせる/無料
  • TEL: 0120-1818-27 0120-1818-27

物件画像

外観
間取り
物件画像
※画像クリックで拡大表示
外観
物件画像
※画像クリックで拡大表示
間取り
詳細画像
物件画像
2階間取
物件画像
物件画像
物件画像
和室
物件画像
ダイニング
物件画像
リビング
物件画像
キッチン
物件画像
玄関
物件画像
洋室
物件画像
寝室
物件画像
和室
物件画像
外観
物件画像
バスルーム
物件画像
洗面所
物件画像
トイレ
物件画像
内装
物件画像
印刷用地図


物件概要

物件コード 00040-201158
物件名 豊1丁目 中古住宅
交通 駅:信越線 北長岡駅から徒歩21分、バス:豊町から徒歩3分
物件所在地 新潟県長岡市豊1丁目7-12
物件種別 中古一戸建て
構造 木造 階建 地上2階建
建ぺい率/容積率 60%/200%
建物面積 1階 133.55㎡/ 2階 69.78㎡/ 計 203.33㎡ /61.5坪
土地面積 338㎡ /102.24坪
築年月 1983年7月(築42年)
入居(引き渡し)時期 随時入居(引き渡し)可
用途地域 第1種中高層住居専用地域 地目 宅地  (現状:宅地)
都市計画 市街化区域 学校区 川崎東小学校(305m)・東北中学校(354m)
形状 - 道路 東側 公道 6m 融雪道路 /北側 公道 6m 融雪道路
私道 - その他の制限 -
  • 豊1丁目 中古住宅
    髙頭不動産 株式会社
  • この物件を問い合わせる/無料
  • TEL: 0120-1818-27 0120-1818-27

物件詳細情報

所在階/階数 - 号室 -
販売価格 21,000,000円 方位 -
間取り 6LDK
専有面積 - バルコニー面積 -
その他面積 - 駐車場 -
管理費 - 修繕積立金 -
現況 空家
仲介手数料 759,000円
利用制限 -
設備 角地、閑静な住宅街、スーパー近く、温水洗浄便座、トイレ2か所以上、都市ガス、上水道、下水道、即引き渡し可能
取引態様 一般
備考 -
取り扱い会社

髙頭不動産 株式会社

新潟県長岡市千歳1-3-25

情報登録日 2025/09/02 次回更新予定日 2026/05/16
取引条件有効期限 2025/12/31
  • 豊1丁目 中古住宅
    髙頭不動産 株式会社
  • この物件を問い合わせる/無料
  • TEL: 0120-1818-27 0120-1818-27

この物件の地図・周辺情報・行政情報

この物件の周辺情報・行政情報を詳しく見る
【周辺情報】
物件の近くにあるコンビニや銀行・学校など、アイコン付のマップで詳しく表示できます!
【行政情報】
水道料や下水道料・ガス料金など、暮らしに関係のある情報を表示しています。
ローソン 長岡川崎町店(コンビニ)まで790m
セブン-イレブン 長岡永田店(コンビニ)まで650m
良食生活館 川崎店(スーパー)まで130m
原信 川崎店(スーパー)まで350m
ラ・ムー 長岡愛宕店(スーパー)まで950m
美園内科クリニック(病院)まで290m
田村クリニック(病院)まで690m
あたごこどもクリニック(病院)まで840m
まつむら第二歯科(病院)まで870m
長岡レディースクリニック(病院)まで830m

※カメラのアイコンがある場合は、マウスをポイントするとその施設の画像がご覧いただけます。


担当取扱い店舗情報

取扱い店舗画像
髙頭不動産 株式会社
TEL: 0120-1818-27
所在地: 新潟県長岡市千歳1-3-25
交通: 長岡駅
営業時間: 8時30分~17時30分(大手支店は9時~18時)/定休日:本社:土日祝日(事前予約での対応可能)、支店:日曜祝日第5土曜(毎年2月下旬から3月は休みなし)
免許番号: 新潟県知事(17)第191号
所属団体名: 新潟県宅地建物取引協会 長岡支部
取引態様: 一般
ホームページ: http://www.takato-f.com