新潟県長岡市城岡1丁目6-32 中古一戸建て 4LDK 20,900,000円の物件情報

【価格改定しました】2,240万円(R6.7.10)→2,090万円(R7.7.16)スーパー、最寄り駅まで徒歩圏内!4LDKの状態の良い住宅です!カーポート2台、他1台の駐車スペースがあり雪の日も安心です♪

物件名/所在地 詳細 価格
城岡1丁目 売住宅
新潟県長岡市城岡1丁目6-32
  • 土地面積
    :182.31㎡ /55.14坪
  • 建物面積
    :105.15㎡ /31.8坪
  • 間取り
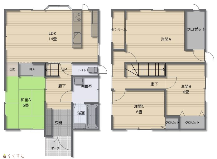
    :4LDK
  • 築年月
    :2008年10月
20,900,000
  • 城岡1丁目 売住宅
    髙頭不動産 株式会社
  • この物件を問い合わせる/無料
  • TEL: 0120-1818-27 0120-1818-27

物件画像

外観
間取り
物件画像
※画像クリックで拡大表示
外観写真
物件画像
※画像クリックで拡大表示
間取り
詳細画像
物件画像
玄関
物件画像
洗面所
物件画像
浴室
物件画像
トイレ
物件画像
1階和室
物件画像
LDK
物件画像
キッチン
物件画像
2階洋室C
物件画像
2階洋室B
物件画像
2階洋室A
物件画像
ウォークインクローゼット
物件画像
サンルーム
物件画像
地図
動画


物件概要

浴室暖房、洗面所にヒーター有り!寒い冬でも快適です☆彡
物件コード 00040-201031
物件名 城岡1丁目 売住宅
交通 駅:信越線 北長岡駅から徒歩2分、バス:新町2丁目から徒歩3分
物件所在地 新潟県長岡市城岡1丁目6-32
物件種別 中古一戸建て
構造 木造 階建 地上2階建
建ぺい率/容積率 60%/200%
建物面積 1階 52.98㎡/ 2階 52.17㎡/ 計 105.15㎡ /31.8坪
土地面積 182.31㎡ /55.14坪
築年月 2008年10月(築17年)
入居(引き渡し)時期 随時入居(引き渡し)可
用途地域 工業地域 地目 宅地  (現状:宅地)
都市計画 市街化区域 学校区 新町小学校(574m)・北中学校(844m)
形状 間口 9.2m × 奥行 19.3m 道路 東側 公道 幅員5.2m
私道 - その他の制限 建築基準法第22条、都市再生特別措置法(まちなか居住区域)
  • 城岡1丁目 売住宅
    髙頭不動産 株式会社
  • この物件を問い合わせる/無料
  • TEL: 0120-1818-27 0120-1818-27

物件詳細情報

所在階/階数 - 号室 -
販売価格 20,900,000円 方位
間取り 4LDK (和室:6畳) (洋室:6、6、9.7)
LDK14
専有面積 - バルコニー面積 -
その他面積 - 駐車場 -
管理費 - 修繕積立金 -
現況 空家
仲介手数料 755,700円
利用制限 -
設備 日当り良好、閑静な住宅街、スーパー近く、駐車3台以上可能、TVインターホン、デインプルキー、システムキッチン、カウンターキッチン、IHクッキングヒーター、3口コンロ、追いだき機能付き、浴室乾燥機、バス1坪以上、温水洗浄便座、シャワー付き洗面台、エアコンあり、都市ガス、上水道、下水道、ウォークインクローゼット、全居室収納あり、シューズBOX、即引き渡し可能
取引態様 一般
備考 ※カーポートの一部が前面道路に越境しています。
※建築基準法第22条区域、まちなか居住区域に該当します。
取り扱い会社

髙頭不動産 株式会社

新潟県長岡市千歳1-3-25

情報登録日 2025/07/16 次回更新予定日 2025/12/20
取引条件有効期限 2024/10/09
  • 城岡1丁目 売住宅
    髙頭不動産 株式会社
  • この物件を問い合わせる/無料
  • TEL: 0120-1818-27 0120-1818-27

この物件の地図・周辺情報・行政情報

この物件の周辺情報・行政情報を詳しく見る
【周辺情報】
物件の近くにあるコンビニや銀行・学校など、アイコン付のマップで詳しく表示できます!
【行政情報】
水道料や下水道料・ガス料金など、暮らしに関係のある情報を表示しています。
ローソン 長岡新保店(コンビニ)まで1010m
チャレンジャー 北長岡店(スーパー)まで460m
原信 新保店(スーパー)まで1090m
大関医院(病院)まで610m
長岡信用金庫 新町支店(銀行)まで750m
長岡新町郵便局(郵便局)まで530m

※カメラのアイコンがある場合は、マウスをポイントするとその施設の画像がご覧いただけます。


担当取扱い店舗情報

取扱い店舗画像
髙頭不動産 株式会社
TEL: 0120-1818-27
所在地: 新潟県長岡市千歳1-3-25
交通: 長岡駅
営業時間: 8時30分~17時30分(大手支店は9時~18時)/定休日:本社:土日祝日(事前予約での対応可能)、支店:日曜祝日第5土曜(毎年2月下旬から3月は休みなし)
免許番号: 新潟県知事(17)第191号
所属団体名: 新潟県宅地建物取引協会 長岡支部
取引態様: 一般
ホームページ: http://www.takato-f.com