新潟県見附市芝野町1206 投資物件・その他 35,000,000円の物件情報

令和2年リフォーム済み!美しい内装はそのままに。憧れの店舗をすぐにオープンできる居抜き物件!あなたの思い描くお店を実現してください。

物件名/所在地 詳細 価格
表面利回り
見附市芝野町 売店舗 令和2年リフォーム済み!美しい内装
新潟県見附市芝野町1206
  • 土地面積
    :684㎡ /206.91坪
  • 建ぺい率
    :60%
  • 容積率
    :200%
35,000,000
-
  • 見附市芝野町 売店舗 令和2年リフォーム済み!美しい内装
    ふどうさんの相談所 (ライフデザイン合同会社 イオン長岡店)
  • この物件を問い合わせる/無料
  • TEL: 0258-94-4370 0258-94-4370

物件画像

外観
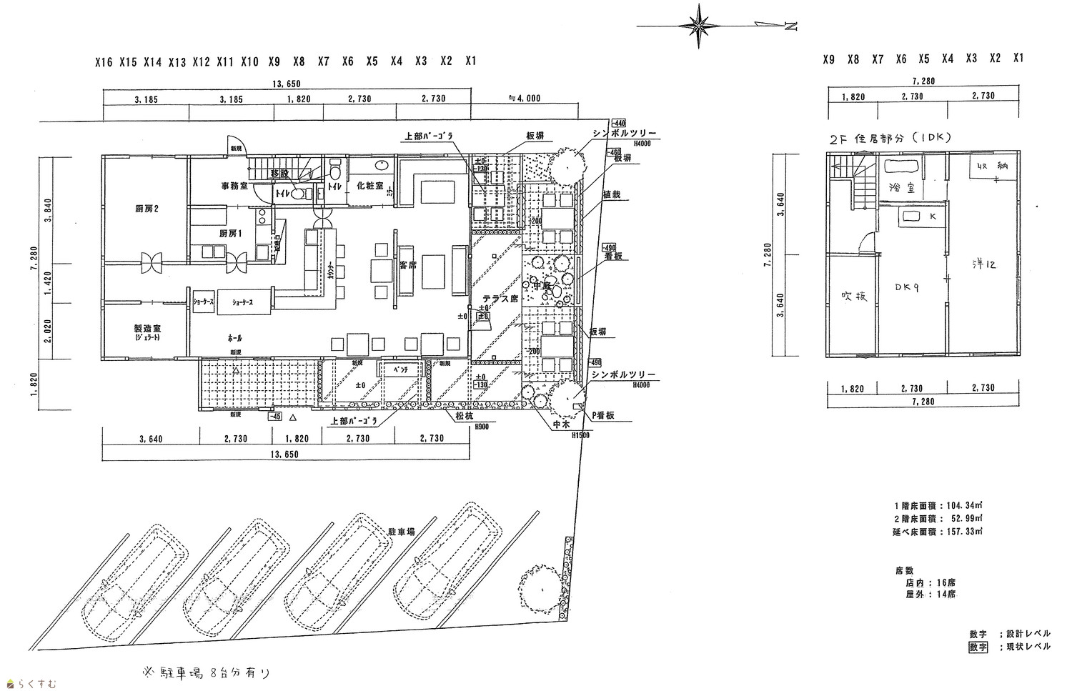
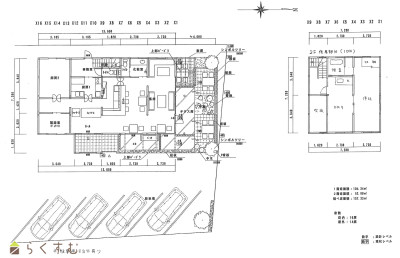
間取り
物件画像
※画像クリックで拡大表示
外観
物件画像
※画像クリックで拡大表示
間取り
詳細画像
物件画像
店内飲食ブース
物件画像
店内飲食ブース
物件画像
店内飲食ブース
物件画像
カウンター席
物件画像
レジカウンター
物件画像
待合いスペース
物件画像
化粧室 手洗い
物件画像
トイレ
物件画像
テラス
物件画像
入口
物件画像
住居部分 DK9
物件画像
住居部分 洋12
物件画像
住居部分 浴室
物件画像
印刷用地図


物件概要

令和2年リフォーム済み!美しい内装はそのままに。憧れの店舗をすぐにオープンできる居抜き物件!あなたの思い描くお店を実現してください。
物件コード 00039-200292
物件名 見附市芝野町 売店舗 令和2年リフォーム済み!美しい内装
交通 駅:信越線 見附駅から徒歩17分、バス:芝野から徒歩1分
物件所在地 新潟県見附市芝野町1206
物件種別 投資物件・その他
物件区分 その他
構造 木造 階建 地上2階建
建ぺい率/容積率 60%/200%
建物面積 1階 240.98㎡/ 2階 52.99㎡/ 計 293.97㎡ /88.92坪
土地面積 684㎡ /206.91坪
築年月 2006年7月(築19年)
入居(引き渡し)時期 相談
用途地域 準工業地域 地目 宅地
都市計画 市街化区域 学校区 今町小学校(1,308m)・今町中学校(551m)
形状 間口 18.5m 道路 見附市道
私道 - その他の制限 -
  • 見附市芝野町 売店舗 令和2年リフォーム済み!美しい内装
    ふどうさんの相談所 (ライフデザイン合同会社 イオン長岡店)
  • この物件を問い合わせる/無料
  • TEL: 0258-94-4370 0258-94-4370

物件詳細情報

所在階/階数 - 号室 -
販売価格 35,000,000円 方位 -
表面利回り(満室想定時) - 満室想定年収 - (想定月収: - )
現行利回り - 現行年間年収 -
住戸数 -
間取り -
専有面積 - バルコニー面積 -
その他面積 - 駐車場 8台以上可
管理費 - 修繕積立金 -
現況 空家
仲介手数料 1,221,000円
利用制限 -
設備 公営水道、下水道、事業向け
取引態様 一般
備考 賃貸をご希望の方は相談可能です。
取り扱い会社

ふどうさんの相談所 (ライフデザイン合同会社 イオン長岡店)

新潟県長岡市古正寺1-249-1イオン長岡店3F

情報登録日 2026/03/15 次回更新予定日 2026/05/16
取引条件有効期限 2026/04/30
  • 見附市芝野町 売店舗 令和2年リフォーム済み!美しい内装
    ふどうさんの相談所 (ライフデザイン合同会社 イオン長岡店)
  • この物件を問い合わせる/無料
  • TEL: 0258-94-4370 0258-94-4370

この物件の地図・周辺情報・行政情報

この物件の周辺情報・行政情報を詳しく見る
【周辺情報】
物件の近くにあるコンビニや銀行・学校など、アイコン付のマップで詳しく表示できます!
【行政情報】
水道料や下水道料・ガス料金など、暮らしに関係のある情報を表示しています。

担当取扱い店舗情報

取扱い店舗画像
ふどうさんの相談所 (ライフデザイン合同会社 イオン長岡店)
TEL: 0258-94-4370
所在地: 新潟県長岡市古正寺1-249-1イオン長岡店3F
交通: 長岡駅
営業時間: 10:00~20:00/定休日:年末年始・特別日はお休みいたします
免許番号: 新潟県知事(3)第5090号
所属団体名: 全日本不動産協会 新潟県本部
取引態様: 一般
ホームページ: http://life-dn.com