新潟県長岡市脇野町字中江323番11 投資物件・その他 12,000,000円の物件情報

三島エリア 街道沿いの喫茶店・カフェ

物件名/所在地 詳細 価格
表面利回り
脇野町 喫茶店・カフェ 
新潟県長岡市脇野町字中江323番11
  • 土地面積
    :505.79㎡ /153坪
  • 建ぺい率
    :60%
  • 容積率
    :200%
12,000,000
-
  • 脇野町 喫茶店・カフェ 
    ふどうさんの相談所 (ライフデザイン合同会社 イオン長岡店)
  • この物件を問い合わせる/無料
  • TEL: 0258-94-4370 0258-94-4370

物件画像

外観
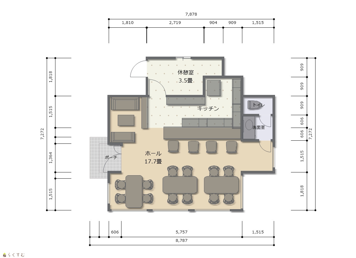
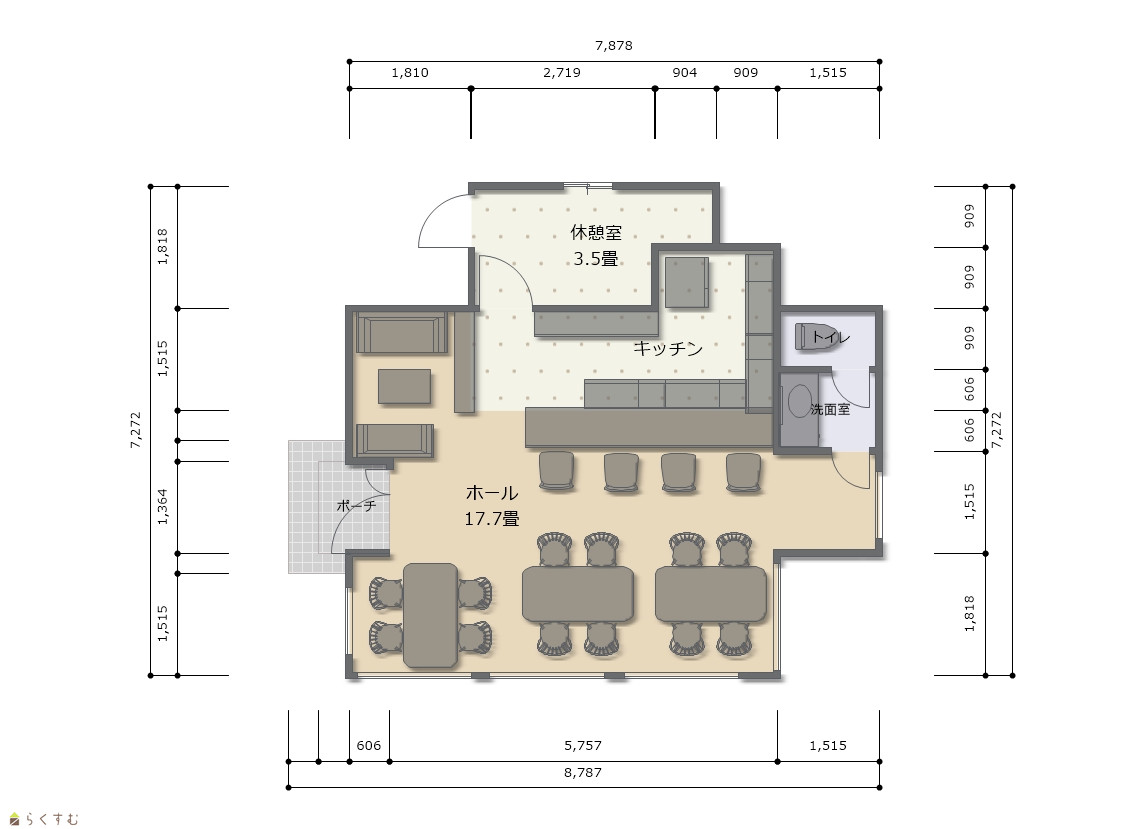
間取り
物件画像
※画像クリックで拡大表示
外観
物件画像
※画像クリックで拡大表示
平面図
詳細画像
物件画像
店内1
物件画像
店内2
物件画像
店内3
物件画像
カウンター
物件画像
厨房1
物件画像
厨房2
物件画像
厨房3
物件画像
店内4
物件画像
洗面所
物件画像
トイレ
物件画像
エアコン
物件画像
カメラ
物件画像
外観2
物件画像
外観3
物件画像
店内4
物件画像
地図画像


物件概要

昨年まで営業していましたので、家具はそのままお使いいただけます。
物件コード 00039-200273
物件名 脇野町 喫茶店・カフェ 
交通 駅:信越線 北長岡駅から徒歩128分、バス:宮下町から徒歩3分
物件所在地 新潟県長岡市脇野町字中江323番11
物件種別 投資物件・その他
物件区分 その他
構造 木造 階建 地上1階建
建ぺい率/容積率 60%/200%
建物面積 1階 47.99㎡/ 計 47.99㎡ /14.51坪
土地面積 505.79㎡ /153坪
築年月 1985年4月(築40年)
入居(引き渡し)時期 相談
用途地域 第2種住居地域 地目 宅地  (現状:宅地)
都市計画 市街化区域 学校区 脇野町小学校(212m)・三島中学校(756m)
形状 間口 25m × 奥行 17m 道路 国道
私道 - その他の制限 -
  • 脇野町 喫茶店・カフェ 
    ふどうさんの相談所 (ライフデザイン合同会社 イオン長岡店)
  • この物件を問い合わせる/無料
  • TEL: 0258-94-4370 0258-94-4370

物件詳細情報

所在階/階数 - 号室 -
販売価格 12,000,000円 方位 -
表面利回り(満室想定時) - 満室想定年収 - (想定月収: - )
現行利回り - 現行年間年収 -
住戸数 -
間取り -
専有面積 - バルコニー面積 -
その他面積 - 駐車場 無料
管理費 - 修繕積立金 -
現況 空家
仲介手数料 462,000円
利用制限 -
設備 角地、南側道路面す、公営水道、都市ガス、下水道、事業向け
取引態様 専任
備考 附属建物 木造2階建ての車庫、倉庫があります。1階 23.04㎡ 2階23.04㎡ 計46.08㎡
取り扱い会社

ふどうさんの相談所 (ライフデザイン合同会社 イオン長岡店)

新潟県長岡市古正寺1-249-1イオン長岡店3F

情報登録日 2026/03/15 次回更新予定日 2026/03/31
取引条件有効期限 2026/04/30
  • 脇野町 喫茶店・カフェ 
    ふどうさんの相談所 (ライフデザイン合同会社 イオン長岡店)
  • この物件を問い合わせる/無料
  • TEL: 0258-94-4370 0258-94-4370

この物件の地図・周辺情報・行政情報

この物件の周辺情報・行政情報を詳しく見る
【周辺情報】
物件の近くにあるコンビニや銀行・学校など、アイコン付のマップで詳しく表示できます!
【行政情報】
水道料や下水道料・ガス料金など、暮らしに関係のある情報を表示しています。

担当取扱い店舗情報

取扱い店舗画像
ふどうさんの相談所 (ライフデザイン合同会社 イオン長岡店)
TEL: 0258-94-4370
所在地: 新潟県長岡市古正寺1-249-1イオン長岡店3F
交通: 長岡駅
営業時間: 10:00~20:00/定休日:年末年始・特別日はお休みいたします
免許番号: 新潟県知事(3)第5090号
所属団体名: 全日本不動産協会 新潟県本部
取引態様: 専任
ホームページ: http://life-dn.com